Hanover Homes says ..
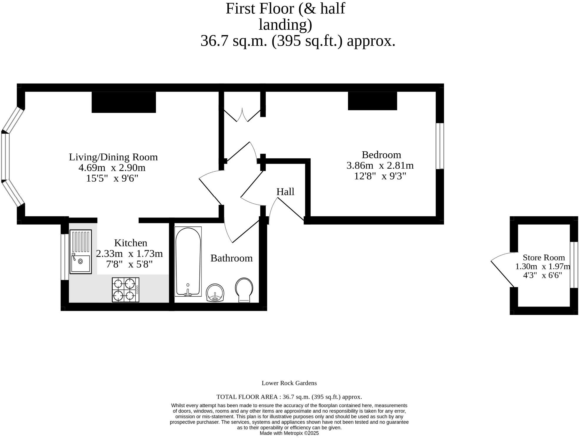
An opportunity to purchase this light and airy one-bedroom flat just off of Kemp town seafront. Accommodation comprises a double bedroom, separate store room, bathroom, open plan lounge/ kitchen, access to balcony.
Property Oracle says ..
This one bedroom apartment is located in Queen’s Park, Brighton. The property benefits from being close to local amenities, schools and transport links. The apartment itself is presented in good order and benefits from a modern fitted kitchen and bathroom. While the apartment is compact, the location and presentation make it a good option for a first time buyer or investor. The price per sqft is higher than the local average, however, this is likely due to the desirable location and the fact that it is presented in good condition.
Therefore, we give this property 6 / 10. *Disclaimer: This is our option and does constitute a recommendation or financial advice. Do your own research. *
- Price
- 7
- Condition
- 8
- Location
- 9
- Land
- 3
- Bedrooms
- 1
- Bathrooms
- 1
- Sqft (est)
- 395.00
- Lot (est)
- 395.00
The heatmap indicates the level of crime in the area. The color of the heatmap indicates the crime severity and recency.
Metrics Year-on-Year
- Average area value
- 392,498.00 £Decreased by 19.21 %
- Est sale value
- 219,620.00 £Increased by 9.45 %
- Average area rental value
- 1,784.00 £/moDecreased by 5.61 %
- Est letting value
- 790.00 £/moIncreased by 100.00 %
- Est rental Yield
- 5.45 %Increased by 16.70 %
- Crime Rate
- 12.00 %Unchanged by 0.00 %
Agent Activity
Hanover Homes marked this listing as sold.
Hanover Homes created the listing.
Nearby Schools
| Name | Type | Ofsted | Distance |
|---|---|---|---|
| Royal Spa Nursery School | Local Authority Nursery School | Outstanding | 0.50 KM |
| Queen'S Park Primary School | Community School | Good | 0.54 KM |
| Tarnerland Nursery School | Local Authority Nursery School | Outstanding | 0.55 KM |
| Carlton Hill Primary School | Community School | Good | 0.59 KM |
| Tarner Children'S Centre | Children's Centre | 0.83 KM |
Images
Nearby Streets
| Name | Average Price | Average Sqft | Distance |
|---|---|---|---|
| Thames Close | £ 0 | 0 | 0.00 KM |
| Saint George's Terrace | £ 0 | 0 | 0.00 KM |
| Parochial Terrace | £ 0 | 0 | 0.00 KM |
| Marine Parade | £ 280,000 | 0 | 0.00 KM |
| A23 | £ 0 | 0 | 0.00 KM |
Nearby Transport
| Name | NLC | TLC | Distance |
|---|---|---|---|
| Brighton | 5268 | BTN | 1.60 KM |
| London Road (Brighton) | 5281 | LRB | 2.00 KM |
| Moulsecoomb | 5312 | MCB | 3.25 KM |
| Preston Park | 5285 | PRP | 4.02 KM |
| Hove | 5273 | HOV | 4.80 KM |
Nearby Listings
| Address | Price | Type | Score | Distance |
|---|---|---|---|---|
| Lower Rock Gardens, Brighton | £ 265,000 | BUY | 6 / 10 | 0.00 KM |
| Lower Rock Gardens, Brighton | £ 265,000 | BUY | 4 / 10 | 0.01 KM |
| Lower Rock Gardens, Brighton | £ 200,000 | BUY | 4 / 10 | 0.01 KM |
| Lower Rock Gardens, Brighton | £ 280,000 | BUY | 5 / 10 | 0.01 KM |
| Lower Rock Gardens | £ 330,000 | BUY | 7 / 10 | 0.01 KM |
Nearby Properties
| Address | Price | Distance |
|---|---|---|
| 19 Lower Rock Gardens | £ 255,000 | 0.01 KM |
| 1a Lower Rock Gardens | £ 131,000 | 0.01 KM |
| 2 | £ 440,000 | 0.01 KM |
| 18 Lower Rock Gardens | £ 595,000 | 0.01 KM |
| 24 Lower Rock Gardens | £ 163,969 | 0.01 KM |