Wontner Close, Islington, London, N1
By David Astburys
£ 500,000
Reviews
3 out of 5 stars
David Astburys says ..
Private Entrance | Split Level Maisonette | End Of Terrace | One Double Bedroom | Private Garden | Peaceful Surrounding | Excellent Location
Property Oracle says ..
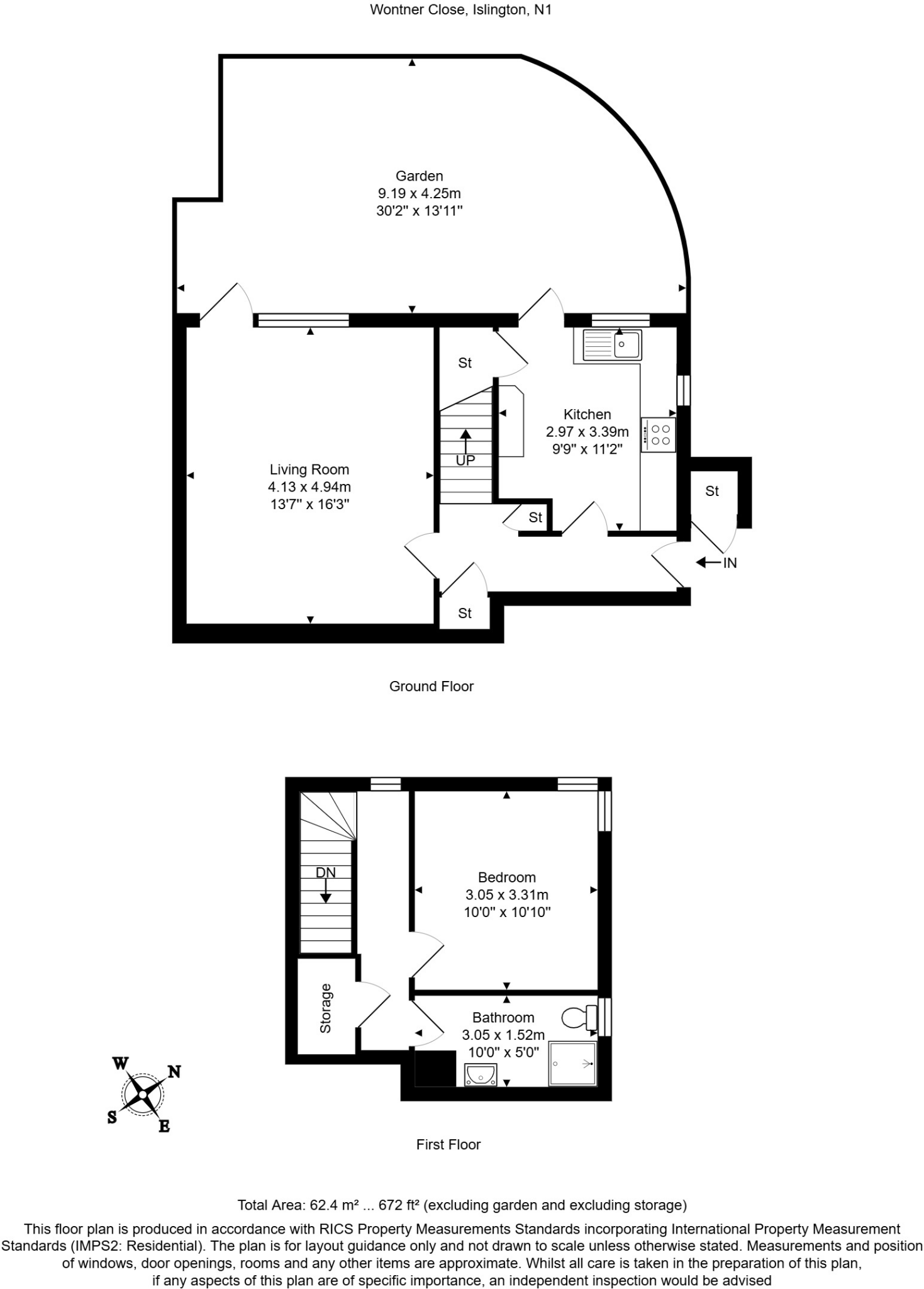
The property is a one bedroom maisonette located in Islington, London. It benefits from a private garden, which is a desirable feature in a busy city like London. The property appears to be in good condition based on the provided images, with a modern bathroom and kitchen. The location is excellent, with close proximity to Essex Road station and the amenities of Upper Street. However, the lack of information on the square footage of the property and surrounding properties makes it difficult to accurately assess the price per square foot and determine whether the list price is reasonable. More information is needed to provide a full and accurate analysis.
Therefore, we give this property 7 / 10. *Disclaimer: This is our option and does constitute a recommendation or financial advice. Do your own research. *
- Price
- 7
- Condition
- 8
- Location
- 9
- Land
- 7
- Bedrooms
- 1
- Bathrooms
- 1
- Sqft (est)
- 671.67
The heatmap indicates the level of crime in the area. The color of the heatmap indicates the crime severity and recency.
Metrics Year-on-Year
- Average area value
- 489,766.00 £Increased by 6.36 %
- Est sale value
- 465,467.31 £Increased by 54.34 %
- Average area rental value
- 2,264.00 £/moIncreased by 11.14 %
- Est letting value
- 2,015.01 £/moIncreased by 200.00 %
- Est rental Yield
- 5.55 %Increased by 4.52 %
- Crime Rate
- 7.00 %Unchanged by 0.00 %
Agent Activity
David Astburys marked this listing as sold.
David Astburys created the listing.
Nearby Schools
| Name | Type | Ofsted | Distance |
|---|---|---|---|
| The New North Academy | Academy Converter | Good | 0.14 KM |
| City Of London Academy Islington | Academy Sponsor Led | Outstanding | 0.41 KM |
| St Mary'S Cofe Primary School | Voluntary Aided School | Good | 0.45 KM |
| Richard Cloudesley School | Community Special School | Outstanding | 0.47 KM |
| Packington Children'S Centre | Children's Centre | 0.48 KM |
Images
Nearby Streets
| Name | Average Price | Average Sqft | Distance |
|---|---|---|---|
| River Place | £ 2,250,000 | 0 | 0.00 KM |
| Maldon Close | £ 380,000 | 0 | 0.00 KM |
| William Congreve Mews | £ 0 | 0 | 0.00 KM |
| James Court | £ 0 | 0 | 0.00 KM |
| Orchard Close | £ 850,000 | 0 | 0.00 KM |
Nearby Transport
| Name | NLC | TLC | Distance |
|---|---|---|---|
| Essex Road | 6004 | EXR | 0.12 KM |
| Canonbury | 1441 | CNN | 1.11 KM |
| Highbury And Islington | 6009 | HHY | 1.11 KM |
| Old Street | 6003 | OLD | 1.75 KM |
| Drayton Park | 6000 | DYP | 1.79 KM |
Nearby Listings
| Address | Price | Type | Score | Distance |
|---|---|---|---|---|
| Wontner Close, Islington, London, N1 | £ 500,000 | BUY | 7 / 10 | 0.00 KM |
| Chelsea Court, Melville Place, Islington, London, N1 | £ 640,000 | BUY | 6 / 10 | 0.06 KM |
| Essex Road, Islington, N1 | £ 375,000 | BUY | 6 / 10 | 0.06 KM |
| Chelsea Court, Melville Place, N1 | £ 600,000 | BUY | 5 / 10 | 0.06 KM |
| 40 Melville Place, London, N1 | £ 795,000 | BUY | 5 / 10 | 0.06 KM |
Nearby Properties
| Address | Price | Distance |
|---|---|---|
| 22a Tibberton Square | £ 388,000 | 0.07 KM |
| 3c Tibberton Square | £ 584,995 | 0.07 KM |
| 20b Tibberton Square | £ 650,000 | 0.07 KM |
| 3b Tibberton Square | £ 550,000 | 0.07 KM |
| 6 Tibberton Square | £ 650,000 | 0.07 KM |