Gascoigne Halman says ..
A stylish two double bedrooms modern mews property boasting immaculate presentation throughout, stunning refitted bathroom and kitchen, tastefully landscaped garden and off-road parking.
Property Oracle says ..
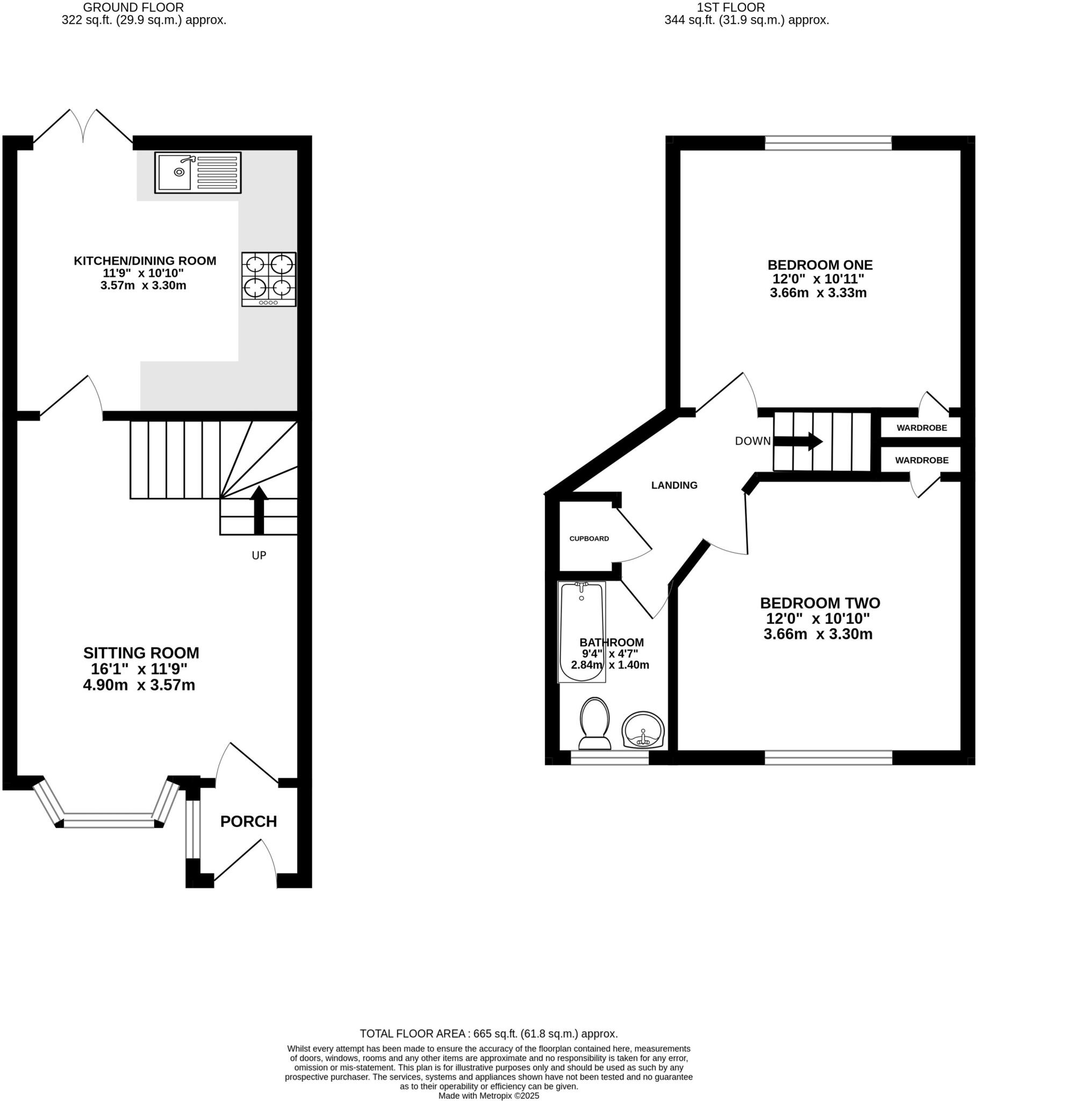
This end-of-terrace property on Alveston Drive, Wilmslow, presents a well-maintained and modern living space. The interior boasts a contemporary kitchen and bathroom, suggesting recent renovations. The property includes a garden, enhancing its appeal. Located in a desirable area with good access to schools and transportation, it’s a suitable option for small families or couples. The asking price of £325,000 appears reasonable when considering the property’s condition, location, and size.
Therefore, we give this property 7 / 10. *Disclaimer: This is our option and does constitute a recommendation or financial advice. Do your own research. *
- Price
- 7
- Condition
- 9
- Location
- 7
- Land
- 6
- Bedrooms
- 2
- Bathrooms
- 1
- Sqft (est)
- 483.95
The heatmap indicates the level of crime in the area. The color of the heatmap indicates the crime severity and recency.
Metrics Year-on-Year
- Average area value
- 717,500.00 £Increased by 25.99 %
- Est sale value
- 550,251.15 £Increased by 292.07 %
- Average area rental value
- 1,988.00 £/moDecreased by 6.36 %
- Est letting value
- 1,451.85 £/moIncreased by 200.00 %
- Est rental Yield
- 3.32 %Decreased by 25.73 %
- Crime Rate
- 4.00 %Unchanged by 0.00 %
Agent Activity
Gascoigne Halman created the listing.
Nearby Schools
| Name | Type | Ofsted | Distance |
|---|---|---|---|
| Oakenclough & Poynyon Children'S Centre | Children's Centre | 1.29 KM | |
| Wilmslow High School | Community School | Good | 1.50 KM |
| Wilmslow Preparatory School | Other Independent School | 1.54 KM | |
| Lacey Green Primary Academy | Academy Converter | 1.54 KM | |
| The Wilmslow Academy | Academy Converter | Good | 1.92 KM |
Images
Nearby Streets
| Name | Average Price | Average Sqft | Distance |
|---|---|---|---|
| The Regents | £ 0 | 0 | 0.00 KM |
| Elm Grange | £ 0 | 0 | 0.00 KM |
| A34 | £ 0 | 0 | 0.00 KM |
| Bollin Valley Roundabout | £ 0 | 0 | 0.00 KM |
| Alveston Drive | £ 0 | 0 | 0.00 KM |
Nearby Transport
| Name | NLC | TLC | Distance |
|---|---|---|---|
| Wilmslow | 2774 | WML | 0.83 KM |
| Handforth | 2767 | HTH | 1.77 KM |
| Styal | 2868 | SYA | 2.74 KM |
| Alderley Edge | 2760 | ALD | 3.62 KM |
| Heald Green | 2860 | HDG | 4.43 KM |
Nearby Listings
| Address | Price | Type | Score | Distance |
|---|---|---|---|---|
| Alveston Drive, Wilmslow | £ 325,000 | BUY | 7 / 10 | 0.00 KM |
| Holmeswood Close, Wilmslow, SK9 | £ 224,000 | BUY | Unknown | 0.04 KM |
| Holmeswood Close, WILMSLOW | £ 318,000 | BUY | 7 / 10 | 0.05 KM |
| Holmeswood Close, Wilmslow, Cheshire, SK9 | £ 347,500 | BUY | 7 / 10 | 0.07 KM |
| Alveston Drive, Wilmslow | £ 324,500 | BUY | 7 / 10 | 0.07 KM |
Nearby Properties
| Address | Price | Distance |
|---|---|---|
| 2 Holmeswood Close | £ 220,000 | 0.04 KM |
| 3 Holmeswood Close | £ 295,000 | 0.04 KM |
| 31 Holmeswood Close | £ 265,000 | 0.04 KM |
| 21 Holmeswood Close | £ 162,750 | 0.04 KM |
| 24 Holmeswood Close | £ 136,500 | 0.04 KM |