Calow Evans says ..
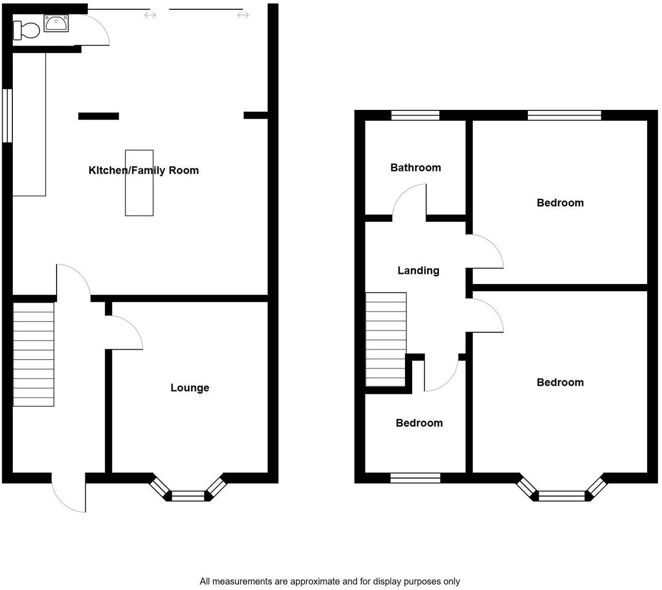
A three bedroom semi detached family home conveniently situated to Ammanford town centre. The property is situated in an elevated position to the fore enjoying lovely view also benefiting from level rear vehicle and pedestrian access. This lovely family home has been extended to provide ...
Property Oracle says ..
Therefore, we give this property 6 / 10. *Disclaimer: This is our option and does constitute a recommendation or financial advice. Do your own research. *
- Price
- 6
- Condition
- 7
- Location
- 7
- Land
- 7
- Bedrooms
- 3
- Bathrooms
- 1
- Sqft (est)
- 848.00
The heatmap indicates the level of crime in the area. The color of the heatmap indicates the crime severity and recency.
Metrics Year-on-Year
- Average area value
- 310,998.00 £Decreased by 1.08 %
- Est sale value
- 283,232.00 £Increased by 16.78 %
- Average area rental value
- 1,363.00 £/moIncreased by 13.58 %
- Est letting value
- 848.00 £/moUnchanged by 0.00 %
- Est rental Yield
- 5.26 %Increased by 14.85 %
- Crime Rate
- 6.00 %Unchanged by 0.00 %
from 314,389.00 £
from 242,528.00 £
from 1,200.00 £/mo
from 848.00 £/mo
from 4.58 %
from 6.00 %
Agent Activity
Calow Evans created the listing.
Nearby Schools
| Name | Type | Ofsted | Distance |
|---|---|---|---|
| Ysgol Gynradd Parcyrhun | Welsh Establishment | 0.18 KM | |
| Betws C.P. School | Welsh Establishment | 1.01 KM | |
| Ysgol Gymraeg Rhydaman | Welsh Establishment | 1.18 KM | |
| Ysgol Feithrin Rhydaman | Welsh Establishment | 1.18 KM | |
| Ysgol Dyffryn Aman | Welsh Establishment | 1.39 KM |
Images
Nearby Streets
| Name | Average Price | Average Sqft | Distance |
|---|---|---|---|
| Parc-yr-Hun | £ 199,950 | 0 | 0.00 KM |
| Lloyd Street | £ 0 | 0 | 0.00 KM |
| Carregaman | £ 0 | 0 | 0.00 KM |
| The Arcade | £ 0 | 0 | 0.00 KM |
| College Street | £ 262,500 | 0 | 0.00 KM |
Nearby Transport
| Name | NLC | TLC | Distance |
|---|---|---|---|
| Pantyffynnon | 4250 | PTF | 0.93 KM |
| Ammanford | 4236 | AMF | 1.08 KM |
| Llandybie | 4247 | LLI | 3.96 KM |
| Pontarddulais | 4251 | PTD | 9.54 KM |
| Ffairfach | 4066 | FFA | 9.54 KM |
Nearby Listings
| Address | Price | Type | Score | Distance |
|---|---|---|---|---|
| New Road, Ammanford, SA18 3EY | £ 279,950 | BUY | 6 / 10 | 0.00 KM |
| New Road, Ammanford SA18 | £ 240,000 | BUY | 6 / 10 | 0.03 KM |
| Bishop Road, Ammanford | £ 105,000 | BUY | 6 / 10 | 0.15 KM |
| Villiers Road, Ammanford | £ 239,995 | BUY | 6 / 10 | 0.15 KM |
| Villiers Road, Ammanford | £ 165,000 | BUY | 6 / 10 | 0.18 KM |
Nearby Properties
| Address | Price | Distance |
|---|---|---|
| 65 New Road | £ 95,000 | 0.01 KM |
| 35 New Road | £ 100,000 | 0.01 KM |
| 31 New Road | £ 155,000 | 0.01 KM |
| 63 New Road | £ 132,000 | 0.01 KM |
| 47 New Road | £ 230,000 | 0.01 KM |