Movuno says ..
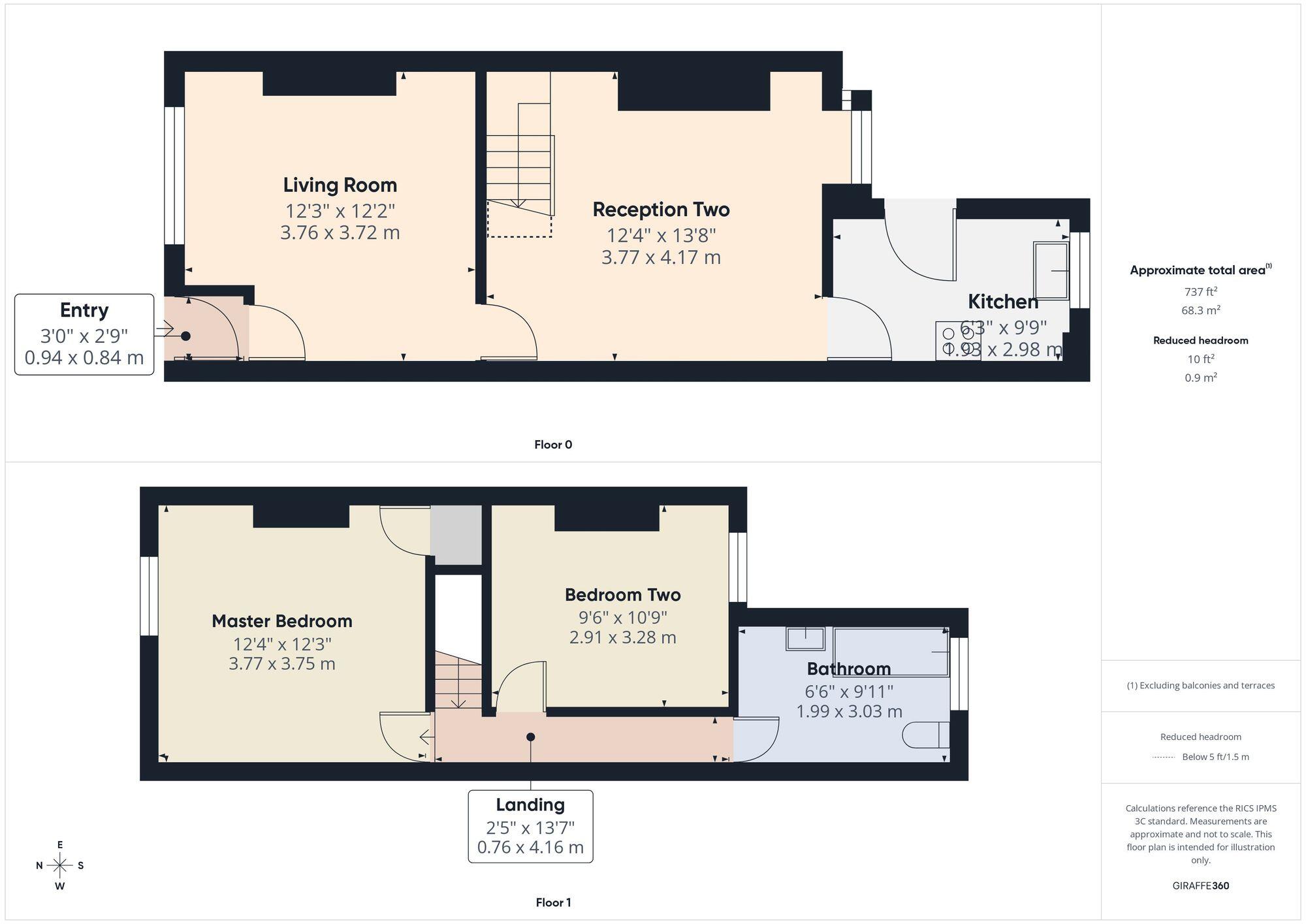
This neutrally decorated two-bedroom period terraced house, with two reception rooms and secure off road parking, is located on Lincoln Road, Heaton.
Property Oracle says ..
This is a two-bedroom terraced property located on Lincoln Road in Halliwell, Bolton. The property is in need of some modernisation, particularly in the kitchen and bathroom. It features a rear yard that is mostly paved. The property is situated within a reasonable distance of local schools and transportation links. The asking price of £145,000 seems fair, taking into account the property’s condition and location.
Therefore, we give this property 5 / 10. *Disclaimer: This is our option and does constitute a recommendation or financial advice. Do your own research. *
- Price
- 7
- Condition
- 5
- Location
- 6
- Land
- 4
- Bedrooms
- 2
- Bathrooms
- 1
The heatmap indicates the level of crime in the area. The color of the heatmap indicates the crime severity and recency.
Metrics Year-on-Year
- Average area value
- 550,000.00 £Increased by 32.27 %
- Average area rental value
- 1,864.00 £/moIncreased by 17.16 %
- Est rental Yield
- 4.07 %Decreased by 11.33 %
- Crime Rate
- 109.00 %Unchanged by 0.00 %
Agent Activity
Movuno created the listing.
Nearby Schools
| Name | Type | Ofsted | Distance |
|---|---|---|---|
| Bolton School Girls' Division | Other Independent School | 0.37 KM | |
| Bolton School Boys' Division | Other Independent School | 0.40 KM | |
| Thomasson Memorial School | Community Special School | Good | 0.69 KM |
| Oxford Grove Start Well Children'S Centre | Children's Centre | 0.70 KM | |
| Devonshire Road Primary School | Community School | Good | 0.72 KM |
Images
Nearby Streets
| Name | Average Price | Average Sqft | Distance |
|---|---|---|---|
| Back Hartington Road | £ 0 | 0 | 0.00 KM |
| Back Bashall Street | £ 99,950 | 0 | 0.00 KM |
| Challinor Street | £ 0 | 0 | 0.00 KM |
| Reedham Close | £ 0 | 0 | 0.00 KM |
| Back Westwood Road | £ 0 | 0 | 0.00 KM |
Nearby Transport
| Name | NLC | TLC | Distance |
|---|---|---|---|
| Bolton | 2599 | BON | 3.16 KM |
| Lostock | 2598 | LOT | 4.68 KM |
| Hall-I'-Th'-Wood | 2572 | HID | 4.71 KM |
| Bromley Cross (Lancs) | 2697 | BMC | 5.82 KM |
| Moses Gate | 2606 | MSS | 6.46 KM |
Nearby Listings
| Address | Price | Type | Score | Distance |
|---|---|---|---|---|
| Lincoln Road, Heaton, Bolton, BL1 | £ 145,000 | BUY | 5 / 10 | 0.00 KM |
| Lincoln Road, Bolton, BL1 | £ 99,950 | BUY | 5 / 10 | 0.04 KM |
| Lincoln Road, Heaton, Bolton, BL1 | £ 130,000 | BUY | 5 / 10 | 0.04 KM |
| Kendal Road, Heaton, Bolton, BL1 | £ 150,000 | BUY | 6 / 10 | 0.06 KM |
| Kendal Road, Heaton, Bolton, BL1 | £ 140,000 | BUY | 6 / 10 | 0.06 KM |
Nearby Properties
| Address | Price | Distance |
|---|---|---|
| 11 Lincoln Road | £ 80,000 | 0.03 KM |
| 33 Lincoln Road | £ 107,500 | 0.03 KM |
| 7 Lincoln Road | £ 60,000 | 0.03 KM |
| 31 Lincoln Road | £ 27,250 | 0.03 KM |
| 19 Lincoln Road | £ 105,000 | 0.03 KM |