Foxglove Close, Christchurch, Dorset, BH23
By Slades Estate Agents
£ 475,000
Reviews
4 out of 5 stars
Slades Estate Agents says ..
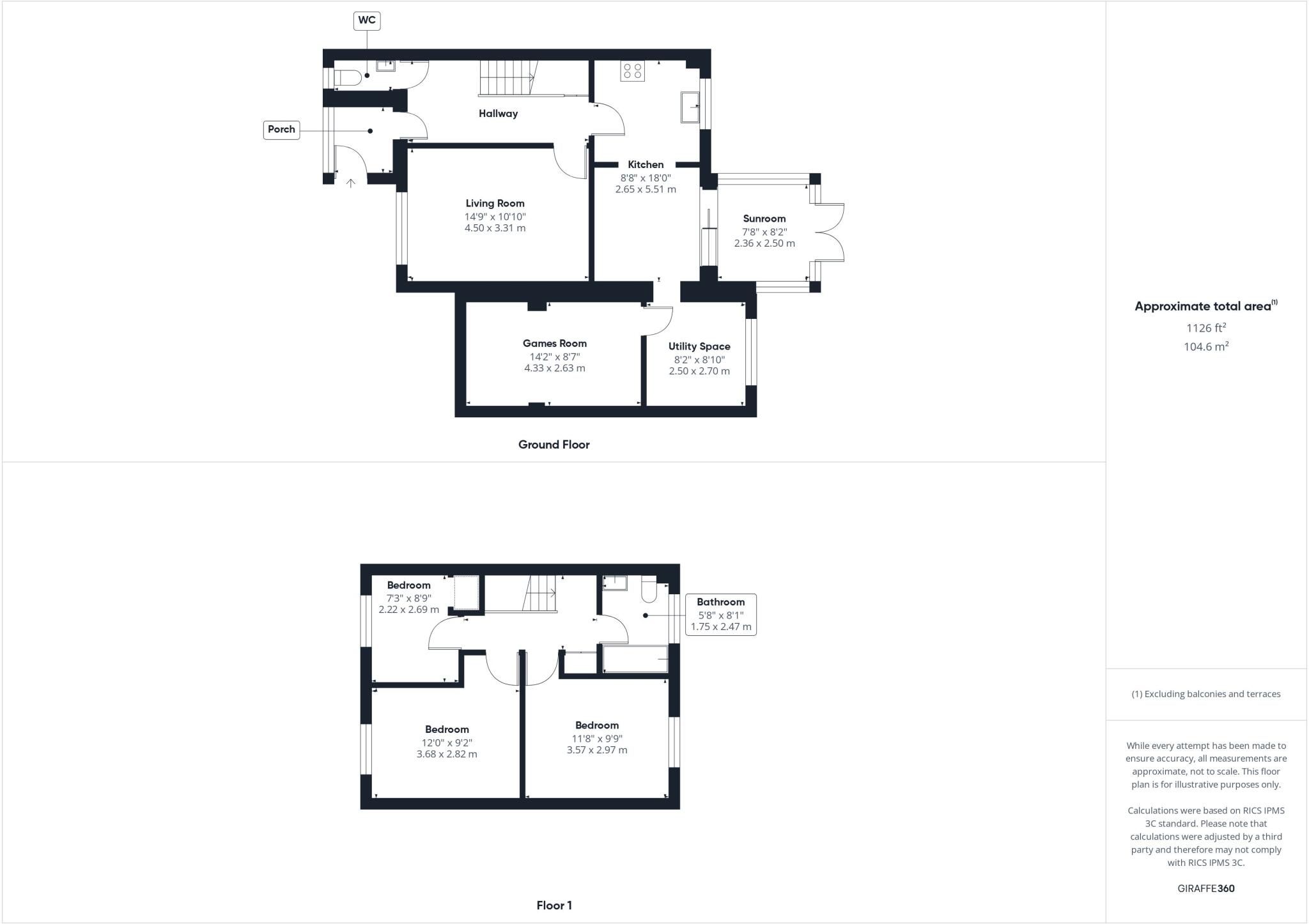
Set in a PEACEFUL CUL DE SAC IN THE HEART OF HOBURNE, this 3 BED PROPERTY boasts a SOUTH FACING GARDEN, OFF ROAD PARKING with an ELECTRIC CAR CHARGING POINT, and a CONVERTED GARAGE.
Property Oracle says ..
The property is located in the desirable coastal town of Christchurch, Dorset, known for its attractive location and proximity to the New Forest National Park. The area benefits from good local schools and transportation links. The property itself appears well-maintained and in good condition, with a modern kitchen and updated bathrooms. A conservatory, garage, and a well-maintained garden are included. The list price of £475,000 appears reasonable considering the average house price in the area and the property’s features, although a definitive conclusion on price-per-square-foot value cannot be made without knowing the property’s square footage. Nearby comparable properties support the list price as being within the expected range for the area.
Therefore, we give this property 8 / 10. *Disclaimer: This is our option and does constitute a recommendation or financial advice. Do your own research. *
- Price
- 7
- Condition
- 9
- Location
- 0
- Land
- 8
- Bedrooms
- 3
- Bathrooms
- 1
- Sqft (est)
- 1,151.74
- Lot (est)
- 1,125.91
The heatmap indicates the level of crime in the area. The color of the heatmap indicates the crime severity and recency.
Metrics Year-on-Year
- Average area value
- 487,500.00 £Decreased by 12.22 %
- Est sale value
- 718,685.76 £Increased by 41.50 %
- Average area rental value
- 1,970.00 £/moIncreased by 18.96 %
- Est letting value
- 2,303.48 £/moIncreased by 100.00 %
- Est rental Yield
- 4.85 %Increased by 35.47 %
- Crime Rate
- 9.00 %Unchanged by 0.00 %
Agent Activity
Slades Estate Agents created the listing.
Nearby Schools
| Name | Type | Ofsted | Distance |
|---|---|---|---|
| Highcliffe School | Academy Converter | Good | 0.95 KM |
| St Joseph'S Catholic Primary School, Christchurch | Voluntary Aided School | Good | 1.70 KM |
| Mudeford Junior School | Community School | Outstanding | 2.60 KM |
| Somerford Primary School | Community School | Good | 2.74 KM |
| Somerford Children'S Centre | Children's Centre | 2.74 KM |
Images
Nearby Streets
| Name | Average Price | Average Sqft | Distance |
|---|---|---|---|
| Iris Close | £ 0 | 0 | 0.00 KM |
| Larkspur Close | £ 0 | 0 | 0.00 KM |
| Lyndhurst Road | £ 279,950 | 0 | 0.00 KM |
| Rowan Close | £ 0 | 0 | 0.00 KM |
| Priors Close | £ 955,000 | 0 | 0.00 KM |
Nearby Transport
| Name | NLC | TLC | Distance |
|---|---|---|---|
| Hinton Admiral | 5880 | HNA | 2.00 KM |
| Christchurch | 5879 | CHR | 6.04 KM |
| New Milton | 5881 | NWM | 8.11 KM |
Nearby Listings
| Address | Price | Type | Score | Distance |
|---|---|---|---|---|
| Foxglove Close, Christchurch, Dorset, BH23 | £ 475,000 | BUY | 8 / 10 | 0.00 KM |
| Clematis Close, Christchurch, BH23 | £ 450,000 | BUY | Unknown | 0.08 KM |
| Clematis Close, Christchurch, Dorset, BH23 | £ 425,000 | BUY | 6 / 10 | 0.09 KM |
| Iris Close, Hoburne, Christchurch, Dorset, BH23 | £ 600,000 | BUY | 6 / 10 | 0.10 KM |
| Cornflower Drive, Highcliffe On Sea, Christchurch, Dorset, BH23 | £ 475,000 | BUY | 7 / 10 | 0.10 KM |
Nearby Properties
| Address | Price | Distance |
|---|---|---|
| 4 Foxglove Close | £ 352,000 | 0.04 KM |
| 3 Foxglove Close | £ 249,950 | 0.04 KM |
| 7 Foxglove Close | £ 210,000 | 0.04 KM |
| 2 Foxglove Close | £ 362,500 | 0.04 KM |
| 8 Foxglove Close | £ 216,500 | 0.04 KM |