Hawes & Co says ..
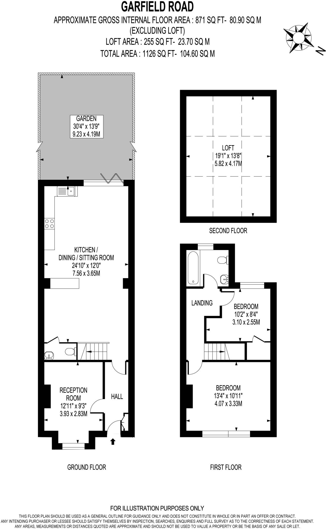
Hawes and Co are delighted to present this wonderful two bedroom semi detached house, situated in the popular ‘Poets’ area of Wimbledon, close to Garfield Road Recreation Ground, Nature Park and Primary School. Within walking distance of Haydon's Road Thameslink Station and within eas...
Property Oracle says ..
Therefore, we give this property 6 / 10. *Disclaimer: This is our option and does constitute a recommendation or financial advice. Do your own research. *
- Price
- 5
- Condition
- 7
- Location
- 7
- Land
- 5
- Bedrooms
- 2
- Bathrooms
- 1
- Sqft (est)
- 1,324.71
The heatmap indicates the level of crime in the area. The color of the heatmap indicates the crime severity and recency.
Metrics Year-on-Year
- Average area value
- 446,826.00 £Increased by 0.22 %
- Est sale value
- 551,079.36 £Increased by 9.19 %
- Average area rental value
- 1,514.00 £/moDecreased by 8.57 %
- Est letting value
- 1,324.71 £/moUnchanged by 0.00 %
- Est rental Yield
- 4.07 %Decreased by 8.74 %
- Crime Rate
- 5.00 %Unchanged by 0.00 %
from 445,846.00 £
from 504,714.51 £
from 1,656.00 £/mo
from 1,324.71 £/mo
from 4.46 %
from 5.00 %
Agent Activity
Hawes & Co created the listing.
Nearby Schools
| Name | Type | Ofsted | Distance |
|---|---|---|---|
| Garfield Primary School | Community School | Good | 0.17 KM |
| All Saints' Cofe Primary School | Voluntary Aided School | Good | 0.44 KM |
| Harris Academy Wimbledon | Free Schools | 0.97 KM | |
| The Priory Cofe School | Voluntary Aided School | Good | 0.99 KM |
| Abbey Children'S Centre | Children's Centre Linked Site | 1.04 KM |
Images
Nearby Streets
| Name | Average Price | Average Sqft | Distance |
|---|---|---|---|
| Milton Road | £ 680,000 | 0 | 0.00 KM |
| East Road | £ 791,667 | 0 | 0.00 KM |
| Trafalgar Road | £ 975,000 | 0 | 0.00 KM |
| Edith Road | £ 0 | 0 | 0.00 KM |
| Haydons Road | £ 0 | 0 | 0.00 KM |
Nearby Transport
| Name | NLC | TLC | Distance |
|---|---|---|---|
| Haydons Road | 5289 | HYR | 0.57 KM |
| Earlsfield | 5584 | EAD | 2.28 KM |
| Wimbledon | 5578 | WIM | 2.36 KM |
| Tooting | 5389 | TOO | 2.64 KM |
| South Merton | 5292 | SMO | 3.07 KM |
Nearby Listings
| Address | Price | Type | Score | Distance |
|---|---|---|---|---|
| Garfield Road, London, SW19 | £ 675,000 | BUY | 6 / 10 | 0.00 KM |
| Cowper Road, Wimbledon, London, SW19 | £ 350,000 | BUY | 5 / 10 | 0.00 KM |
| Garfield Road, Wimbledon, London, SW19 | £ 450,000 | BUY | 7 / 10 | 0.03 KM |
| Garfield Road, Wimbledon, London, SW19 | £ 450,000 | BUY | Unknown | 0.05 KM |
| Cowper Road, Wimbledon | £ 700,000 | BUY | 6 / 10 | 0.06 KM |
Nearby Properties
| Address | Price | Distance |
|---|---|---|
| 84 Garfield Road | £ 251,000 | 0.01 KM |
| 78 Garfield Road | £ 715,000 | 0.01 KM |
| 120 Garfield Road | £ 500,000 | 0.01 KM |
| 82 Garfield Road | £ 420,000 | 0.01 KM |
| 86a Garfield Road | £ 700,000 | 0.01 KM |