Beeston Drive, West Cheshunt
By Paul Wallace Estate Agents
£ 230,000
Reviews
2 out of 5 stars
Paul Wallace Estate Agents says ..
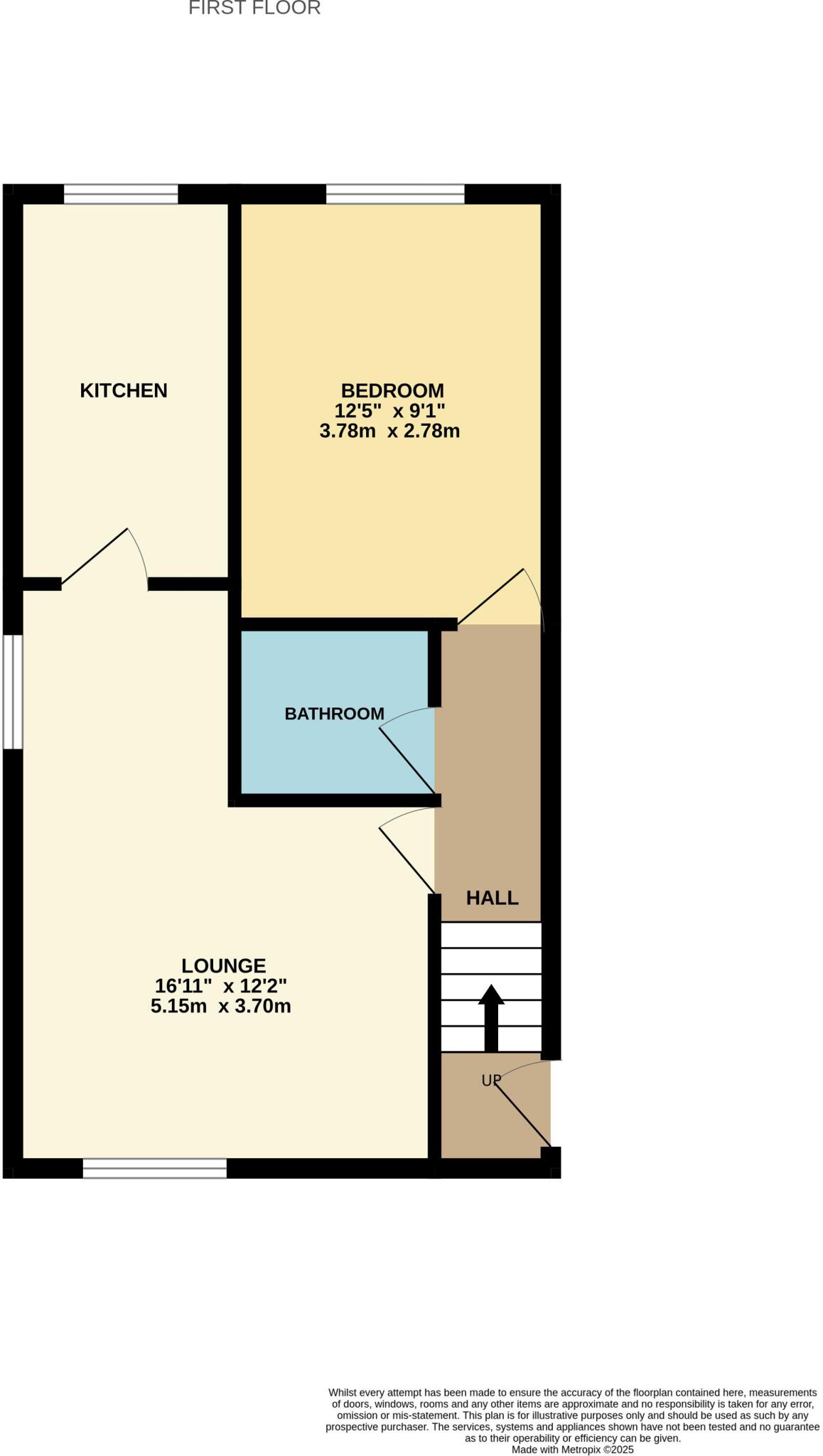
Offered CHAIN FREE – This ONE BEDROOM first floor MAISONETTE in the heart of SOUGHT AFTER WEST CHESHUNT is being sold with an EXTENDED 147 YEAR LEASE and is just a short walk to the BROOKFIELD CENTRE. With ALLOCATED PARKING and double glazed windows throughout.
Property Oracle says ..
The property is a 1-bedroom flat located on Beeston Drive in West Cheshunt, Hertfordshire. The listing price is £230,000. While the property’s square footage is not provided, nearby properties range in price from £222,500 to £370,000. The average price for properties in the area is £450,127, with an average price per square foot of £425. The lack of square footage data for the subject property makes a precise price comparison difficult. However, based on the provided images and comparable properties, the list price appears to be at the lower end of the market value for the area, potentially reflecting the property’s condition or size.
The property’s condition appears to be fair. While the kitchen and bathroom seem relatively modern, some minor repairs or cosmetic updates might be needed, such as patching a damaged wall in the living room. The exterior of the property appears well-maintained.
The images do not show a significant amount of land associated with the property. It appears to be a flat within a larger development, with limited private outdoor space.
The location is reasonably convenient, with several schools and transportation options within a reasonable distance. The proximity to Cheshunt train station provides access to London and other areas.
Therefore, we give this property 5 / 10. *Disclaimer: This is our option and does constitute a recommendation or financial advice. Do your own research. *
- Price
- 7
- Condition
- 6
- Location
- 7
- Land
- 3
- Bedrooms
- 1
- Bathrooms
- 1
The heatmap indicates the level of crime in the area. The color of the heatmap indicates the crime severity and recency.
Metrics Year-on-Year
- Average area value
- 518,333.00 £Increased by 7.93 %
- Average area rental value
- 1,700.00 £/moIncreased by 5.20 %
- Est rental Yield
- 3.94 %Decreased by 2.48 %
- Crime Rate
- 3.00 %Unchanged by 0.00 %
Agent Activity
Paul Wallace Estate Agents created the listing.
Nearby Schools
| Name | Type | Ofsted | Distance |
|---|---|---|---|
| Churchfield Cofe Academy | Academy Sponsor Led | Good | 0.98 KM |
| Millbrook School | Community School | Requires improvement | 1.05 KM |
| Burleigh Primary School | Community School | Good | 1.12 KM |
| Haileybury Turnford | Academy Sponsor Led | Requires improvement | 1.17 KM |
| Brookland Junior School | Community School | Requires improvement | 1.17 KM |
Images
Nearby Streets
| Name | Average Price | Average Sqft | Distance |
|---|---|---|---|
| Blaxland Terrace | £ 0 | 0 | 0.00 KM |
| Neatby Court | £ 249,995 | 0 | 0.00 KM |
| Church Lane | £ 0 | 0 | 0.00 KM |
| Great Cambridge Road | £ 485,000 | 0 | 0.00 KM |
| Blindman's Lane | £ 0 | 0 | 0.00 KM |
Nearby Transport
| Name | NLC | TLC | Distance |
|---|---|---|---|
| Cheshunt | 6814 | CHN | 1.92 KM |
| Theobalds Grove | 6949 | TEO | 2.50 KM |
| Waltham Cross | 6823 | WLC | 3.50 KM |
| Broxbourne | 6812 | BXB | 4.54 KM |
| Turkey Street | 6952 | TUR | 4.85 KM |
Nearby Listings
| Address | Price | Type | Score | Distance |
|---|---|---|---|---|
| Beeston Drive, West Cheshunt | £ 230,000 | BUY | 5 / 10 | 0.00 KM |
| Beeston Drive, West Cheshunt | £ 369,995 | BUY | 6 / 10 | 0.02 KM |
| Beeston Drive, Cheshunt | £ 220,000 | BUY | 6 / 10 | 0.04 KM |
| Beeston Drive, Cheshunt, Waltham Cross | £ 220,000 | BUY | 5 / 10 | 0.04 KM |
| Beeston Drive, Cheshunt | £ 220,000 | BUY | Unknown | 0.04 KM |
Nearby Properties
| Address | Price | Distance |
|---|---|---|
| 26 Beeston Drive | £ 300,000 | 0.05 KM |
| 36 Beeston Drive | £ 200,000 | 0.05 KM |
| 59 Beeston Drive | £ 310,000 | 0.05 KM |
| 40 Beeston Drive | £ 180,000 | 0.05 KM |
| 54d Beeston Drive | £ 180,000 | 0.05 KM |