LE
Seaford Road, Ealing, London, W13
By Leslie & Co
£ 550,000
Reviews
3 out of 5 stars
Leslie & Co says ..
This beautiful garden flat gives you not just space, but a sense of escape, with a period charm that feels timeless yet a modern spec that feels luxurious.
Property Oracle says ..
Therefore, we give this property 7 / 10. *Disclaimer: This is our option and does constitute a recommendation or financial advice. Do your own research. *
- Price
- 7
- Condition
- 8
- Location
- 8
- Land
- 7
- Bedrooms
- 2
- Bathrooms
- 1
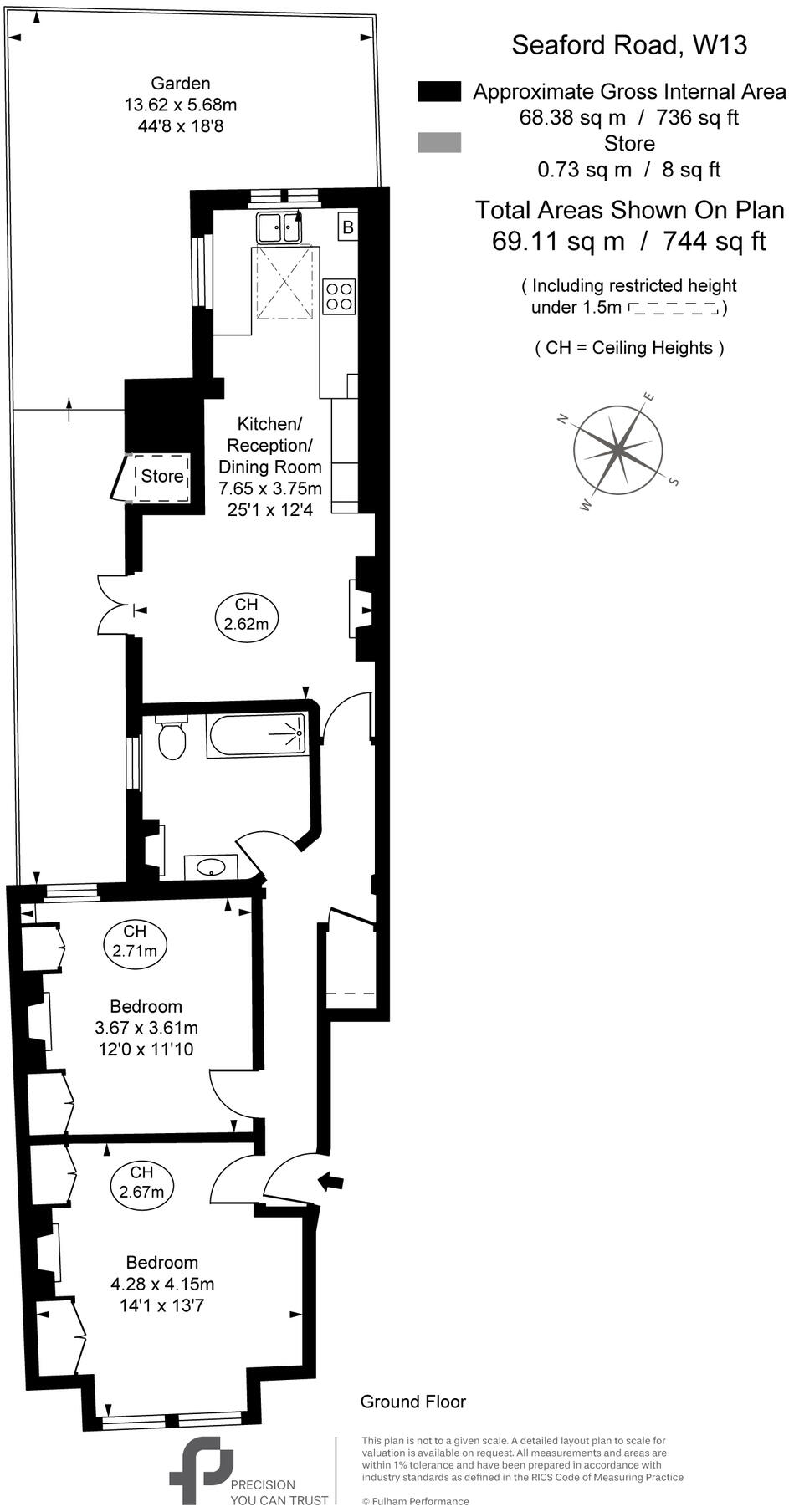
- Sqft (est)
- 743.89
- Lot (est)
- 832.59
The heatmap indicates the level of crime in the area. The color of the heatmap indicates the crime severity and recency.
Metrics Year-on-Year
- Average area value
- 811,000.00 £Increased by 5.83 %
- Est sale value
- 376,408.34 £Decreased by 24.59 %
- Average area rental value
- 2,084.00 £/moDecreased by 2.53 %
- Est letting value
- 743.89 £/moUnchanged by 0.00 %
- Est rental Yield
- 3.08 %Decreased by 8.06 %
- Crime Rate
- 6.00 %Unchanged by 0.00 %
from 766,358.00 £
from 499,150.19 £
from 2,138.00 £/mo
from 743.89 £/mo
from 3.35 %
from 6.00 %
Agent Activity
Leslie & Co created the listing.
Nearby Schools
| Name | Type | Ofsted | Distance |
|---|---|---|---|
| Seva Special School | Other Independent Special School | 0.43 KM | |
| Insights Independent School | Other Independent Special School | Good | 0.57 KM |
| Ealing Alternative Provision | Pupil Referral Unit | Good | 0.63 KM |
| St John'S Primary School | Community School | Good | 0.63 KM |
| Fielding Primary School | Community School | Outstanding | 0.73 KM |
Images
Nearby Streets
| Name | Average Price | Average Sqft | Distance |
|---|---|---|---|
| Burns Road | £ 0 | 0 | 0.00 KM |
| Dean Villas | £ 0 | 0 | 0.00 KM |
| Dane Road | £ 575,000 | 0 | 0.00 KM |
| Mayo Court | £ 739,950 | 0 | 0.00 KM |
| Sutherland Avenue | £ 484,950 | 0 | 0.00 KM |
Nearby Transport
| Name | NLC | TLC | Distance |
|---|---|---|---|
| West Ealing | 3188 | WEA | 0.66 KM |
| Drayton Green | 3099 | DRG | 1.47 KM |
| Hanwell | 3191 | HAN | 2.05 KM |
| Castle Bar Park | 3098 | CBP | 2.10 KM |
| Ealing Broadway | 3190 | EAL | 2.23 KM |
Nearby Listings
| Address | Price | Type | Score | Distance |
|---|---|---|---|---|
| Seaford Road, Ealing, London, W13 | £ 550,000 | BUY | 7 / 10 | 0.00 KM |
| Seaford Road, Ealing | £ 485,000 | BUY | 7 / 10 | 0.02 KM |
| Seaford Road, West Ealing | £ 525,000 | BUY | 6 / 10 | 0.04 KM |
| Seaford Road, London | £ 535,000 | BUY | 6 / 10 | 0.04 KM |
| Seaford Road, West Ealing | £ 385,000 | BUY | 6 / 10 | 0.05 KM |
Nearby Properties
| Address | Price | Distance |
|---|---|---|
| 99a Seaford Road | £ 636,000 | 0.04 KM |
| 151 Seaford Road | £ 249,950 | 0.04 KM |
| 125 Seaford Road | £ 320,000 | 0.04 KM |
| 91 Seaford Road | £ 165,932 | 0.04 KM |
| 99 Seaford Road | £ 485,000 | 0.04 KM |