Druce says ..
A charming two-bedroom freehold Victorian cottage nestled on a quiet residential road in Fulham, complete with private outdoor space.
Property Oracle says ..
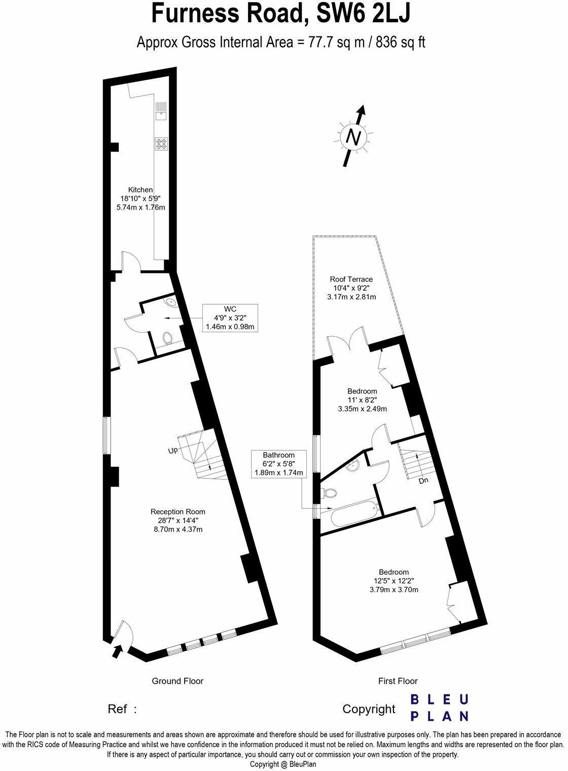
The property is a charming two-bedroom Victorian cottage situated on a quiet residential street in Fulham. The images show a well-maintained interior with a modern kitchen and bathroom. The property benefits from a private outdoor space, which is a significant advantage in a densely populated area like London. The location in Sands End is desirable, with nearby outstandingly rated schools like Langford Primary School and Ormiston Courtyard Academy within a short distance. Several transportation options are also within reasonable proximity, including Imperial Wharf (London Overground) and Wandsworth Town (South Western Railway). The average price per square foot in the area is £1,308, and while the provided listing price of £800,000 seems comparatively low given the average price of £1,442,884 for the area, it is important to note that the property’s size (836 sqft) is smaller than the area average (1103 sqft) and that the plot size is 0.00 sqft. This could explain the lower price. Further investigation into comparable properties on Furness Road would be needed to determine if the list price is truly undervalued.
Therefore, we give this property 6 / 10. *Disclaimer: This is our option and does constitute a recommendation or financial advice. Do your own research. *
- Price
- 7
- Condition
- 8
- Location
- 9
- Land
- 3
- Bedrooms
- 2
- Bathrooms
- 1
- Sqft (est)
- 836.00
The heatmap indicates the level of crime in the area. The color of the heatmap indicates the crime severity and recency.
Metrics Year-on-Year
- Average area value
- 1,383,762.00 £Increased by 8.10 %
- Est sale value
- 1,716,308.00 £Increased by 67.73 %
- Average area rental value
- 3,390.00 £/moIncreased by 11.04 %
- Est letting value
- 4,180.00 £/moIncreased by 150.00 %
- Est rental Yield
- 2.94 %Increased by 2.80 %
- Crime Rate
- 2.00 %Unchanged by 0.00 %
Agent Activity
Druce created the listing.
Nearby Schools
| Name | Type | Ofsted | Distance |
|---|---|---|---|
| Ray'S Playhouse Ltd. | Children's Centre Linked Site | 0.11 KM | |
| Langford Primary School | Academy Sponsor Led | Outstanding | 0.12 KM |
| Ormiston Courtyard Academy | Academy Alternative Provision Converter | Outstanding | 0.12 KM |
| L'Ecole Des Petits School | Other Independent School | Outstanding | 0.33 KM |
| Thomas'S Fulham | Other Independent School | 0.79 KM |
Images
Nearby Streets
| Name | Average Price | Average Sqft | Distance |
|---|---|---|---|
| Langford Road | £ 0 | 0 | 0.00 KM |
| Fulmead Street | £ 0 | 0 | 0.00 KM |
| Bryan's Alley | £ 0 | 0 | 0.00 KM |
| Potters Road | £ 822,500 | 0 | 0.00 KM |
| William Morris Way | £ 1,505,000 | 0 | 0.00 KM |
Nearby Transport
| Name | NLC | TLC | Distance |
|---|---|---|---|
| Imperial Wharf | 9586 | IMW | 0.66 KM |
| Wandsworth Town | 5576 | WNT | 1.22 KM |
| West Brompton | 8875 | WBP | 1.87 KM |
| Clapham Junction | 5595 | CLJ | 2.14 KM |
| Earlsfield | 5584 | EAD | 3.30 KM |
Nearby Listings
| Address | Price | Type | Score | Distance |
|---|---|---|---|---|
| Furness Road, London, SW6 | £ 800,000 | BUY | 6 / 10 | 0.00 KM |
| Furness Road, Fulham, London, SW6 | £ 785,000 | BUY | 8 / 10 | 0.03 KM |
| Furness Road, Fulham | £ 800,000 | BUY | 7 / 10 | 0.03 KM |
| Furness Road, Fulham, London, SW6 | £ 850,000 | BUY | 8 / 10 | 0.04 KM |
| Furness Road, Fulham, London, SW6 | £ 785,000 | BUY | 6 / 10 | 0.05 KM |
Nearby Properties
| Address | Price | Distance |
|---|---|---|
| 25 Furness Road | £ 2,000,000 | 0.03 KM |
| 37 Furness Road | £ 1,375,000 | 0.03 KM |
| 39a Furness Road | £ 109,750 | 0.03 KM |
| 21 Furness Road | £ 490,000 | 0.03 KM |
| 30a Furness Road | £ 575,000 | 0.04 KM |