Derby Court, Bury, BL9 6WG
By Lifestyle Sales & Lettings
£ 135,000
Reviews
3 out of 5 stars
Lifestyle Sales & Lettings says ..
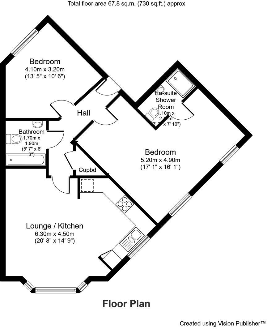
A SUPERB, SPACIOUS, TWO BEDROOM FIRST FLOOR APARTMENT situated on a modern development in a sought-after area within Bury. Situated just off Walmersley Road it is within walking distance to Bury Town Centre as well as having great access to local amenities, bus routes, the tram, and the motorway ...
Property Oracle says ..
The property is a two bedroom, two bathroom apartment located in Bury, Greater Manchester.
The apartment is situated in Derby Court, Moorside, which is approximately 9.93km from Clifton (Manchester) train station. There are several primary schools within a 1.5km radius, including Chesham Primary School, St John With St Mark Cofe Primary School, and Springside Primary School, all of which have a \‘Good\’ Ofsted rating.
Based on the provided images, the apartment appears to be in good condition. The kitchen and bathrooms are modern and well-maintained. The flooring throughout the apartment is modern and in good condition. There is no evidence of wear and tear or the need for renovation.
The property has no associated land. It is an apartment, therefore it does not have a garden.
The list price of £135,000 is slightly below the average price for the area (£178,256). However, the average size of properties in the area is 888 sqft, while this property is 729.79 sqft. Considering the smaller size and lack of outdoor space, the list price appears to be reasonably priced in line with other similar properties in the area. Nearby apartments in Derby Court have recently sold for between £110,000 and £150,000.
Therefore, we give this property 6 / 10. *Disclaimer: This is our option and does constitute a recommendation or financial advice. Do your own research. *
- Price
- 7
- Condition
- 9
- Location
- 7
- Land
- 1
- Bedrooms
- 2
- Bathrooms
- 2
- Sqft (est)
- 729.79
The heatmap indicates the level of crime in the area. The color of the heatmap indicates the crime severity and recency.
Metrics Year-on-Year
- Average area value
- 242,492.00 £Increased by 37.58 %
- Est sale value
- 218,207.21 £Increased by 59.04 %
- Average area rental value
- 903.00 £/moIncreased by 4.51 %
- Est letting value
- 729.79 £/mo
- Est rental Yield
- 4.47 %Decreased by 23.98 %
- Crime Rate
- 6.00 %Unchanged by 0.00 %
Agent Activity
Lifestyle Sales & Lettings created the listing.
Nearby Schools
| Name | Type | Ofsted | Distance |
|---|---|---|---|
| Chesham Primary School | Community School | Good | 0.48 KM |
| St John With St Mark Cofe Primary School | Voluntary Controlled School | Good | 0.79 KM |
| Springside Primary School | Community School | Good | 1.11 KM |
| St Joseph And St Bede Rc Primary School | Voluntary Aided School | Good | 1.50 KM |
| St Paul'S Church Of England Primary School, Bury | Voluntary Aided School | Requires improvement | 1.57 KM |
Images
Nearby Streets
| Name | Average Price | Average Sqft | Distance |
|---|---|---|---|
| Back Milner Avenue | £ 0 | 0 | 0.00 KM |
| Hazelwood Drive | £ 0 | 0 | 0.00 KM |
| Back Clifton Street | £ 0 | 0 | 0.00 KM |
| Chestnut Drive | £ 289,950 | 0 | 0.00 KM |
| Back Hamilton Street | £ 114,500 | 0 | 0.00 KM |
Nearby Transport
| Name | NLC | TLC | Distance |
|---|---|---|---|
| Clifton (Manchester) | 2795 | CLI | 9.93 KM |
Nearby Listings
| Address | Price | Type | Score | Distance |
|---|---|---|---|---|
| Derby Court, Bury, BL9 6WG | £ 135,000 | BUY | 6 / 10 | 0.00 KM |
| Derby Court, Bury | £ 150,000 | BUY | 6 / 10 | 0.00 KM |
| Derby Court, Bury, Greater Manchester, BL9 6WG | £ 150,000 | BUY | 5 / 10 | 0.00 KM |
| Derby Court, Bury | £ 150,000 | BUY | 6 / 10 | 0.03 KM |
| Derby Court, Walmersley, Bury, Greater Manchester, BL9 | £ 110,000 | BUY | Unknown | 0.04 KM |
Nearby Properties
| Address | Price | Distance |
|---|---|---|
| 70 Derby Court | £ 115,000 | 0.04 KM |
| 25 Derby Court | £ 128,287 | 0.04 KM |
| 62 Derby Court | £ 120,000 | 0.04 KM |
| 14 Derby Court | £ 86,000 | 0.04 KM |
| 47 Derby Court | £ 130,000 | 0.04 KM |