Watermark Road, Maidstone, ME14
By Knight Edmonds
£ 475,000
Reviews
3 out of 5 stars
Knight Edmonds says ..
No Onward Chain | Driveway & EV Charging | Immaculate Presentation Throughout | Fantastic Transport Links & Amenities Nearby | Set Over 3 Floors | En-suite To Main Bedroom | Solar Panels
Property Oracle says ..
This is a well-presented, modern semi-detached property in a convenient location in Maidstone. It benefits from good access to transport links and schools. The property has been recently renovated and is in excellent condition. The garden is a good size and well-maintained. The price is slightly above average for the area, but this is justified by the condition and location of the property.
Therefore, we give this property 7 / 10. *Disclaimer: This is our option and does constitute a recommendation or financial advice. Do your own research. *
- Price
- 6
- Condition
- 9
- Location
- 7
- Land
- 7
- Bedrooms
- 4
- Bathrooms
- 2
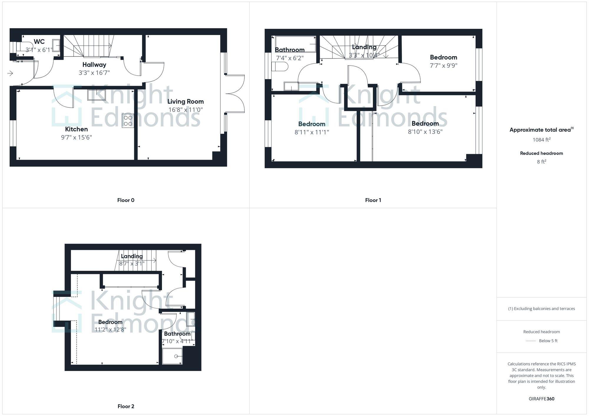
- Sqft (est)
- 970.75
The heatmap indicates the level of crime in the area. The color of the heatmap indicates the crime severity and recency.
Metrics Year-on-Year
- Average area value
- 273,561.00 £Increased by 1.68 %
- Est sale value
- 326,172.00 £Increased by 19.57 %
- Average area rental value
- 1,086.00 £/moDecreased by 11.20 %
- Est letting value
- 970.75 £/moUnchanged by 0.00 %
- Est rental Yield
- 4.76 %Decreased by 12.66 %
- Crime Rate
- 6.00 %Unchanged by 0.00 %
Agent Activity
Knight Edmonds created the listing.
Nearby Schools
| Name | Type | Ofsted | Distance |
|---|---|---|---|
| Maidstone Grammar School For Girls | Foundation School | Outstanding | 0.68 KM |
| North Borough Junior School | Community School | Good | 0.81 KM |
| The Maplesden Noakes School | Academy Converter | Good | 0.86 KM |
| Mepa Academy Limited | Other Independent School | 0.94 KM | |
| St Paul'S Infant School | Community School | Good | 0.95 KM |
Images
Nearby Streets
| Name | Average Price | Average Sqft | Distance |
|---|---|---|---|
| guinevere point | £ 250,000 | 0 | 0.00 KM |
| James Whathan Way | £ 362,852 | 0 | 0.00 KM |
| Springfield Avenue | £ 0 | 0 | 0.00 KM |
| Waterside | £ 0 | 0 | 0.00 KM |
| County Road | £ 600,000 | 0 | 0.00 KM |
Nearby Transport
| Name | NLC | TLC | Distance |
|---|---|---|---|
| Maidstone East | 5115 | MDE | 0.64 KM |
| Maidstone Barracks | 5237 | MDB | 0.69 KM |
| Maidstone West | 5222 | MDW | 1.32 KM |
| Barming | 5133 | BMG | 4.28 KM |
| East Farleigh | 5234 | EFL | 4.71 KM |
Nearby Listings
| Address | Price | Type | Score | Distance |
|---|---|---|---|---|
| Watermark Road, Maidstone, ME14 | £ 475,000 | BUY | 7 / 10 | 0.00 KM |
| Chimney Avenue, Maidstone, Kent, ME14 | £ 100,000 | BUY | 6 / 10 | 0.07 KM |
| Chimney Avenue, Maidstone, Kent | £ 84,000 | BUY | 6 / 10 | 0.07 KM |
| Chimney Avenue, Maidstone | £ 84,000 | BUY | 6 / 10 | 0.07 KM |
| Chimney Avenue, Maidstone, Kent | £ 210,000 | BUY | 6 / 10 | 0.07 KM |
Nearby Properties
| Address | Price | Distance |
|---|---|---|
| 80 Sandling Road | £ 257,000 | 0.16 KM |
| 84 Sandling Road | £ 206,000 | 0.16 KM |
| 65 Sandling Road | £ 168,000 | 0.16 KM |
| 73 Sandling Road | £ 295,000 | 0.16 KM |
| 74 Sandling Road | £ 190,000 | 0.16 KM |