PFK says ..
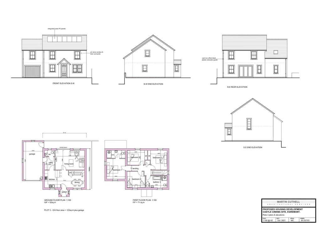
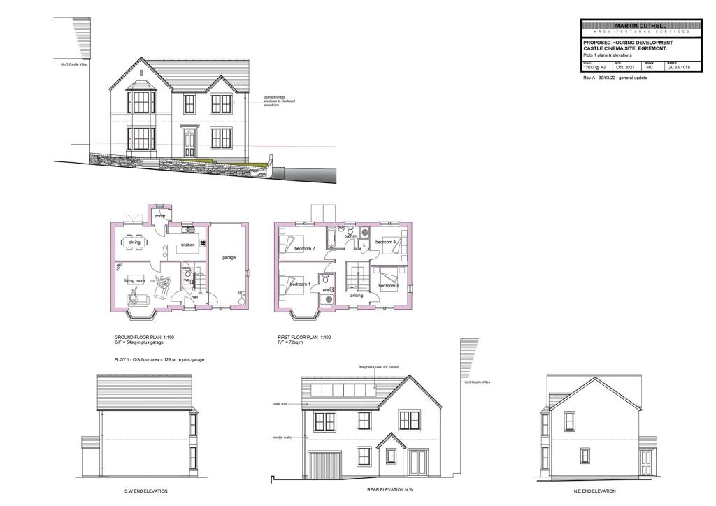
An exciting opportunity to acquire a development site with approved plans to build four detached homes, each with a minimum of two off-street parking spaces.
Property Oracle says ..
The property is a plot of land located in Egremont, Cumbria. The plot is 750 sqft. The land is located near local schools and amenities. The listing price is below the average property price in the area.. The property is undeveloped and requires construction.
Therefore, we give this property 5 / 10. *Disclaimer: This is our option and does constitute a recommendation or financial advice. Do your own research. *
- Price
- 6
- Condition
- 1
- Location
- 7
- Land
- 8
- Bedrooms
- 0
- Bathrooms
- 0
- Lot (est)
- 750.00
The heatmap indicates the level of crime in the area. The color of the heatmap indicates the crime severity and recency.
Metrics Year-on-Year
- Average area value
- 436,667.00 £Increased by 9.99 %
- Average area rental value
- 1,625.00 £/moIncreased by 11.23 %
- Est rental Yield
- 4.47 %Increased by 1.13 %
- Crime Rate
- 5.00 %Unchanged by 0.00 %
from 397,024.00 £
from 1,461.00 £/mo
from 4.42 %
from 5.00 %
Agent Activity
PFK created the listing.
Nearby Schools
| Name | Type | Ofsted | Distance |
|---|---|---|---|
| Bookwell Primary School | Community School | Outstanding | 0.14 KM |
| West Lakes Academy | Academy Sponsor Led | Outstanding | 0.43 KM |
| St Bridget'S Catholic Primary School | Voluntary Aided School | Good | 0.50 KM |
| Egremont Surestart Children'S Centre | Children's Centre | 0.98 KM | |
| Orgill Primary School | Community School | Good | 0.99 KM |
Images
Nearby Streets
| Name | Average Price | Average Sqft | Distance |
|---|---|---|---|
| Castle Walk | £ 0 | 0 | 0.00 KM |
| Dale View Close | £ 175,000 | 0 | 0.00 KM |
| Park View | £ 75,000 | 0 | 0.00 KM |
| Beck Green | £ 0 | 0 | 0.00 KM |
| Whitegate | £ 0 | 0 | 0.00 KM |
Nearby Transport
| Name | NLC | TLC | Distance |
|---|---|---|---|
| Nethertown | 2047 | NRT | 4.75 KM |
| Braystones | 2045 | BYS | 4.76 KM |
| St Bees | 2002 | SBS | 6.84 KM |
| Sellafield | 2004 | SEL | 7.46 KM |
| Corkickle | 2049 | CKL | 8.87 KM |
Nearby Listings
| Address | Price | Type | Score | Distance |
|---|---|---|---|---|
| Bookwell, Egremont, Cumbria, CA22 | £ 120,000 | BUY | 6 / 10 | 0.00 KM |
| 1-4 Castle Keep, Egremont CA22 | £ 195,000 | BUY | 5 / 10 | 0.00 KM |
| Bookwell, Egremont, CA22 | £ 200,000 | BUY | 7 / 10 | 0.08 KM |
| Bookwell, Egremont, Cumbria, CA22 | £ 280,000 | BUY | 7 / 10 | 0.09 KM |
| 16 Bookwell, Egremont CA22 2LS | £ 225,000 | BUY | 4 / 10 | 0.13 KM |
Nearby Properties
| Address | Price | Distance |
|---|---|---|
| 3 St Bridgets Lane | £ 15,000 | 0.10 KM |
| Thorn How | £ 70,000 | 0.10 KM |
| Yew Tree House | £ 55,000 | 0.10 KM |
| 1 St Bridgets Lane | £ 35,000 | 0.10 KM |
| 7 - 8 Bookwell | £ 185,000 | 0.13 KM |