Dean Place, Bathgate, EH47
By Keller Williams
£ 135,000
Reviews
3 out of 5 stars
Keller Williams says ..
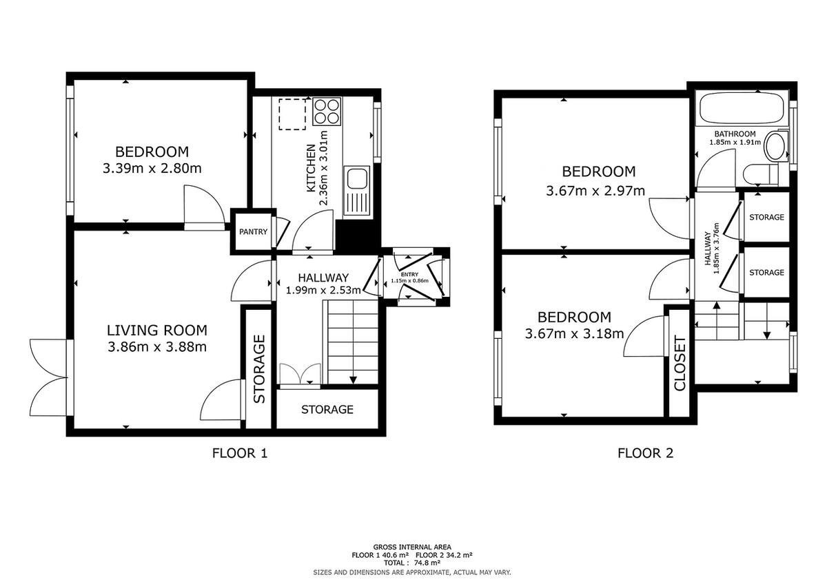
Spacious and well-kept 3-bed home offering a fantastic opportunity to modernise. Generous living space, well portioned rooms and private garden to the rear — close to schools, shops, and transport links
Property Oracle says ..
The property is a 3-bedroom terraced house located in Bathgate, West Lothian. The property is in need of renovation but has a good-sized garden. The property is located close to local amenities and is within commuting distance of Edinburgh and Glasgow. The property represents good value for money.
Therefore, we give this property 6 / 10. *Disclaimer: This is our option and does constitute a recommendation or financial advice. Do your own research. *
- Price
- 8
- Condition
- 4
- Location
- 6
- Land
- 7
- Bedrooms
- 3
- Bathrooms
- 2
The heatmap indicates the level of crime in the area. The color of the heatmap indicates the crime severity and recency.
Metrics Year-on-Year
- Average area value
- 712,500.00 £Increased by 63.65 %
- Average area rental value
- 1,330.00 £/moIncreased by 17.28 %
- Est rental Yield
- 2.24 %Decreased by 28.43 %
- Crime Rate
- 0.00 %
Agent Activity
Keller Williams created the listing.
Images
Nearby Streets
| Name | Average Price | Average Sqft | Distance |
|---|---|---|---|
| Dean Place | £ 0 | 0 | 0.00 KM |
| Beech Place | £ 0 | 0 | 0.00 KM |
| Seafield Rows | £ 0 | 0 | 0.00 KM |
Nearby Transport
| Name | NLC | TLC | Distance |
|---|---|---|---|
| West Calder | 9250 | WCL | 3.42 KM |
| Addiewell | 9310 | ADW | 4.54 KM |
| Livingston North | 9371 | LSN | 5.22 KM |
| Bathgate | 9311 | BHG | 5.96 KM |
| Livingston South | 9372 | LVG | 9.32 KM |
Nearby Listings
| Address | Price | Type | Score | Distance |
|---|---|---|---|---|
| Dean Place, Bathgate, EH47 | £ 135,000 | BUY | 6 / 10 | 0.00 KM |
| Dean Place, Bathgate, EH47 | £ 100,000 | BUY | 4 / 10 | 0.07 KM |
| Deanburn Gardens, Seafield, EH47 | £ 299,000 | BUY | 7 / 10 | 0.11 KM |
| Almond View, Bathgate, EH47 | £ 199,500 | BUY | Unknown | 0.18 KM |
| Almond View, Seafield, Bathgate, EH47 | £ 130,000 | BUY | 6 / 10 | 0.28 KM |