Gascoigne Halman says ..
A charming and immaculately presented period semi-detached home. Situated in a sought-after residential area, this beautifully presented three-bedroom period property seamlessly blends timeless character with modern comforts. Boasting spacious and light and airy accommodation and measuring a hig...
Property Oracle says ..
Therefore, we give this property 7 / 10. *Disclaimer: This is our option and does constitute a recommendation or financial advice. Do your own research. *
- Price
- 8
- Condition
- 7
- Location
- 8
- Land
- 7
- Bedrooms
- 3
- Bathrooms
- 1
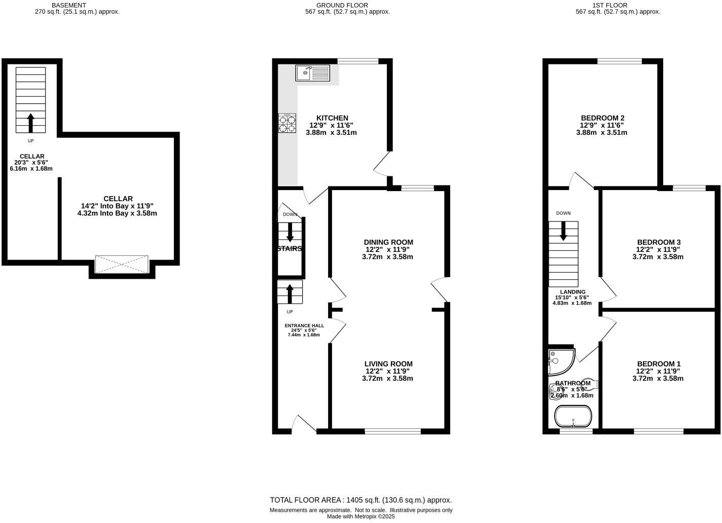
- Sqft (est)
- 1,405.00
The heatmap indicates the level of crime in the area. The color of the heatmap indicates the crime severity and recency.
Metrics Year-on-Year
- Average area value
- 320,833.00 £Increased by 5.35 %
- Est sale value
- 720,765.00 £Increased by 67.10 %
- Average area rental value
- 1,380.00 £/moDecreased by 15.49 %
- Est letting value
- 2,810.00 £/moIncreased by 100.00 %
- Est rental Yield
- 5.16 %Decreased by 19.75 %
- Crime Rate
- 4.00 %Unchanged by 0.00 %
from 304,545.00 £
from 431,335.00 £
from 1,633.00 £/mo
from 1,405.00 £/mo
from 6.43 %
from 4.00 %
Agent Activity
Gascoigne Halman created the listing.
Nearby Schools
| Name | Type | Ofsted | Distance |
|---|---|---|---|
| Acacias Community Primary School | Community School | Good | 0.29 KM |
| Levenshulme High School | Academy Sponsor Led | Outstanding | 0.47 KM |
| Cringle Brook Primary School | Free Schools | Outstanding | 0.68 KM |
| St Bernard'S Rc Primary School Manchester | Voluntary Aided School | Good | 0.69 KM |
| Green End Primary School | Academy Converter | Outstanding | 0.72 KM |
Images
Nearby Streets
| Name | Average Price | Average Sqft | Distance |
|---|---|---|---|
| Kenwood Avenue | £ 370,000 | 0 | 0.00 KM |
| Enfield Avenue | £ 0 | 0 | 0.00 KM |
| Henley Place | £ 0 | 0 | 0.00 KM |
| Linden Park | £ 0 | 0 | 0.00 KM |
| Linden Park | £ 0 | 0 | 0.00 KM |
Nearby Transport
| Name | NLC | TLC | Distance |
|---|---|---|---|
| Mauldeth Road | 2867 | MAU | 1.17 KM |
| Levenshulme | 2862 | LVM | 1.25 KM |
| Burnage | 2945 | BNA | 2.40 KM |
| Heaton Chapel | 2861 | HTC | 2.41 KM |
| Belle Vue | 2785 | BLV | 3.68 KM |
Nearby Listings
| Address | Price | Type | Score | Distance |
|---|---|---|---|---|
| Moorton Avenue, Burnage | £ 375,000 | BUY | 7 / 10 | 0.00 KM |
| Redthorn Avenue, Burnage, Manchester, Greater Manchester, M19 | £ 300,000 | BUY | 6 / 10 | 0.05 KM |
| Whitethorn Avenue, Burnage, Manchester, Greater Manchester, M19 | £ 325,000 | BUY | 8 / 10 | 0.06 KM |
| Whitethorn Avenue, Burnage, Manchester, M19 | £ 330,000 | BUY | 7 / 10 | 0.09 KM |
| Burnage Lane, Burnage, Manchester, Greater Manchester, M19 | £ 460,000 | BUY | 6 / 10 | 0.13 KM |
Nearby Properties
| Address | Price | Distance |
|---|---|---|
| 9 Redthorn Avenue | £ 321,300 | 0.04 KM |
| 7 Redthorn Avenue | £ 252,000 | 0.04 KM |
| 19 Moorton Avenue | £ 169,950 | 0.05 KM |
| 21 Moorton Avenue | £ 236,000 | 0.05 KM |
| 11 Moorton Avenue | £ 43,500 | 0.05 KM |