Wapping High Street, Wapping
By ea2 Estate Agency
£ 2,500,000
Reviews
3 out of 5 stars
ea2 Estate Agency says ..
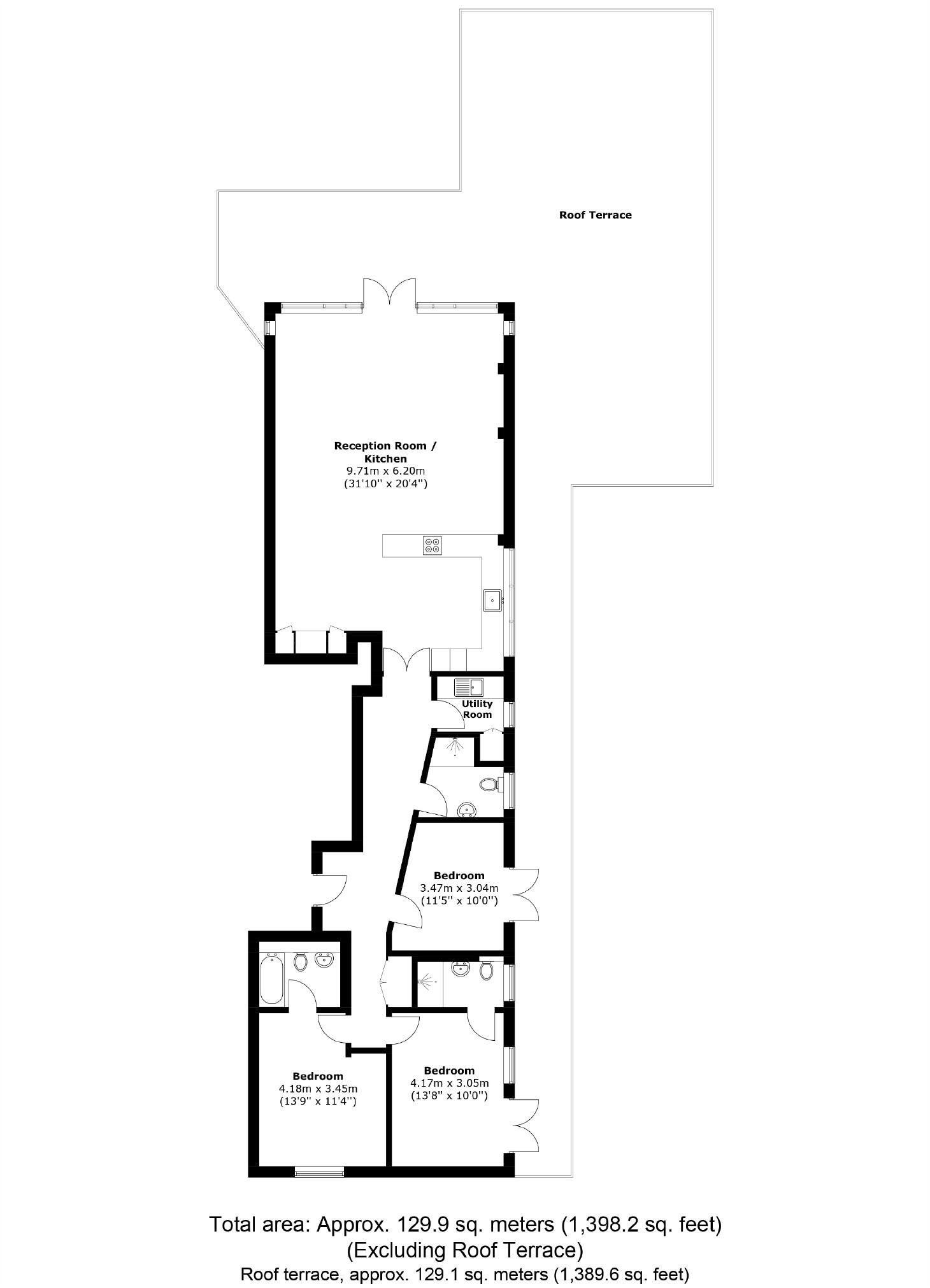
This apartment features meticulously designed interiors, with high-end finishes. Italian-crafted doors, engineered wooden flooring, and floor-to-ceiling windows allowing an abundance of natural light. The state-of-the-art German kitchen is a culinary dream, equipped with top-of-the-line appliance...
Property Oracle says ..
This property in Wapping, London presents a compelling opportunity for buyers seeking a modern, well-maintained apartment in a highly desirable location. The apartment boasts stunning views of the Thames and the London skyline from its rooftop terrace. The interior showcases a contemporary design with a modern kitchen and bathrooms. The location is excellent, with nearby access to transport links and highly-rated schools. However, the notable drawback is the limited private outdoor space, which is mostly restricted to the rooftop terrace. This aspect, combined with the lack of extensive data on nearby property sizes and prices, makes precise price-per-square-foot comparisons challenging to make definitively. Overall, the property offers a unique blend of modern living and prime location but may not suit buyers prioritizing ample private outdoor space.
Therefore, we give this property 6 / 10. *Disclaimer: This is our option and does constitute a recommendation or financial advice. Do your own research. *
- Price
- 7
- Condition
- 8
- Location
- 9
- Land
- 2
- Bedrooms
- 3
- Bathrooms
- 3
- Sqft (est)
- 1,398.20
The heatmap indicates the level of crime in the area. The color of the heatmap indicates the crime severity and recency.
Metrics Year-on-Year
- Average area value
- 1,071,462.00 £Increased by 21.52 %
- Est sale value
- 1,634,495.80 £Increased by 51.82 %
- Average area rental value
- 2,484.00 £/moDecreased by 4.86 %
- Est letting value
- 2,796.40 £/moUnchanged by 0.00 %
- Est rental Yield
- 2.78 %Decreased by 21.69 %
- Crime Rate
- 1.00 %Unchanged by 0.00 %
Agent Activity
ea2 Estate Agency created the listing.
Nearby Schools
| Name | Type | Ofsted | Distance |
|---|---|---|---|
| Hermitage Primary School | Community School | Good | 0.14 KM |
| St Michael'S Catholic College | Academy Converter | Outstanding | 0.47 KM |
| Riverside Primary School | Community School | Outstanding | 0.59 KM |
| St Paul'S Whitechapel Church Of England Primary School | Voluntary Aided School | Outstanding | 0.63 KM |
| St Joseph'S Roman Catholic Primary School | Voluntary Aided School | Good | 0.63 KM |
Images
Nearby Streets
| Name | Average Price | Average Sqft | Distance |
|---|---|---|---|
| Hermitage Stairs | £ 0 | 0 | 0.00 KM |
| Waveney Close | £ 0 | 0 | 0.00 KM |
| Wapping High Street | £ 185,000 | 0 | 0.00 KM |
| Waterside Promenade | £ 0 | 0 | 0.00 KM |
| Smeaton Street | £ 775,000 | 0 | 0.00 KM |
Nearby Transport
| Name | NLC | TLC | Distance |
|---|---|---|---|
| Wapping | 1085 | WPE | 1.19 KM |
| Shadwell | 1082 | SDE | 1.32 KM |
| Fenchurch Street | 7490 | FST | 1.56 KM |
| Rotherhithe | 1039 | ROE | 1.67 KM |
| Whitechapel | 4935 | ZLW | 1.83 KM |
Nearby Listings
| Address | Price | Type | Score | Distance |
|---|---|---|---|---|
| Wapping High Street, Wapping | £ 2,500,000 | BUY | 6 / 10 | 0.00 KM |
| Miah Terrace, Wapping High Street, London, E1W | £ 1,870,000 | BUY | Unknown | 0.00 KM |
| Cinnabar Wharf West, 22 Wapping High Street, London, E1W | £ 2,000,000 | BUY | 6 / 10 | 0.06 KM |
| Wapping High Street, London, E1W | £ 650,000 | BUY | 6 / 10 | 0.06 KM |
| Cinnabar Wharf West, 22 Wapping High Street, London, E1W | £ 1,750,000 | BUY | 7 / 10 | 0.06 KM |
Nearby Properties
| Address | Price | Distance |
|---|---|---|
| 153 Thomas More Street | £ 240,000 | 0.19 KM |
| 55 Thomas More Street | £ 412,500 | 0.19 KM |
| 121 Thomas More Street | £ 667,500 | 0.19 KM |
| 83 Thomas More Street | £ 425,000 | 0.19 KM |
| 183 Thomas More Street | £ 241,000 | 0.19 KM |