Naylor Powell says ..
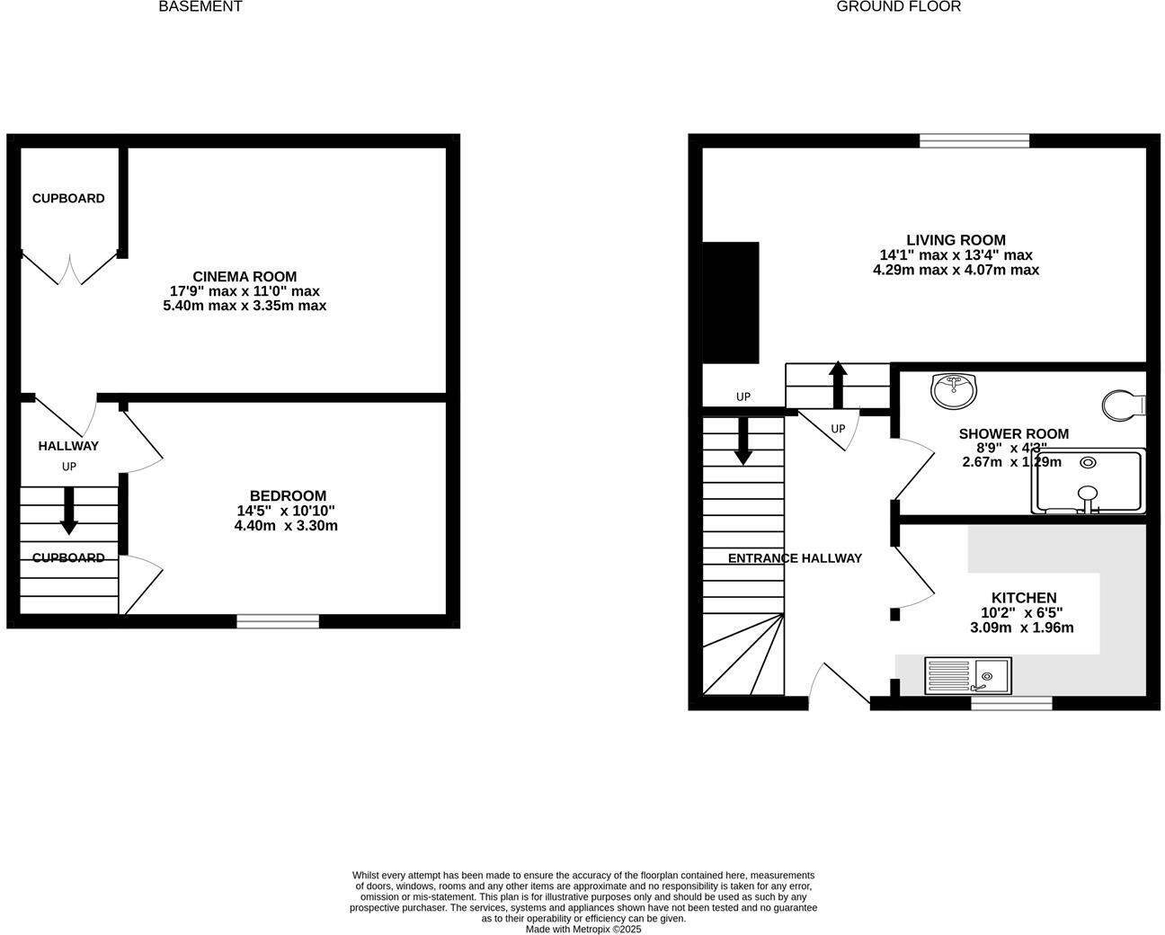
Offered to the market with no onward chain, this charming one double bedroom maisonette is offered to the market. The property benefits from a unique blend of modern and characterful features set over two floors. Further benefitting from parking and a courtyard garden, the property makes for an i...
Property Oracle says ..
Therefore, we give this property 7 / 10. *Disclaimer: This is our option and does constitute a recommendation or financial advice. Do your own research. *
- Price
- 8
- Condition
- 8
- Location
- 7
- Land
- 6
- Bedrooms
- 2
- Bathrooms
- 1
- Sqft (est)
- 643.16
The heatmap indicates the level of crime in the area. The color of the heatmap indicates the crime severity and recency.
Metrics Year-on-Year
- Average area value
- 222,854.00 £Decreased by 15.77 %
- Est sale value
- 185,230.08 £Decreased by 6.19 %
- Average area rental value
- 1,201.00 £/moIncreased by 7.91 %
- Est letting value
- 643.16 £/moUnchanged by 0.00 %
- Est rental Yield
- 6.47 %Increased by 28.12 %
- Crime Rate
- 11.00 %Unchanged by 0.00 %
from 264,570.00 £
from 197,450.12 £
from 1,113.00 £/mo
from 643.16 £/mo
from 5.05 %
from 11.00 %
Agent Activity
Naylor Powell created the listing.
Nearby Schools
| Name | Type | Ofsted | Distance |
|---|---|---|---|
| St Paul'S Church Of England Primary School | Voluntary Controlled School | Good | 0.48 KM |
| The King'S School, Gloucester | Other Independent School | 0.84 KM | |
| Bartongate Children'S Centre | Children's Centre | 1.09 KM | |
| Al-Ashraf Secondary School For Girls | Other Independent School | Good | 1.11 KM |
| Tredworth Junior School | Community School | Good | 1.14 KM |
Images
Nearby Streets
| Name | Average Price | Average Sqft | Distance |
|---|---|---|---|
| Henley Court | £ 0 | 0 | 0.00 KM |
| Greyfriars | £ 0 | 0 | 0.00 KM |
| Marylone | £ 0 | 0 | 0.00 KM |
| Somerset Place | £ 0 | 0 | 0.00 KM |
| Park End Road | £ 1,100,000 | 0 | 0.00 KM |
Nearby Transport
| Name | NLC | TLC | Distance |
|---|---|---|---|
| Gloucester | 4760 | GCR | 0.99 KM |
Nearby Listings
| Address | Price | Type | Score | Distance |
|---|---|---|---|---|
| Montpellier mews, Gloucester | £ 155,000 | BUY | 7 / 10 | 0.00 KM |
| Brunswick Road, Gloucester | £ 265,000 | BUY | 6 / 10 | 0.07 KM |
| Park Road, Fitzalan House Park Road, GL1 | £ 125,000 | BUY | 5 / 10 | 0.08 KM |
| Park Road, Gloucester, Gloucestershire, GL1 | £ 145,000 | BUY | Unknown | 0.08 KM |
| Park Road, Fitzalan House Park Road, GL1 | £ 130,000 | BUY | 5 / 10 | 0.08 KM |
Nearby Properties
| Address | Price | Distance |
|---|---|---|
| 10 Park Road | £ 133,000 | 0.05 KM |
| 2 North Villas | £ 480,000 | 0.06 KM |
| 55 Brunswick Road | £ 583,000 | 0.08 KM |
| 21 Park Road | £ 199,950 | 0.11 KM |
| 19a Park Road | £ 73,500 | 0.11 KM |