Freshfield Drive, Macclesfield
By Gascoigne Halman
£ 485,000
Reviews
3 out of 5 stars
Gascoigne Halman says ..
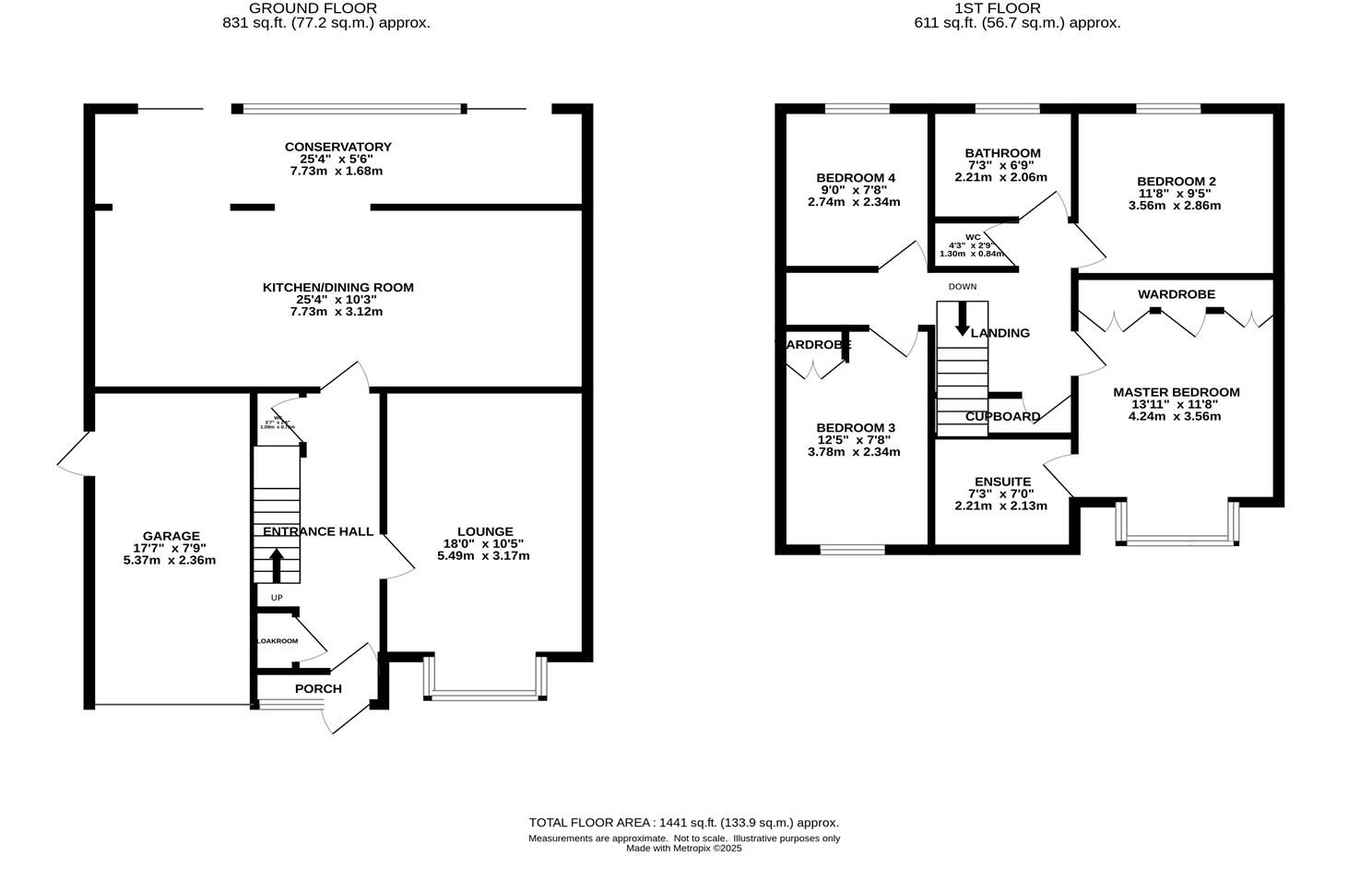
An extended beautifully refurbished four bedroom two bathroom detached family home offering stylish accommodation throughout with a great size dining kitchen and private gardens.
Property Oracle says ..
This four-bedroom, two-bathroom property in Macclesfield’s Tytherington area presents itself as a well-maintained family home. The recent refurbishment is evident in the updated kitchen and bathrooms, which feature modern design and finishes. The kitchen is notable for its generous size, open-plan extension and contemporary fittings. This combined with the inclusion of a conservatory adds value. The property’s condition is above average and the interior is presented in a clean, modern style, further highlighting the renovation effort. While the provided plot size is zero, images do indicate the presence of a garden which is tiered and of a relatively modest size. The property benefits from a convenient location close to well-regarded schools and train stations, which should prove attractive to families. Additional details such as proximity to local shops and other amenities would provide more context for the overall valuation. However, based on the available information, the property appears to be a well-presented and relatively reasonably priced option for buyers looking in this area of Macclesfield.
Therefore, we give this property 6 / 10. *Disclaimer: This is our option and does constitute a recommendation or financial advice. Do your own research. *
- Price
- 7
- Condition
- 8
- Location
- 7
- Land
- 4
- Bedrooms
- 4
- Bathrooms
- 2
- Sqft (est)
- 1,441.00
The heatmap indicates the level of crime in the area. The color of the heatmap indicates the crime severity and recency.
Metrics Year-on-Year
- Average area value
- 439,983.00 £Increased by 15.50 %
- Est sale value
- 749,320.00 £Increased by 73.91 %
- Average area rental value
- 1,823.00 £/moIncreased by 46.54 %
- Est letting value
- 2,882.00 £/mo
- Est rental Yield
- 4.97 %Increased by 26.79 %
- Crime Rate
- 1.00 %Unchanged by 0.00 %
Agent Activity
Gascoigne Halman created the listing.
Nearby Schools
| Name | Type | Ofsted | Distance |
|---|---|---|---|
| Beech Hall School | Other Independent School | 0.55 KM | |
| Bollinbrook Cofe (A) Primary School | Voluntary Aided School | Requires improvement | 0.70 KM |
| Tytherington School | Academy Converter | Good | 0.81 KM |
| Marlborough Primary School | Academy Converter | Good | 1.04 KM |
| Parkroyal Community School | Academy Converter | Good | 1.83 KM |
Images
Nearby Streets
| Name | Average Price | Average Sqft | Distance |
|---|---|---|---|
| Ripon Close | £ 0 | 0 | 0.00 KM |
| Hall Close | £ 425,000 | 0 | 0.00 KM |
| Beech Bank | £ 795,000 | 0 | 0.00 KM |
| Bramble Close | £ 0 | 0 | 0.00 KM |
| Marlborough Close | £ 0 | 0 | 0.00 KM |
Nearby Transport
| Name | NLC | TLC | Distance |
|---|---|---|---|
| Macclesfield | 2871 | MAC | 2.04 KM |
| Prestbury | 2875 | PRB | 2.55 KM |
| Adlington (Cheshire) | 2939 | ADC | 5.04 KM |
| Poynton | 2874 | PYT | 8.47 KM |
Nearby Listings
| Address | Price | Type | Score | Distance |
|---|---|---|---|---|
| Freshfield Drive, Macclesfield | £ 485,000 | BUY | 6 / 10 | 0.00 KM |
| Freshfield Drive, Macclesfield | £ 430,000 | BUY | 6 / 10 | 0.02 KM |
| Freshfield Drive, Macclesfield | £ 495,000 | BUY | 8 / 10 | 0.15 KM |
| Clare Drive, Tytherington | £ 325,000 | BUY | 7 / 10 | 0.15 KM |
| Harvest Road, Macclesfield | £ 440,000 | BUY | 7 / 10 | 0.15 KM |
Nearby Properties
| Address | Price | Distance |
|---|---|---|
| 29 Freshfield Drive | £ 240,000 | 0.04 KM |
| 23 Freshfield Drive | £ 445,000 | 0.04 KM |
| 25 Freshfield Drive | £ 315,000 | 0.04 KM |
| 33 Freshfield Drive | £ 270,000 | 0.04 KM |
| 30 Freshfield Drive | £ 500,000 | 0.04 KM |