Hunters says ..
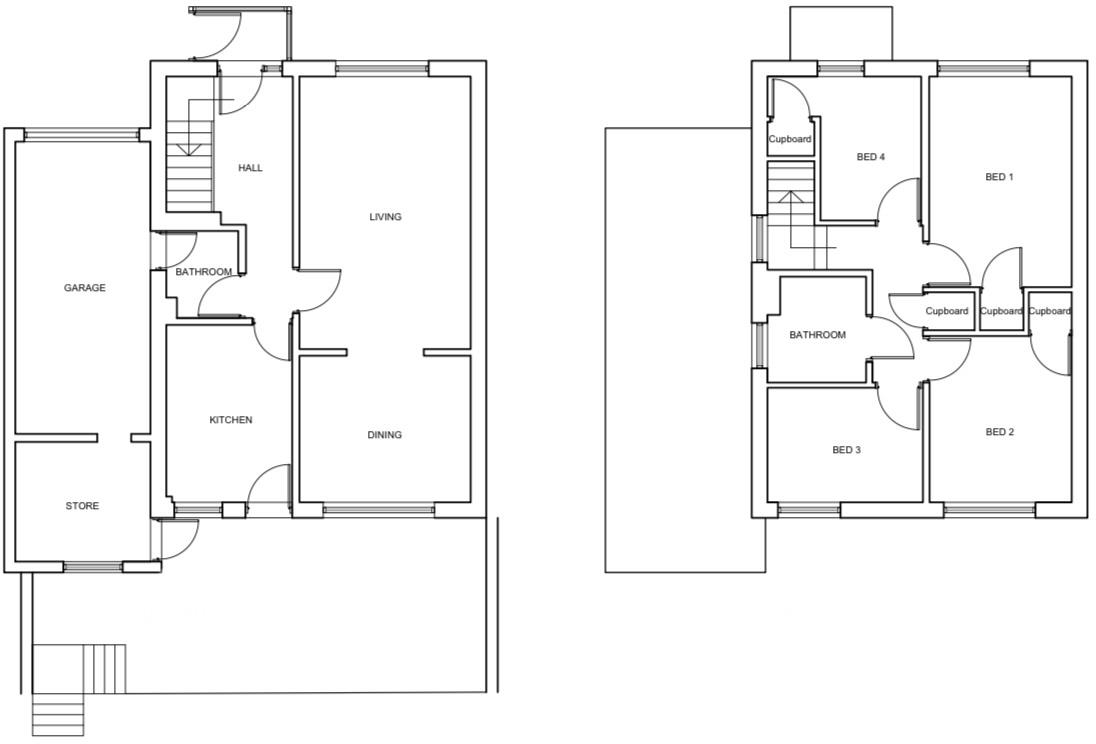
Set in a quiet cul-de-sac within easy reach of local amenities and scenic countryside walks, Torchacre Rise is a well-proportioned four-bedroom family home offering generous living space, a low-maintenance garden, and exciting potential for future development. The accommodation includes ...
Property Oracle says ..
Therefore, we give this property 6 / 10. *Disclaimer: This is our option and does constitute a recommendation or financial advice. Do your own research. *
- Price
- 6
- Condition
- 6
- Location
- 7
- Land
- 7
- Bedrooms
- 4
- Bathrooms
- 1
- Sqft (est)
- 1,581.00
The heatmap indicates the level of crime in the area. The color of the heatmap indicates the crime severity and recency.
Metrics Year-on-Year
- Average area value
- 251,538.00 £Increased by 21.55 %
- Est sale value
- 327,267.00 £Decreased by 4.17 %
- Average area rental value
- 754.00 £/moDecreased by 18.22 %
- Est letting value
- 0.00 £/mo
- Est rental Yield
- 3.60 %Decreased by 32.71 %
- Crime Rate
- 7.00 %Unchanged by 0.00 %
from 206,948.00 £
from 341,496.00 £
from 922.00 £/mo
from 0.00 £/mo
from 5.35 %
from 7.00 %
Agent Activity
Hunters created the listing.
Nearby Schools
| Name | Type | Ofsted | Distance |
|---|---|---|---|
| Rednock School | Foundation School | Good | 0.68 KM |
| Cam Everlands Primary School | Community School | Good | 1.52 KM |
| Peak Academy | Academy Special Sponsor Led | Serious Weaknesses | 1.56 KM |
| Cam Hopton Church Of England Primary School | Voluntary Aided School | Good | 1.72 KM |
| Dursley Church Of England Primary Academy | Academy Sponsor Led | Good | 1.93 KM |
Images
Nearby Streets
| Name | Average Price | Average Sqft | Distance |
|---|---|---|---|
| Five Acres | £ 460,000 | 0 | 0.00 KM |
| Cedar Drive | £ 352,500 | 0 | 0.00 KM |
| Woodland Drive | £ 548,000 | 0 | 0.00 KM |
| Castle Street | £ 0 | 0 | 0.00 KM |
| Woodland Avenue | £ 563,738 | 0 | 0.00 KM |
Nearby Transport
| Name | NLC | TLC | Distance |
|---|---|---|---|
| Cam And Dursley | 3238 | CDU | 4.03 KM |
Nearby Listings
| Address | Price | Type | Score | Distance |
|---|---|---|---|---|
| Torchacre Rise, Dursley | £ 450,000 | BUY | 6 / 10 | 0.00 KM |
| Hardings Drive, Dursley | £ 415,000 | BUY | 6 / 10 | 0.12 KM |
| The Broadway, Dursley | £ 525,000 | BUY | 7 / 10 | 0.17 KM |
| Cedar Drive, Dursley | £ 345,000 | BUY | 6 / 10 | 0.18 KM |
| Five Acres, Dursley | £ 525,000 | BUY | 7 / 10 | 0.20 KM |
Nearby Properties
| Address | Price | Distance |
|---|---|---|
| 12 Torchacre Rise | £ 475,000 | 0.05 KM |
| 14 Torchacre Rise | £ 300,000 | 0.05 KM |
| 8 Torchacre Rise | £ 215,000 | 0.05 KM |
| 15 Torchacre Rise | £ 330,000 | 0.05 KM |
| 4 Torchacre Rise | £ 215,000 | 0.05 KM |