Aston Way, Epsom
By The Personal Agent
£ 775,000
The Personal Agent says ..
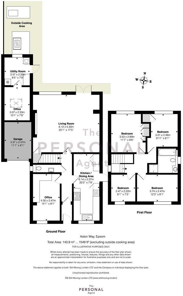
**CHAIN FREE** This detached family home is set within a desirable residential road to the South of Epsom town centre and within easy reach of Epsom mainline station, and the open spaces of The Downs. The property is deceptively spacious and offers generous accommodation laid out over tw...
- Bedrooms
- 4
- Bathrooms
- 2
The heatmap indicates the level of crime in the area. The color of the heatmap indicates the crime severity and recency.
Metrics Year-on-Year
- Average area value
- 366,367.00 £Decreased by 13.34 %
- Average area rental value
- 1,298.00 £/moIncreased by 6.13 %
- Est rental Yield
- 4.25 %Increased by 22.48 %
- Crime Rate
- 1.00 %Unchanged by 0.00 %
from 422,745.00 £
from 1,223.00 £/mo
from 3.47 %
from 1.00 %
Agent Activity
The Personal Agent created the listing.
Nearby Schools
| Name | Type | Ofsted | Distance |
|---|---|---|---|
| St Christopher'S School Trust (Epsom) Ltd | Other Independent School | 0.77 KM | |
| St Martin'S Sure Start Children'S Centre | Children's Centre | 1.15 KM | |
| Epsom College | Other Independent School | 1.37 KM | |
| Little Downsend Epsom | Other Independent School | 1.60 KM | |
| Wallace Fields Infant School And Nursery | Academy Converter | 1.71 KM |
Images
Nearby Streets
| Name | Average Price | Average Sqft | Distance |
|---|---|---|---|
| Rifle Butts Alley | £ 800,000 | 0 | 0.00 KM |
| Walnut Close | £ 812,500 | 0 | 0.00 KM |
| Fyfield Close | £ 0 | 0 | 0.00 KM |
| Chalk Lane | £ 0 | 0 | 0.00 KM |
| St. Martin's Avenue | £ 591,667 | 0 | 0.00 KM |
Nearby Transport
| Name | NLC | TLC | Distance |
|---|---|---|---|
| Epsom Downs | 5361 | EPD | 1.89 KM |
| Epsom | 5360 | EPS | 2.01 KM |
| Tattenham Corner | 5387 | TAT | 2.02 KM |
| Ewell East | 5415 | EWE | 3.07 KM |
| Ewell West | 5586 | EWW | 3.16 KM |
Nearby Listings
| Address | Price | Type | Score | Distance |
|---|---|---|---|---|
| Aston Way, Epsom | £ 775,000 | BUY | Unknown | 0.00 KM |
| Aston Way, EPSOM | £ 800,000 | BUY | 6 / 10 | 0.04 KM |
| Aston Way, Epsom | £ 735,000 | BUY | 7 / 10 | 0.05 KM |
| Aston Way, Epsom, KT18 | £ 650,000 | BUY | Unknown | 0.12 KM |
| Treadwell Road, Epsom, KT18 | £ 540,000 | BUY | 6 / 10 | 0.15 KM |
Nearby Properties
| Address | Price | Distance |
|---|---|---|
| 17 Aston Way | £ 233,000 | 0.05 KM |
| 21 Aston Way | £ 440,000 | 0.05 KM |
| 28 Aston Way | £ 415,000 | 0.05 KM |
| 30 Aston Way | £ 538,000 | 0.05 KM |
| 14 Aston Way | £ 427,200 | 0.05 KM |