Broad Street, Teddington
By Chase Buchanan incorporating Milestone
£ 425,000
Reviews
3 out of 5 stars
Chase Buchanan incorporating Milestone says ..
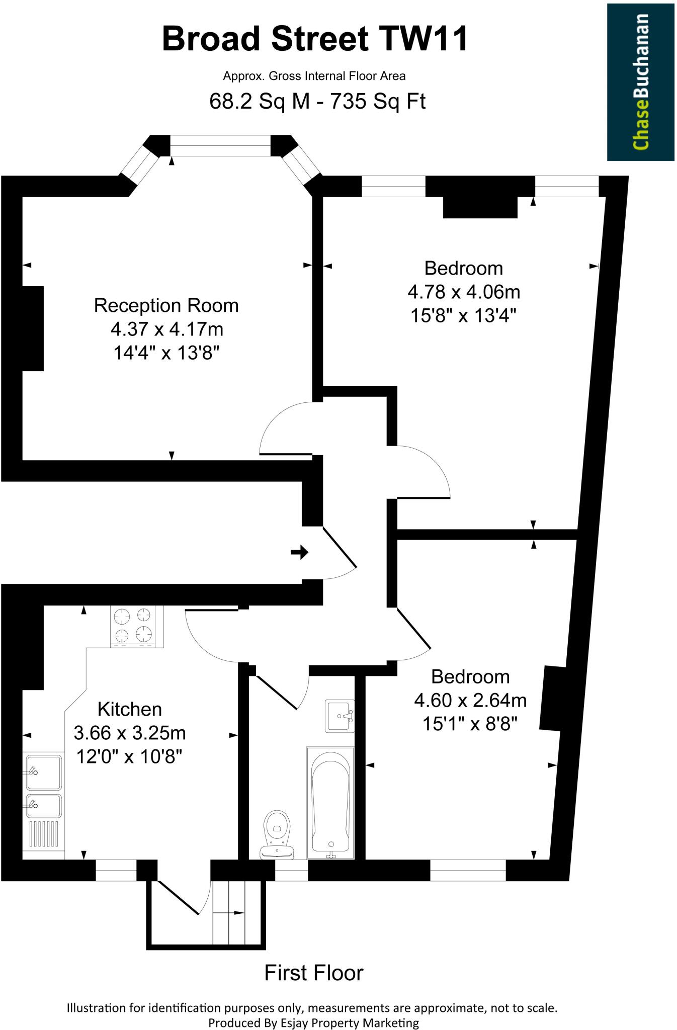
Located in the heart of Teddington, this spacious two-bedroom Victorian apartment has been lovingly refurbished and is brimming with character. High ceilings, elegant feature fireplaces, and period details combine with stylish modern finishes to create a truly special home. The propert...
Property Oracle says ..
This is a two-bedroom apartment located on Broad Street in Teddington. The property is in a good location, close to local amenities, shops, and transportation. The apartment appears to be in generally good condition, with a modern kitchen. The bathroom could benefit from some updating. The asking price of £425,000 seems reasonable for the location and condition of the property.
Therefore, we give this property 6 / 10. *Disclaimer: This is our option and does constitute a recommendation or financial advice. Do your own research. *
- Price
- 7
- Condition
- 7
- Location
- 8
- Land
- 3
- Bedrooms
- 2
- Bathrooms
- 1
The heatmap indicates the level of crime in the area. The color of the heatmap indicates the crime severity and recency.
Metrics Year-on-Year
- Average area value
- 1,180,905.00 £Increased by 53.18 %
- Average area rental value
- 2,648.00 £/moIncreased by 2.60 %
- Est rental Yield
- 2.69 %Decreased by 33.08 %
- Crime Rate
- 43.00 %Unchanged by 0.00 %
Agent Activity
Chase Buchanan incorporating Milestone created the listing.
Nearby Schools
| Name | Type | Ofsted | Distance |
|---|---|---|---|
| Turing House School | Free Schools | Good | 0.39 KM |
| St Mary'S And St Peter'S Church Of England Primary School | Voluntary Aided School | Outstanding | 0.45 KM |
| Newland House School | Other Independent School | 0.89 KM | |
| Stanley Children'S Centre | Children's Centre | 1.22 KM | |
| Stanley Primary School | Community School | Good | 1.30 KM |
Images
Nearby Streets
| Name | Average Price | Average Sqft | Distance |
|---|---|---|---|
| Traherne Lodge | £ 335,000 | 0 | 0.00 KM |
| Meadow Cottages | £ 0 | 0 | 0.00 KM |
| Park Street | £ 0 | 0 | 0.00 KM |
| Linden Grove | £ 0 | 0 | 0.00 KM |
| Cromwell Road | £ 866,633 | 0 | 0.00 KM |
Nearby Transport
| Name | NLC | TLC | Distance |
|---|---|---|---|
| Teddington | 5572 | TED | 0.49 KM |
| Strawberry Hill | 5607 | STW | 1.48 KM |
| Fulwell | 5587 | FLW | 1.65 KM |
| Hampton Court | 5561 | HMC | 2.68 KM |
| Twickenham | 5574 | TWI | 2.78 KM |
Nearby Listings
| Address | Price | Type | Score | Distance |
|---|---|---|---|---|
| Broad Street, Teddington | £ 425,000 | BUY | 6 / 10 | 0.00 KM |
| Broad Street, Teddington, TW11 | £ 275,000 | BUY | 5 / 10 | 0.01 KM |
| Broad Street, Teddington | £ 250,000 | BUY | 5 / 10 | 0.01 KM |
| Broad Street, Teddington | £ 499,950 | BUY | 7 / 10 | 0.02 KM |
| Broad Street, Teddington | £ 235,000 | BUY | 6 / 10 | 0.02 KM |
Nearby Properties
| Address | Price | Distance |
|---|---|---|
| 54a Broad Street | £ 199,950 | 0.01 KM |
| 64a Broad Street | £ 352,000 | 0.01 KM |
| 52b Broad Street | £ 125,000 | 0.02 KM |
| 68a - 68b Broad Street | £ 340,000 | 0.02 KM |
| 54b - 54d Broad Street | £ 210,000 | 0.02 KM |