Verdala says ..
Set within the striking Greystanes House development on North Road, this ground-floor flat offers a well-balanced blend of period character and modern comfort.
Property Oracle says ..
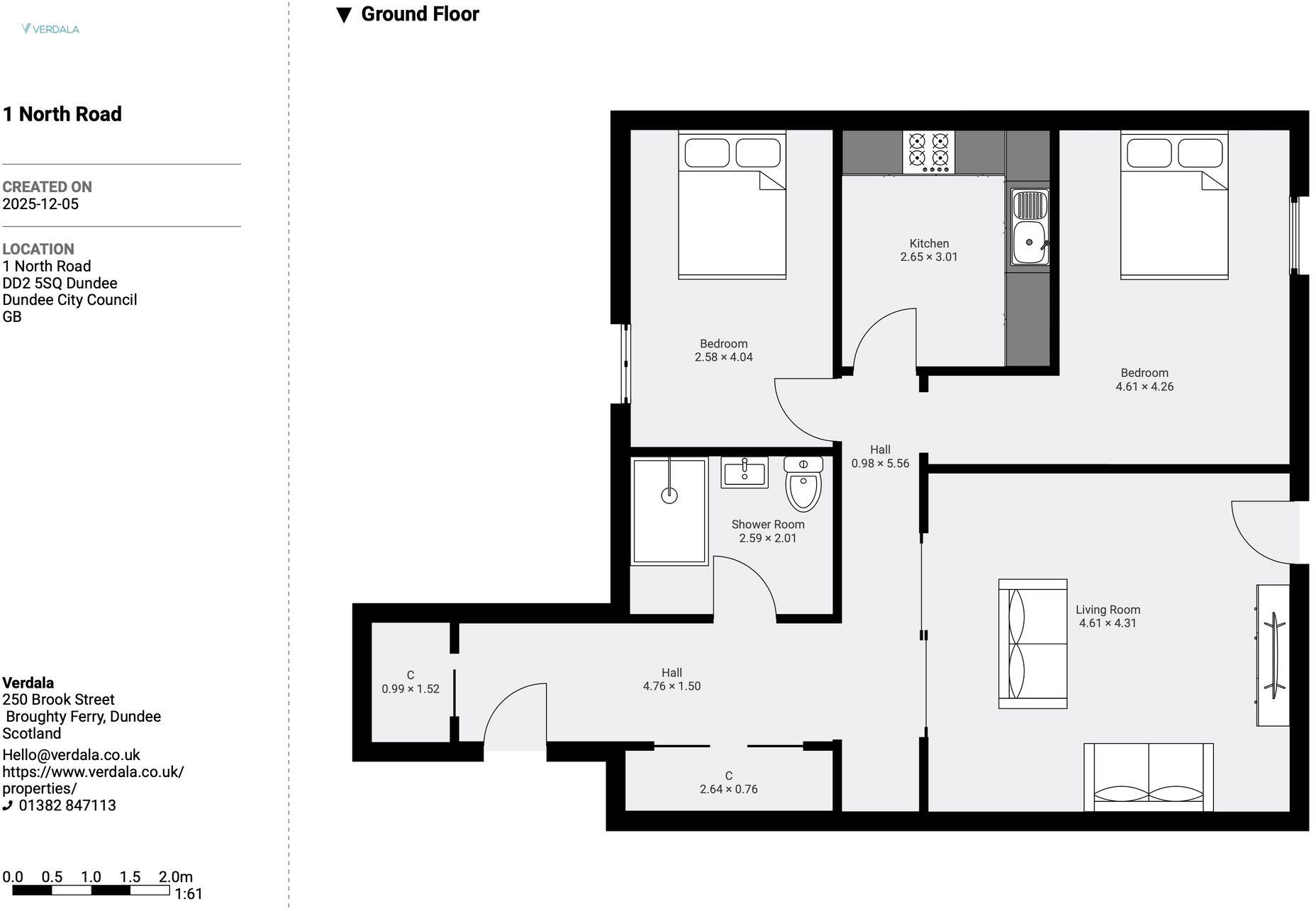
This is a well-presented 2-bedroom flat in Liff, near Dundee. The property appears to be in good condition, with modern interiors and a small patio area. The location offers a mix of rural and urban living, with convenient access to transportation. The price seems reasonable compared to the average price per square foot in the area. Overall, this property would likely appeal to first-time buyers, small families, or those looking for a peaceful retreat within commuting distance of Dundee.
Therefore, we give this property 7 / 10. *Disclaimer: This is our option and does constitute a recommendation or financial advice. Do your own research. *
- Price
- 7
- Condition
- 8
- Location
- 7
- Land
- 6
- Bedrooms
- 2
- Bathrooms
- 1
- Sqft (est)
- 814.83
The heatmap indicates the level of crime in the area. The color of the heatmap indicates the crime severity and recency.
Metrics Year-on-Year
- Average area value
- 299,533.00 £Decreased by 4.46 %
- Est sale value
- 277,857.03 £Increased by 11.07 %
- Average area rental value
- 1,335.00 £/moIncreased by 8.54 %
- Est letting value
- 814.83 £/moUnchanged by 0.00 %
- Est rental Yield
- 5.35 %Increased by 13.59 %
- Crime Rate
- 0.00 %
Agent Activity
Verdala created the listing.
Images
Nearby Streets
| Name | Average Price | Average Sqft | Distance |
|---|---|---|---|
| Middle Road | £ 185,000 | 0 | 0.00 KM |
| Red Squirrel Way | £ 0 | 0 | 0.00 KM |
| Braes of Gray Road | £ 185,000 | 0 | 0.00 KM |
| Grayfaulds Road | £ 185,000 | 0 | 0.00 KM |
| Grayhills Row | £ 0 | 0 | 0.00 KM |
Nearby Transport
| Name | NLC | TLC | Distance |
|---|---|---|---|
| Invergowrie | 8778 | ING | 3.21 KM |
Nearby Listings
| Address | Price | Type | Score | Distance |
|---|---|---|---|---|
| North Road, Liff, DD2 | £ 190,000 | BUY | 7 / 10 | 0.00 KM |
| North Road, Liff, Dundee | £ 164,995 | BUY | 6 / 10 | 0.03 KM |
| Middle Road, Liff | £ 185,000 | BUY | Unknown | 0.20 KM |
| 24 South Drive, Liff, DD2 5SJ | £ 295,000 | BUY | 7 / 10 | 0.36 KM |
| 19 Whitelawston Drive, Liff, Dundee, DD2 5SW | £ 315,000 | BUY | 7 / 10 | 0.37 KM |