Hill Green Road, Stockbury, Sittingbourne, Kent, ME9
By Robinson Michael & Jackson
£ 700,000
Reviews
3 out of 5 stars
Robinson Michael & Jackson says ..
Set within the peaceful and picturesque village of Stockbury, this generously sized four-bedroom detached home offers a wonderful balance of space, practicality, and flexibility – ideal for families or anyone looking to enjoy a semi-rural lifestyle with convenient access to local amenities ...
Property Oracle says ..
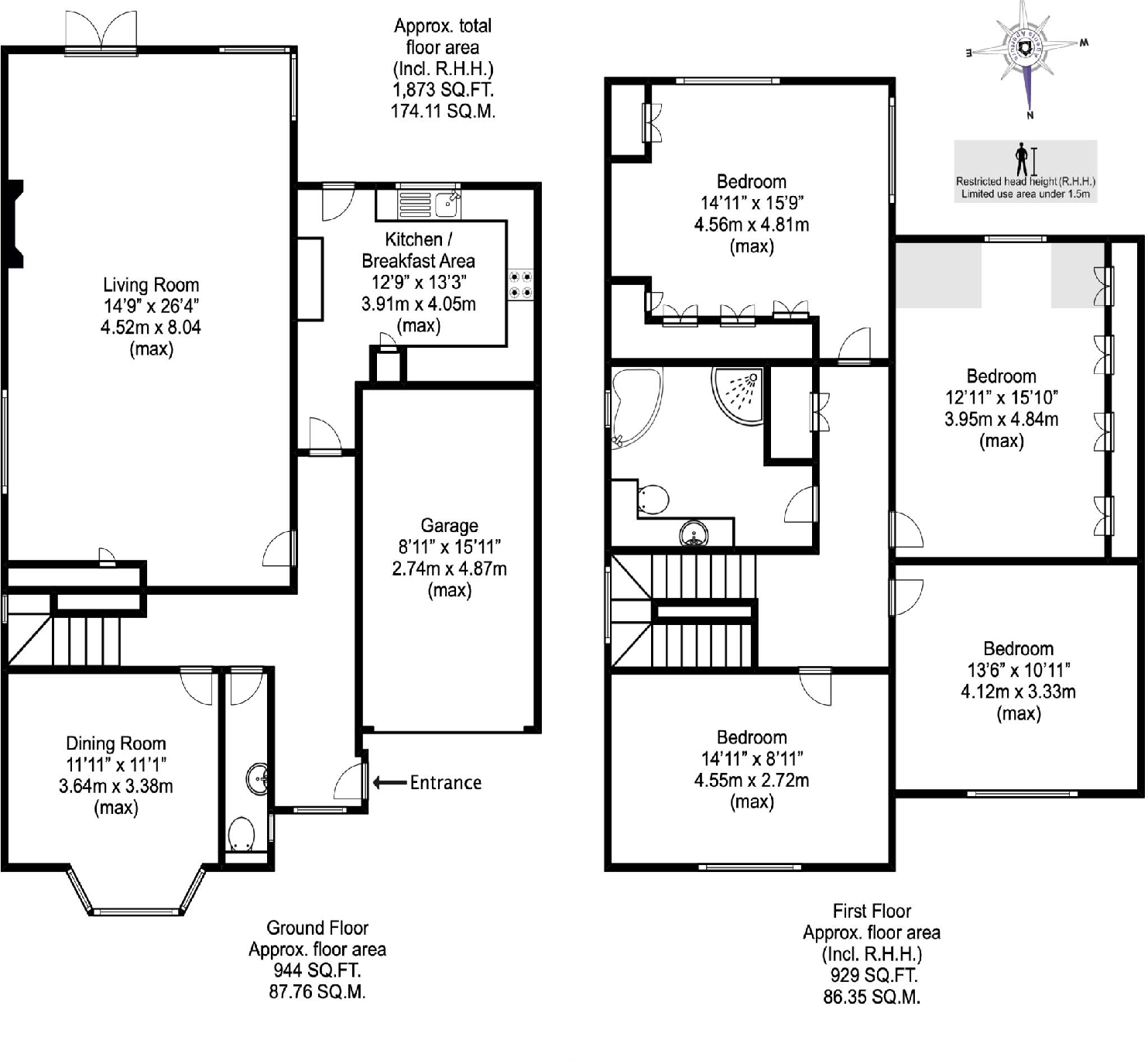
This property is a 4-bedroom, 2-bathroom detached house located in Stockbury, Kent. The house is in good condition and appears to have been recently updated or well-maintained. The kitchen and bathrooms are modern. The property benefits from a sizable garden with a pond and shed. Stockbury is a small village, and while it may lack extensive amenities, it offers a peaceful and quiet residential setting. The proximity to Sittingbourne provides access to more extensive shopping, transportation, and other facilities. The asking price seems reasonable compared to similar properties in the area, although a lack of precise square footage data for comparable properties makes a definitive comparison challenging.
Therefore, we give this property 7 / 10. *Disclaimer: This is our option and does constitute a recommendation or financial advice. Do your own research. *
- Price
- 7
- Condition
- 8
- Location
- 7
- Land
- 7
- Bedrooms
- 4
- Bathrooms
- 2
- Sqft (est)
- 1,873.00
The heatmap indicates the level of crime in the area. The color of the heatmap indicates the crime severity and recency.
Metrics Year-on-Year
- Average area value
- 865,667.00 £Increased by 9.92 %
- Est sale value
- 1,595,796.00 £Increased by 10.36 %
- Average area rental value
- 1,400.00 £/moDecreased by 9.21 %
- Est letting value
- 1,873.00 £/moUnchanged by 0.00 %
- Est rental Yield
- 1.94 %Decreased by 17.45 %
- Crime Rate
- 74.00 %Unchanged by 0.00 %
Agent Activity
Robinson Michael & Jackson created the listing.
Nearby Schools
| Name | Type | Ofsted | Distance |
|---|---|---|---|
| Hartlip Endowed Church Of England Primary School | Voluntary Aided School | Good | 2.44 KM |
| Leigh Academy Rainham | Free Schools | 4.33 KM | |
| Miers Court Primary School | Academy Converter | 4.79 KM | |
| Riverside Primary School | Academy Converter | Good | 4.89 KM |
| Newington Church Of England Primary School | Voluntary Controlled School | Good | 4.89 KM |
Images
Nearby Streets
| Name | Average Price | Average Sqft | Distance |
|---|---|---|---|
| Bull Lane | £ 1,037,750 | 0 | 0.00 KM |
| Plum Tree Lane | £ 0 | 0 | 0.00 KM |
| A249 | £ 315,000 | 0 | 0.00 KM |
Nearby Transport
| Name | NLC | TLC | Distance |
|---|---|---|---|
| Newington | 5175 | NGT | 4.59 KM |
| Rainham (Kent) | 5177 | RAI | 5.38 KM |
| Hollingbourne | 5141 | HBN | 6.83 KM |
| Bearsted | 5091 | BSD | 8.67 KM |
| Harrietsham | 5140 | HRM | 9.78 KM |
Nearby Listings
| Address | Price | Type | Score | Distance |
|---|---|---|---|---|
| Hill Green Road, Stockbury, Sittingbourne, Kent, ME9 | £ 700,000 | BUY | 7 / 10 | 0.00 KM |
| Hill Green Road, Stockbury, Sittingbourne | £ 700,000 | BUY | 6 / 10 | 0.14 KM |
| Northdown, Stockbury, Sittingbourne, Kent, ME9 | £ 350,000 | BUY | Unknown | 0.15 KM |
| The Street, Stockbury, Sittingbourne, Kent | £ 900,000 | BUY | 6 / 10 | 0.24 KM |
| The Street, Stockbury, Sittingbourne, Kent | £ 594,500 | BUY | Unknown | 0.24 KM |
Nearby Properties
| Address | Price | Distance |
|---|---|---|
| Hill Green Lodge | £ 320,000 | 0.02 KM |
| Post House | £ 555,000 | 0.11 KM |
| Glebe House | £ 500,000 | 0.11 KM |
| 2 Northdown | £ 565,000 | 0.15 KM |
| 9 Northdown | £ 152,500 | 0.15 KM |