Move Residential says ..
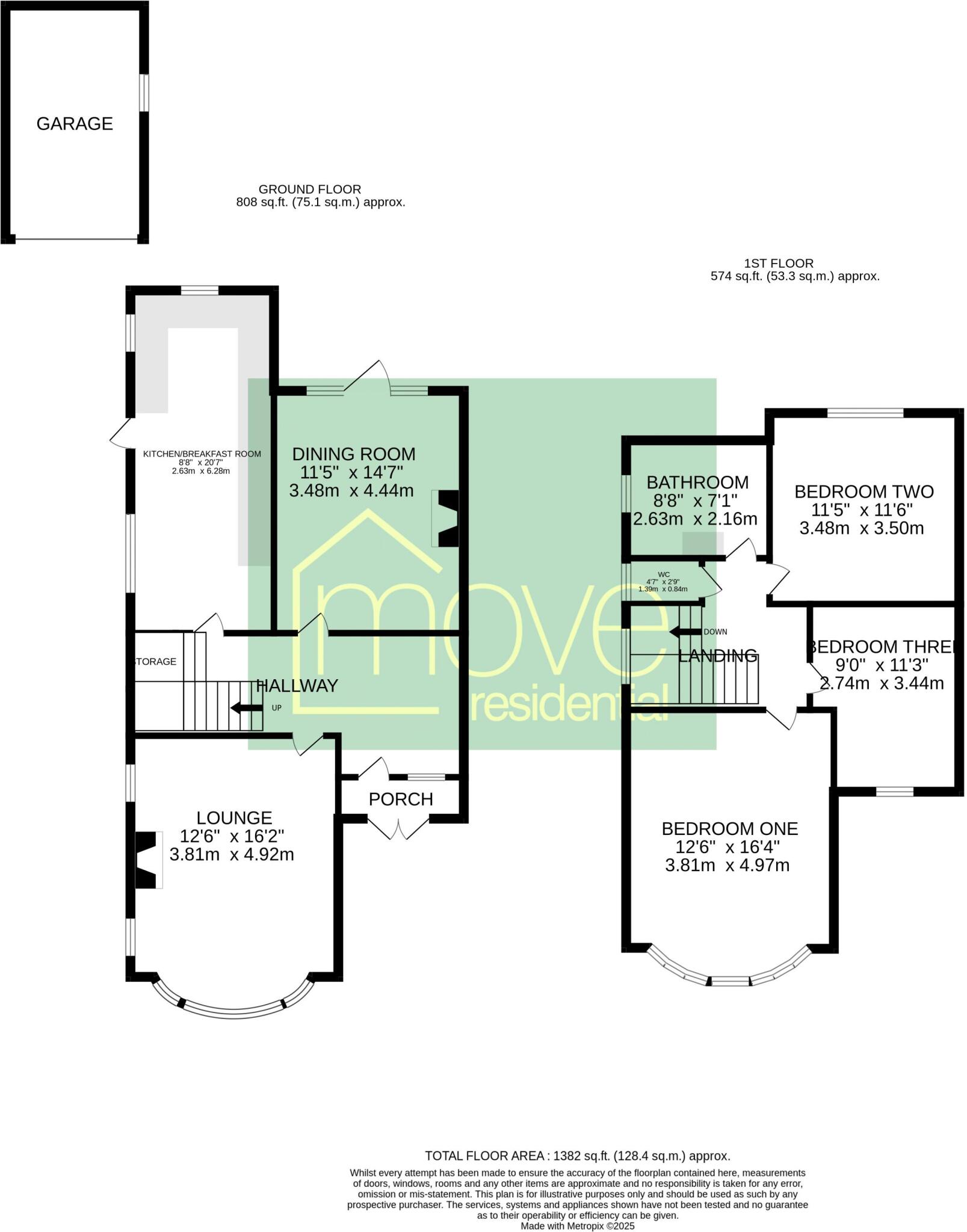
Enviably located in a popular and well-established area of Prenton, is this impressive three-bedroom semi-detached residence, proudly presented to the sales market by appointed agents Move Residential. Boasting an imposing frontage, this property offers generous and beautifully presented living p...
Property Oracle says ..
Therefore, we give this property 7 / 10. *Disclaimer: This is our option and does constitute a recommendation or financial advice. Do your own research. *
- Price
- 6
- Condition
- 8
- Location
- 7
- Land
- 8
- Bedrooms
- 3
- Bathrooms
- 1
- Sqft (est)
- 1,043.67
The heatmap indicates the level of crime in the area. The color of the heatmap indicates the crime severity and recency.
Metrics Year-on-Year
- Average area value
- 287,500.00 £Increased by 19.71 %
- Est sale value
- 222,301.71 £Increased by 16.39 %
- Average area rental value
- 850.00 £/moIncreased by 25.00 %
- Est letting value
- 0.00 £/mo
- Est rental Yield
- 3.55 %Increased by 4.41 %
- Crime Rate
- 3.00 %Unchanged by 0.00 %
from 240,163.00 £
from 190,991.61 £
from 680.00 £/mo
from 0.00 £/mo
from 3.40 %
from 3.00 %
Agent Activity
Move Residential created the listing.
Nearby Schools
| Name | Type | Ofsted | Distance |
|---|---|---|---|
| Townfield Primary School | Academy Converter | Good | 0.74 KM |
| St Michael And All Angels Catholic Primary School | Voluntary Aided School | Good | 1.01 KM |
| Prenton Children'S Centre | Children's Centre Linked Site | 1.19 KM | |
| Foxfield School | Community Special School | Good | 1.20 KM |
| Woodchurch High School | Academy Converter | Good | 1.35 KM |
Images
Nearby Streets
| Name | Average Price | Average Sqft | Distance |
|---|---|---|---|
| Stretton Close | £ 250,000 | 0 | 0.00 KM |
| Redwood Close | £ 0 | 0 | 0.00 KM |
| Hartford Close | £ 0 | 0 | 0.00 KM |
| Hargrave Avenue | £ 155,000 | 0 | 0.00 KM |
| OvertonClose | £ 250,000 | 0 | 0.00 KM |
Nearby Transport
| Name | NLC | TLC | Distance |
|---|---|---|---|
| Upton (Merseyside) | 2141 | UPT | 2.79 KM |
| Birkenhead North | 2145 | BKN | 3.85 KM |
| Birkenhead Park | 2220 | BKP | 4.11 KM |
| Bidston | 2136 | BID | 4.55 KM |
| Heswall | 2138 | HSW | 4.65 KM |
Nearby Listings
| Address | Price | Type | Score | Distance |
|---|---|---|---|---|
| Woodchurch Road, Prenton | £ 325,000 | BUY | 7 / 10 | 0.00 KM |
| Woodchurch Road, Prenton, Wirral, CH43 | £ 255,000 | BUY | Unknown | 0.06 KM |
| Kenmore Road, Prenton | £ 250,000 | BUY | Unknown | 0.12 KM |
| Woodchurch Road, Prenton, Wirral | £ 279,950 | BUY | 6 / 10 | 0.14 KM |
| Palmwood Close, Prenton | £ 250,000 | BUY | 7 / 10 | 0.16 KM |
Nearby Properties
| Address | Price | Distance |
|---|---|---|
| 602 Woodchurch Road | £ 235,000 | 0.02 KM |
| 616 Woodchurch Road | £ 220,000 | 0.02 KM |
| 594 Woodchurch Road | £ 60,000 | 0.02 KM |
| 604 Woodchurch Road | £ 167,000 | 0.02 KM |
| 560 Woodchurch Road | £ 120,000 | 0.02 KM |