Victoria Road, Farnborough, Hampshire, GU14
By Bridges Estate Agents
£ 100,000
Reviews
2 out of 5 stars
Bridges Estate Agents says ..
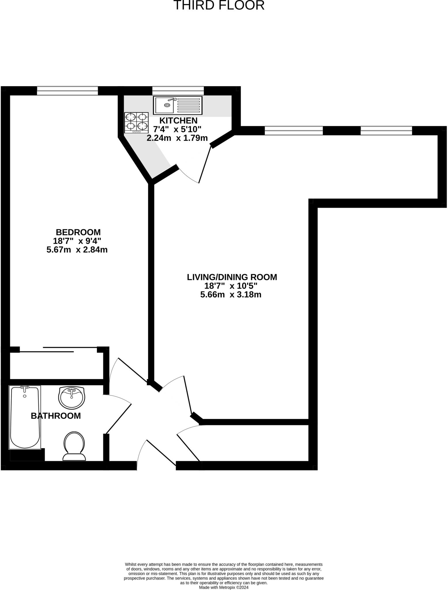
Ideally located for Farnborough town centre and the mainline railway station, is this spacious one bedroom top floor over 60's retirement apartment. The property offers a spacious living/dining room, a double bedroom with a built in wardrobe, a modern fitted kitchen with built in appliances...
Property Oracle says ..
This one-bedroom apartment in Farnborough, Hampshire, is situated on Victoria Road, offering a convenient location near the town centre and mainline railway station. The property is part of a retirement complex, as evidenced by the communal areas and amenities shown in the images. The apartment itself appears clean and well-maintained, with a functional layout including a living/dining area, kitchen, and bedroom with built-in wardrobe. The bathroom includes a walk-in shower/bath combination, suggesting suitability for individuals with mobility concerns. While the overall condition appears good, the décor is somewhat dated, and the furniture present in the images is not included in the sale. The absence of any private outdoor space is a significant consideration. The property is listed at £100,000, which, in the context of similar apartments in the immediate vicinity, seems relatively fair, though further research into price per square foot would refine this opinion. This is a property that may appeal most to older individuals or investors looking for a relatively low-maintenance property in a convenient location.
Therefore, we give this property 5 / 10. *Disclaimer: This is our option and does constitute a recommendation or financial advice. Do your own research. *
- Price
- 7
- Condition
- 6
- Location
- 7
- Land
- 1
- Bedrooms
- 1
- Bathrooms
- 1
- Sqft (est)
- 847.87
The heatmap indicates the level of crime in the area. The color of the heatmap indicates the crime severity and recency.
Metrics Year-on-Year
- Average area value
- 360,272.00 £Increased by 4.93 %
- Est sale value
- 378,997.89 £Increased by 9.29 %
- Average area rental value
- 1,439.00 £/moIncreased by 4.50 %
- Est letting value
- 847.87 £/moUnchanged by 0.00 %
- Est rental Yield
- 4.79 %Decreased by 0.42 %
- Crime Rate
- 6.00 %Unchanged by 0.00 %
Agent Activity
Bridges Estate Agents created the listing.
Nearby Schools
| Name | Type | Ofsted | Distance |
|---|---|---|---|
| St Bernadette'S Catholic Primary School | Voluntary Aided School | Requires improvement | 0.99 KM |
| Owls Children'S Centre | Children's Centre | 1.13 KM | |
| St Peter'S Church Of England Aided Junior School | Voluntary Aided School | Requires improvement | 1.17 KM |
| Cherrywood Community Primary School | Community School | Good | 1.22 KM |
| Farnborough Hill | Other Independent School | 1.25 KM |
Images
Nearby Streets
| Name | Average Price | Average Sqft | Distance |
|---|---|---|---|
| Helen Court | £ 0 | 0 | 0.00 KM |
| Kingsmead | £ 0 | 0 | 0.00 KM |
| Firgrove Road | £ 0 | 0 | 0.00 KM |
| Church Path | £ 0 | 0 | 0.00 KM |
| RAE Road | £ 0 | 0 | 0.00 KM |
Nearby Transport
| Name | NLC | TLC | Distance |
|---|---|---|---|
| Farnborough (Main) | 5521 | FNB | 0.53 KM |
| Farnborough North | 5688 | FNN | 2.04 KM |
| Frimley | 5683 | FML | 2.46 KM |
| North Camp | 5636 | NCM | 3.68 KM |
| Blackwater | 5625 | BAW | 4.67 KM |
Nearby Listings
| Address | Price | Type | Score | Distance |
|---|---|---|---|---|
| Victoria Road, Farnborough, Hampshire, GU14 | £ 100,000 | BUY | 5 / 10 | 0.00 KM |
| Victoria Road, Farnborough, Hampshire, GU14 | £ 110,000 | BUY | 7 / 10 | 0.00 KM |
| Victoria Road, Farnborough, Hampshire, GU14 | £ 95,000 | BUY | 5 / 10 | 0.00 KM |
| Victoria Road, Farnborough, Hampshire, GU14 | £ 100,000 | BUY | 6 / 10 | 0.02 KM |
| Windsor Close, Farnborough, Hampshire, GU14 | £ 230,000 | BUY | 5 / 10 | 0.13 KM |
Nearby Properties
| Address | Price | Distance |
|---|---|---|
| 11 Elm Grove Road | £ 350,000 | 0.12 KM |
| 24 Elm Grove Road | £ 365,000 | 0.12 KM |
| 7 Elmgrove Road | £ 180,000 | 0.12 KM |
| 5a Elm Grove Road | £ 420,000 | 0.12 KM |
| 13 Elmgrove Road | £ 327,000 | 0.12 KM |