Brooks Road, Sutton Coldfield, B72 1HR
By Chosen Home
£ 650,000
Reviews
3 out of 5 stars
Chosen Home says ..
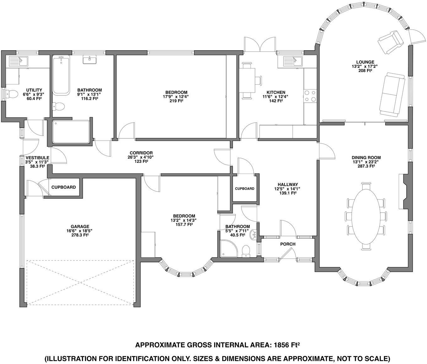
59 Brooks Road, Walmley – A Rare and Unique Opportunity.... Welcome to 59 Brooks Road, a beautifully bespoke two-bedroom bungalow, thoughtfully designed and built by the current owners. This exceptional home occupies a generous plot with expansive gardens to both the front and...
Property Oracle says ..
Therefore, we give this property 7 / 10. *Disclaimer: This is our option and does constitute a recommendation or financial advice. Do your own research. *
- Price
- 7
- Condition
- 6
- Location
- 8
- Land
- 8
- Bedrooms
- 2
- Bathrooms
- 2
- Sqft (est)
- 1,809.80
The heatmap indicates the level of crime in the area. The color of the heatmap indicates the crime severity and recency.
Metrics Year-on-Year
- Average area value
- 497,268.00 £Increased by 4.06 %
- Est sale value
- 912,139.20 £Increased by 51.81 %
- Average area rental value
- 2,350.00 £/moIncreased by 60.19 %
- Est letting value
- 3,619.60 £/moIncreased by 100.00 %
- Est rental Yield
- 5.67 %Increased by 54.08 %
- Crime Rate
- 0.00 %
from 477,886.00 £
from 600,853.60 £
from 1,467.00 £/mo
from 1,809.80 £/mo
from 3.68 %
from 0.00 %
Agent Activity
Chosen Home created the listing.
Nearby Schools
| Name | Type | Ofsted | Distance |
|---|---|---|---|
| Penns Primary School | Community School | Good | 1.11 KM |
| Wylde Green Primary School | Community School | Good | 1.13 KM |
| Maney Hill Primary School | Community School | Good | 1.13 KM |
| Bishop Walsh Catholic School | Academy Converter | Good | 1.24 KM |
| Yenton Primary School | Academy Converter | 1.29 KM |
Images
Nearby Streets
| Name | Average Price | Average Sqft | Distance |
|---|---|---|---|
| Fourlands Avenue | £ 449,975 | 0 | 0.00 KM |
| Emmanuel Road | £ 517,500 | 0 | 0.00 KM |
| Hurley Close | £ 675,000 | 0 | 0.00 KM |
| The Green | £ 749,950 | 0 | 0.00 KM |
| Windsor Drive | £ 280,000 | 0 | 0.00 KM |
Nearby Transport
| Name | NLC | TLC | Distance |
|---|---|---|---|
| Wylde Green | 1138 | WYL | 1.22 KM |
| Chester Road | 1130 | CRD | 1.43 KM |
| Erdington | 1041 | ERD | 2.53 KM |
| Sutton Coldfield | 1044 | SUT | 2.61 KM |
| Four Oaks | 1042 | FOK | 4.30 KM |
Nearby Listings
| Address | Price | Type | Score | Distance |
|---|---|---|---|---|
| Brooks Road, Sutton Coldfield, B72 1HR | £ 650,000 | BUY | 7 / 10 | 0.00 KM |
| Brooks Road, Wylde Green | £ 240,000 | BUY | 5 / 10 | 0.12 KM |
| Hilton Drive,Sutton Coldfield,B72 1EQ | £ 450,000 | BUY | 6 / 10 | 0.12 KM |
| Brooks Road, Sutton Coldfield, B72 1HS | £ 255,000 | BUY | 7 / 10 | 0.18 KM |
| Hillcrest Road, Sutton Coldfield, West Midlands, B72 | £ 450,000 | BUY | 7 / 10 | 0.22 KM |
Nearby Properties
| Address | Price | Distance |
|---|---|---|
| 76 Brooks Road | £ 380,000 | 0.01 KM |
| 54 Brooks Road | £ 410,000 | 0.01 KM |
| 61 Brooks Road | £ 395,000 | 0.01 KM |
| 58 Brooks Road | £ 487,500 | 0.01 KM |
| 43 Brooks Road | £ 499,950 | 0.01 KM |