Summer Court, Burley In Wharfedale, LS29 7NA
By McCarthy Stone
£ 274,950
Reviews
3 out of 5 stars
McCarthy Stone says ..
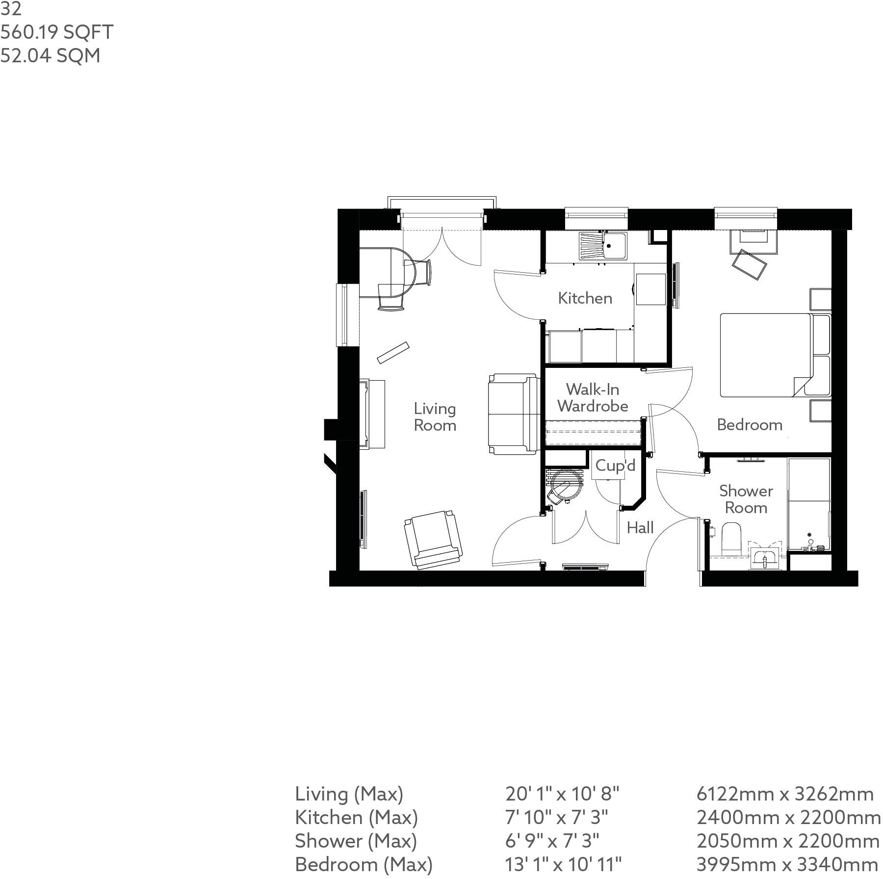
Easy living meets elegant design. Apartment 32 is a beautiful apartment with stunning contemporary kitchen and bathroom plus access to large, landscaped gardens.
Property Oracle says ..
This is a modern retirement property in Burley In Wharfedale, West Yorkshire. The property is well-located, close to transportation and schools, and appears to be in excellent condition. It includes access to communal gardens. The price is slightly above the average price per square foot for the area, but this is expected for a retirement property.
Therefore, we give this property 7 / 10. *Disclaimer: This is our option and does constitute a recommendation or financial advice. Do your own research. *
- Price
- 7
- Condition
- 9
- Location
- 7
- Land
- 6
- Bedrooms
- 1
- Bathrooms
- 0
- Sqft (est)
- 463.26
The heatmap indicates the level of crime in the area. The color of the heatmap indicates the crime severity and recency.
Metrics Year-on-Year
- Average area value
- 474,196.00 £Decreased by 8.85 %
- Est sale value
- 167,700.12 £Decreased by 11.71 %
- Average area rental value
- 1,571.00 £/moIncreased by 10.17 %
- Est letting value
- 463.26 £/moUnchanged by 0.00 %
- Est rental Yield
- 3.98 %Increased by 20.97 %
- Crime Rate
- 11.00 %Unchanged by 0.00 %
Agent Activity
McCarthy Stone created the listing.
Nearby Schools
| Name | Type | Ofsted | Distance |
|---|---|---|---|
| Burley Oaks Primary School | Community School | Outstanding | 0.44 KM |
| Burley And Woodhead Cofe Primary School | Voluntary Controlled School | Good | 0.63 KM |
| Ghyll Royd School And Pre-School | Other Independent School | 1.12 KM | |
| Askwith Community Primary School | Academy Converter | 2.60 KM | |
| Menston Primary School | Community School | Good | 2.62 KM |
Images
Nearby Streets
| Name | Average Price | Average Sqft | Distance |
|---|---|---|---|
| Larch Croft | £ 0 | 0 | 0.00 KM |
| Elm Grove | £ 349,950 | 0 | 0.00 KM |
| Rose Bank | £ 545,000 | 0 | 0.00 KM |
| Victoria Road | £ 515,000 | 0 | 0.00 KM |
| Foster Close | £ 399,950 | 0 | 0.00 KM |
Nearby Transport
| Name | NLC | TLC | Distance |
|---|---|---|---|
| Burley-In-Wharfedale | 8565 | BUW | 0.24 KM |
| Menston | 8574 | MNN | 2.77 KM |
| Ben Rhydding | 8564 | BEY | 5.22 KM |
| Guiseley | 8567 | GSY | 5.66 KM |
| Baildon | 8552 | BLD | 6.68 KM |
Nearby Listings
| Address | Price | Type | Score | Distance |
|---|---|---|---|---|
| Summer Court, Burley In Wharfedale, LS29 7NA | £ 269,950 | BUY | 7 / 10 | 0.00 KM |
| Summer Court, Burley In Wharfedale, LS29 7NA | £ 213,750 | BUY | 6 / 10 | 0.00 KM |
| Summer Court, Burley In Wharfedale, LS29 7NA | £ 259,950 | BUY | 7 / 10 | 0.00 KM |
| Summer Court, Burley In Wharfedale, LS29 7NA | £ 274,950 | BUY | 7 / 10 | 0.00 KM |
| Summer Court, Burley In Wharfedale, LS29 7NA | £ 354,950 | BUY | 7 / 10 | 0.00 KM |
Nearby Properties
| Address | Price | Distance |
|---|---|---|
| 100 Station Road | £ 265,000 | 0.09 KM |
| 92 Station Road | £ 584,000 | 0.09 KM |
| 102 Station Road | £ 820,000 | 0.09 KM |
| 90 Station Road | £ 785,000 | 0.09 KM |
| 7 Hanover Way | £ 305,000 | 0.14 KM |