Ash Lodge Drive, Ash, Surrey, GU12
By Bridges Estate Agents
£ 500,000
Reviews
3 out of 5 stars
Bridges Estate Agents says ..
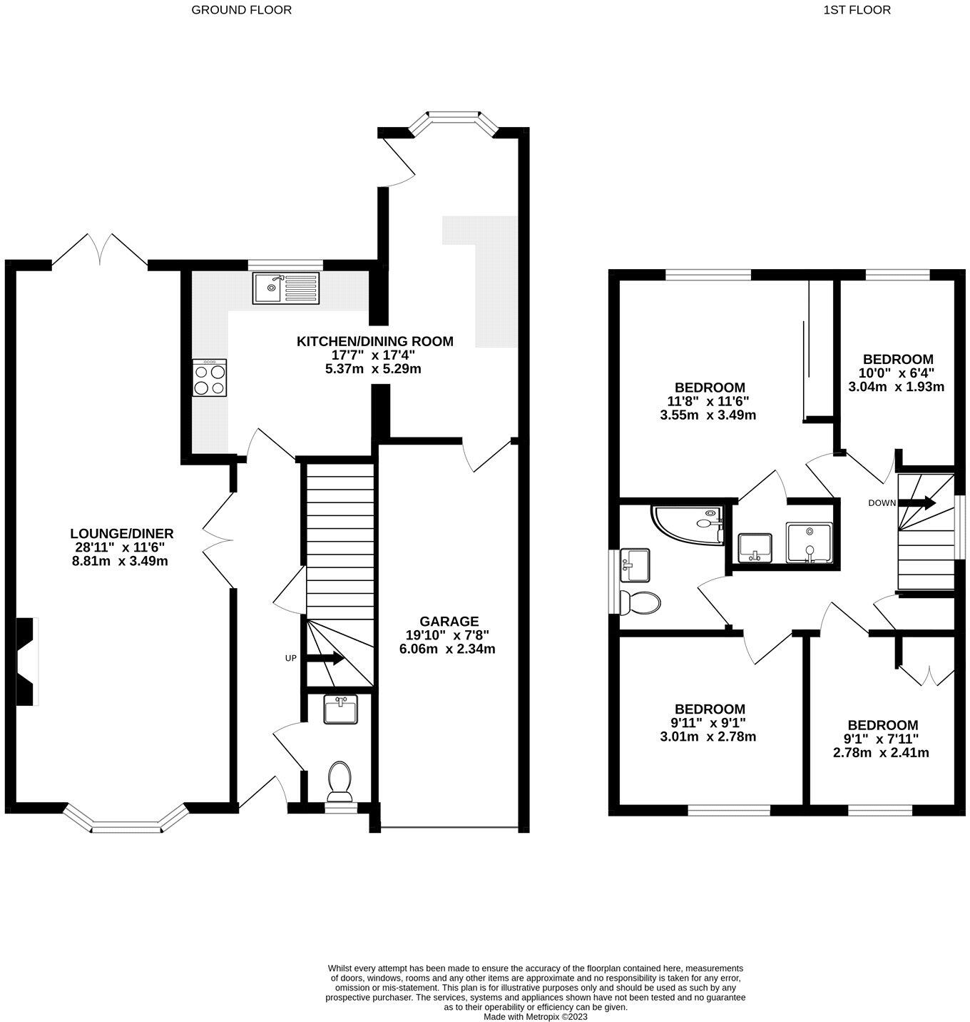
**NO CHAIN** Located within one of the area’s most popular developments is this spacious four bedroom detached family home. The property is ideally located and within a short walk of the local schools, amenities and rail station. The property downstairs boasts a generous size living room, a...
Property Oracle says ..
This is a detached property in Ash, Surrey, with four bedrooms and two bathrooms. The property is 1,129.78 sqft. It has a good-sized garden and a garage. The property is in need of some modernisation, particularly in the kitchen and bathrooms. The property is located close to local amenities and schools, including Walsh Memorial Cofe Controlled Infant School (Outstanding) and Ash Manor School (Good). Ash train station is 1.52 KM away. The asking price of £500,000 seems reasonable given the location, size, and condition of the property.
Therefore, we give this property 6 / 10. *Disclaimer: This is our option and does constitute a recommendation or financial advice. Do your own research. *
- Price
- 7
- Condition
- 5
- Location
- 7
- Land
- 7
- Bedrooms
- 4
- Bathrooms
- 2
- Sqft (est)
- 1,129.78
The heatmap indicates the level of crime in the area. The color of the heatmap indicates the crime severity and recency.
Metrics Year-on-Year
- Average area value
- 415,000.00 £Decreased by 13.65 %
- Est sale value
- 641,715.04 £Increased by 69.05 %
- Average area rental value
- 1,095.00 £/moDecreased by 45.71 %
- Est letting value
- 1,129.78 £/moUnchanged by 0.00 %
- Est rental Yield
- 3.17 %Decreased by 37.10 %
- Crime Rate
- 16.00 %Unchanged by 0.00 %
Agent Activity
Bridges Estate Agents created the listing.
Nearby Schools
| Name | Type | Ofsted | Distance |
|---|---|---|---|
| Walsh Cofe Junior School | Voluntary Controlled School | Requires improvement | 0.30 KM |
| Walsh Memorial Cofe Controlled Infant School | Voluntary Controlled School | Outstanding | 0.30 KM |
| Ash Manor School | Community School | Good | 0.48 KM |
| St Paul'S Cofe Infant School | Voluntary Controlled School | Good | 0.86 KM |
| St Paul'S C/E Infant School & Sure Start Children'S Centre | Children's Centre | 0.91 KM |
Images
Nearby Streets
| Name | Average Price | Average Sqft | Distance |
|---|---|---|---|
| The Woodridges | £ 0 | 0 | 0.00 KM |
| Holme Close | £ 0 | 0 | 0.00 KM |
| Headley Way | £ 0 | 0 | 0.00 KM |
| Hammersley Drive | £ 0 | 0 | 0.00 KM |
| Blackwater Close | £ 0 | 0 | 0.00 KM |
Nearby Transport
| Name | NLC | TLC | Distance |
|---|---|---|---|
| Ash | 5641 | ASH | 1.52 KM |
| Ash Vale | 5547 | AHV | 3.29 KM |
| North Camp | 5636 | NCM | 3.74 KM |
| Aldershot | 5623 | AHT | 3.90 KM |
| Wanborough | 5639 | WAN | 6.32 KM |
Nearby Listings
| Address | Price | Type | Score | Distance |
|---|---|---|---|---|
| Ash Lodge Drive, Ash, Surrey, GU12 | £ 500,000 | BUY | 6 / 10 | 0.00 KM |
| Ash Lodge Drive, Ash, Surrey, GU12 | £ 525,000 | BUY | 6 / 10 | 0.00 KM |
| Elizabeth Bree Close, Ash, GU12 | £ 400,000 | BUY | 7 / 10 | 0.06 KM |
| Elizabeth Bree Close, Ash, Surrey, GU12 | £ 390,000 | BUY | 7 / 10 | 0.06 KM |
| Elizabeth Bree Close, Ash, Surrey, GU12 | £ 400,000 | BUY | 6 / 10 | 0.06 KM |
Nearby Properties
| Address | Price | Distance |
|---|---|---|
| 86 Ash Lodge Drive | £ 300,000 | 0.04 KM |
| 101 Ash Lodge Drive | £ 350,000 | 0.04 KM |
| 88 Ash Lodge Drive | £ 302,500 | 0.04 KM |
| 62 Ash Lodge Drive | £ 390,000 | 0.04 KM |
| 104 Ash Lodge Drive | £ 430,000 | 0.04 KM |