Main Street, Upton, Newark, Nottinghamshire, NG23
By Savills
£ 2,300,000
Reviews
3 out of 5 stars
Savills says ..
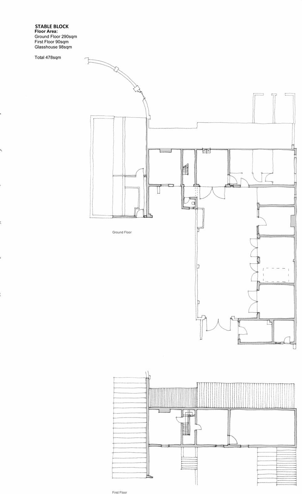
Upton Hall is the substantial Grade II* listed country house headquarters of the British Horological Society
Property Oracle says ..
Upton Hall, a Grade II* listed property situated in the village of Upton, Nottinghamshire, presents a compelling blend of historical charm and significant potential. Listed with Savills, the property’s exterior showcases impressive architectural detail, with extensive grounds clearly visible in provided aerial images. The images reveal an older property, requiring modernisations. While the internal images show large rooms, there is scope for refurbishment in areas that are currently presented in a dated style. The significant lack of quantitative property data such as plot size makes a precise evaluation challenging. Furthermore, comparable property data in the area is limited, thus hindering a detailed comparison with similar properties to definitively assess the list price. The surrounding area offers a mix of rural tranquility and reasonable access to amenities and transport links in nearby Newark, with schools like The Minster School within reach. Ultimately, Upton Hall presents a unique opportunity for prospective buyers seeking a substantial property with historic character but should be prepared for potential renovation costs.
Therefore, we give this property 7 / 10. *Disclaimer: This is our option and does constitute a recommendation or financial advice. Do your own research. *
- Price
- 7
- Condition
- 6
- Location
- 7
- Land
- 8
- Bedrooms
- 0
- Bathrooms
- 0
- Sqft (est)
- 1,140.97
The heatmap indicates the level of crime in the area. The color of the heatmap indicates the crime severity and recency.
Metrics Year-on-Year
- Average area value
- 213,123.00 £Decreased by 12.55 %
- Est sale value
- 328,599.36 £Increased by 14.74 %
- Average area rental value
- 1,000.00 £/moIncreased by 20.19 %
- Est letting value
- 1,140.97 £/mo
- Est rental Yield
- 5.63 %Increased by 37.32 %
- Crime Rate
- 85.00 %Unchanged by 0.00 %
Agent Activity
Savills created the listing.
Nearby Schools
| Name | Type | Ofsted | Distance |
|---|---|---|---|
| The Minster School | Academy Converter | 5.57 KM | |
| Lowe'S Wong Infant School | Academy Converter | 5.64 KM | |
| Lowe'S Wong Anglican Methodist Junior School | Voluntary Controlled School | Good | 5.64 KM |
| Holy Trinity Cofe Infant School | Academy Converter | 5.91 KM | |
| Bleasby Church Of England Primary School | Academy Converter | 5.91 KM |
Images
Nearby Transport
| Name | NLC | TLC | Distance |
|---|---|---|---|
| Rolleston | 6353 | ROL | 1.91 KM |
| Fiskerton | 6351 | FSK | 2.28 KM |
| Bleasby | 6204 | BSB | 5.86 KM |
| Thurgarton | 6203 | THU | 8.29 KM |
Nearby Listings
| Address | Price | Type | Score | Distance |
|---|---|---|---|---|
| Main Street, Upton, Newark, Nottinghamshire, NG23 | £ 2,300,000 | BUY | 7 / 10 | 0.00 KM |
| Main Street, Upton | £ 350,000 | BUY | 7 / 10 | 0.01 KM |
| Main Street, Upton, Newark, Nottinghamshire, NG23 | £ 725,000 | BUY | 6 / 10 | 0.05 KM |
| The Barn, 63 Main Street, Upton, Newark NG23 5SY | £ 410,000 | BUY | 6 / 10 | 0.08 KM |
| Main Street, Upton, Newark, Nottinghamshire, NG23 | £ 760,000 | BUY | 7 / 10 | 0.10 KM |
Nearby Properties
| Address | Price | Distance |
|---|---|---|
| 54 Main Street | £ 320,000 | 0.02 KM |
| 72 Main Street | £ 247,500 | 0.04 KM |
| Broadlands | £ 222,000 | 0.57 KM |
| 14 Hockerton Road | £ 240,000 | 0.57 KM |
| 3 Church Walk | £ 625,000 | 0.59 KM |