CO
Baldock Road, Letchworth Garden City, SG6
By Country Properties
£ 700,000
Reviews
3 out of 5 stars
Country Properties says ..
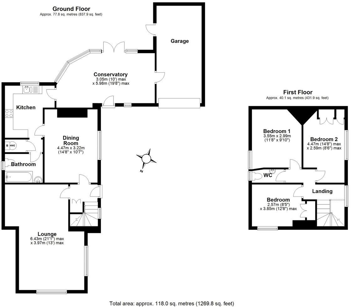
Charming 1907 Garden City Detached Home – A Rare OpportunityStep into a piece of Letchworth Garden City’s rich heritage with this beautifully presented three-bedroom detached family home, dating back to 1907. Offered with vacant possession and no upper chain, this characterf...
Property Oracle says ..
Therefore, we give this property 7 / 10. *Disclaimer: This is our option and does constitute a recommendation or financial advice. Do your own research. *
- Price
- 8
- Condition
- 7
- Location
- 8
- Land
- 7
- Bedrooms
- 3
- Bathrooms
- 1
- Sqft (est)
- 1,270.14
The heatmap indicates the level of crime in the area. The color of the heatmap indicates the crime severity and recency.
Metrics Year-on-Year
- Average area value
- 828,571.00 £Increased by 66.43 %
- Est sale value
- 1,074,538.44 £Increased by 86.34 %
- Average area rental value
- 1,617.00 £/moIncreased by 8.96 %
- Est letting value
- 1,270.14 £/moUnchanged by 0.00 %
- Est rental Yield
- 2.34 %Decreased by 34.64 %
- Crime Rate
- 1.00 %Unchanged by 0.00 %
from 497,850.00 £
from 576,643.56 £
from 1,484.00 £/mo
from 1,270.14 £/mo
from 3.58 %
from 1.00 %
Agent Activity
Country Properties created the listing.
Nearby Schools
| Name | Type | Ofsted | Distance |
|---|---|---|---|
| Pixmore Junior School | Community School | Good | 0.21 KM |
| Hillshott Infant School And Nursery | Community School | Good | 0.72 KM |
| St Christopher School | Other Independent School | 0.77 KM | |
| Lordship Farm Primary School | Community School | Good | 0.93 KM |
| St Francis College | Other Independent School | 1.25 KM |
Images
Nearby Streets
| Name | Average Price | Average Sqft | Distance |
|---|---|---|---|
| A505 | £ 795,000 | 0 | 0.00 KM |
| Protea Way | £ 0 | 0 | 0.00 KM |
| Muddy Lane | £ 0 | 0 | 0.00 KM |
| Nursery Court | £ 475,000 | 0 | 0.00 KM |
| Willian Road | £ 0 | 0 | 0.00 KM |
Nearby Transport
| Name | NLC | TLC | Distance |
|---|---|---|---|
| Letchworth Garden City | 6089 | LET | 1.21 KM |
| Baldock | 6084 | BDK | 4.35 KM |
| Hitchin | 6086 | HIT | 5.14 KM |
| Arlesey | 6171 | ARL | 7.76 KM |
| Stevenage | 6092 | SVG | 8.04 KM |
Nearby Listings
| Address | Price | Type | Score | Distance |
|---|---|---|---|---|
| Baldock Road, Letchworth Garden City, SG6 | £ 700,000 | BUY | 7 / 10 | 0.00 KM |
| Baldock Road, Letchworth Garden City, SG6 | £ 650,000 | BUY | 7 / 10 | 0.00 KM |
| Baldock Road, Letchworth Garden City, SG6 | £ 750,000 | BUY | 7 / 10 | 0.03 KM |
| Baldock Road, Letchworth Garden City | £ 675,000 | BUY | 7 / 10 | 0.10 KM |
| Lawrence Avenue, Letchworth Garden City, SG6 | £ 745,000 | BUY | 6 / 10 | 0.16 KM |
Nearby Properties
| Address | Price | Distance |
|---|---|---|
| 36 Baldock Road | £ 442,500 | 0.01 KM |
| 107 Baldock Road | £ 480,000 | 0.01 KM |
| 60 Baldock Road | £ 725,000 | 0.01 KM |
| 89 Baldock Road | £ 512,500 | 0.01 KM |
| 81a Baldock Road | £ 775,000 | 0.01 KM |