Derriford, Plymouth
JU

Derriford, Plymouth

By Julian Marks

£ 1,250,000

Reviews

3 out of 5 stars

Julian Marks says ..

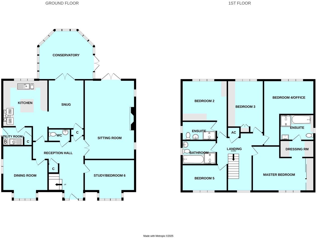
An impressive & spacious modern built detached residence circa 2002. Generously proportioned & adaptable accommodation built to a high specification & finish. The accommodation comprises a spacious reception hall, 3 reception rooms, a study/bedroom 6, large conservatory, quality fitted integrated...

Property Oracle says ..

Therefore, we give this property 6 / 10. *Disclaimer: This is our option and does constitute a recommendation or financial advice. Do your own research. *

Price
3
Condition
8
Location
7
Land
8
Bedrooms
6
Bathrooms
2
Sqft (est)
1,903.00

The heatmap indicates the level of crime in the area. The color of the heatmap indicates the crime severity and recency.

Metrics Year-on-Year

Average area value
231,250.00 £
Decreased by 12.40 %
from 263,993.00 £
Est sale value
538,549.00 £
Decreased by 10.44 %
from 601,348.00 £
Average area rental value
1,650.00 £/mo
Increased by 107.29 %
from 796.00 £/mo
Est letting value
3,806.00 £/mo
from 0.00 £/mo
Est rental Yield
8.56 %
Increased by 136.46 %
from 3.62 %
Crime Rate
10.00 %
Unchanged by 0.00 %
from 10.00 %

Agent Activity

  • Julian Marks created the listing.

Nearby Schools

NameTypeOfstedDistance
Notre Dame Rc SchoolAcademy ConverterGood0.50 KM
Oakwood Primary AcademyAcademy ConverterGood1.22 KM
St Matthew'S Church Of England Primary And Nursery AcademyAcademy Sponsor LedRequires improvement1.37 KM
Beechwood Primary AcademyAcademy ConverterGood1.40 KM
Southernway Children'S CentreChildren's Centre1.45 KM

Images

IMG_7463.jpg IMG_7378.jpg IMG_7341.jpg IMG_7353 2.jpg IMG_7376.jpg IMG_7374.jpg IMG_7355.jpg IMG_7359.jpg IMG_7364.jpg IMG_7371.jpg IMG_7382.jpg IMG_7390.jpg IMG_7404.JPG IMG_7401.jpg IMG_7411.jpg IMG_7407.jpg IMG_7415.jpg IMG_7418.jpg IMG_7421.jpg IMG_7427.jpg IMG_7424.jpg IMG_7475.jpg IMG_7482.jpg IMG_7431.jpg IMG_7432.jpg IMG_7423.jpg IMG_7395.jpg IMG_7440.jpg IMG_7445.jpg IMG_7448.jpg IMG_7457.jpg IMG_7462.jpg IMG_7453.jpg 2.jpeg 1.jpeg Boundaries.jpg

Nearby Streets

NameAverage PriceAverage SqftDistance
Notre Dame Close £ 000.00 KM
Charlton Road £ 000.00 KM
Richmond Road £ 325,00000.00 KM
Hazel Close £ 000.00 KM
Grosvenor Road £ 310,00000.00 KM

Nearby Transport

NameNLCTLCDistance
Plymouth3580PLY5.04 KM
Devonport3579DPT6.85 KM
Keyham3571KEY6.96 KM
Dockyard (Devonport)3588DOC7.06 KM
St Budeaux Ferry Road3590SBF7.24 KM

Nearby Listings

AddressPriceTypeScoreDistance
Derriford, Plymouth £ 1,250,000BUY6 / 100.00 KM
Derriford, Plymouth, Devon, PL6 £ 435,000BUY6 / 100.21 KM
Hawkins Close, Derriford, Plymouth £ 435,000BUY6 / 100.25 KM
Hawkins Close, Derriford, Plymouth £ 485,000BUYUnknown0.25 KM
Leatfield Drive, Derriford £ 950,000BUYUnknown0.32 KM

Nearby Properties

AddressPriceDistance
5 Glade Close £ 596,0000.06 KM
4 Glade Close £ 570,0000.06 KM
8 Glade Close £ 575,0000.06 KM
11 Looseleigh Close £ 185,0000.07 KM
2 Looseleigh Close £ 390,0000.07 KM