Coventry Road, Fillongley, CV7
By Bayzos Estate Agents
£ 400,000
Reviews
3 out of 5 stars
Bayzos Estate Agents says ..
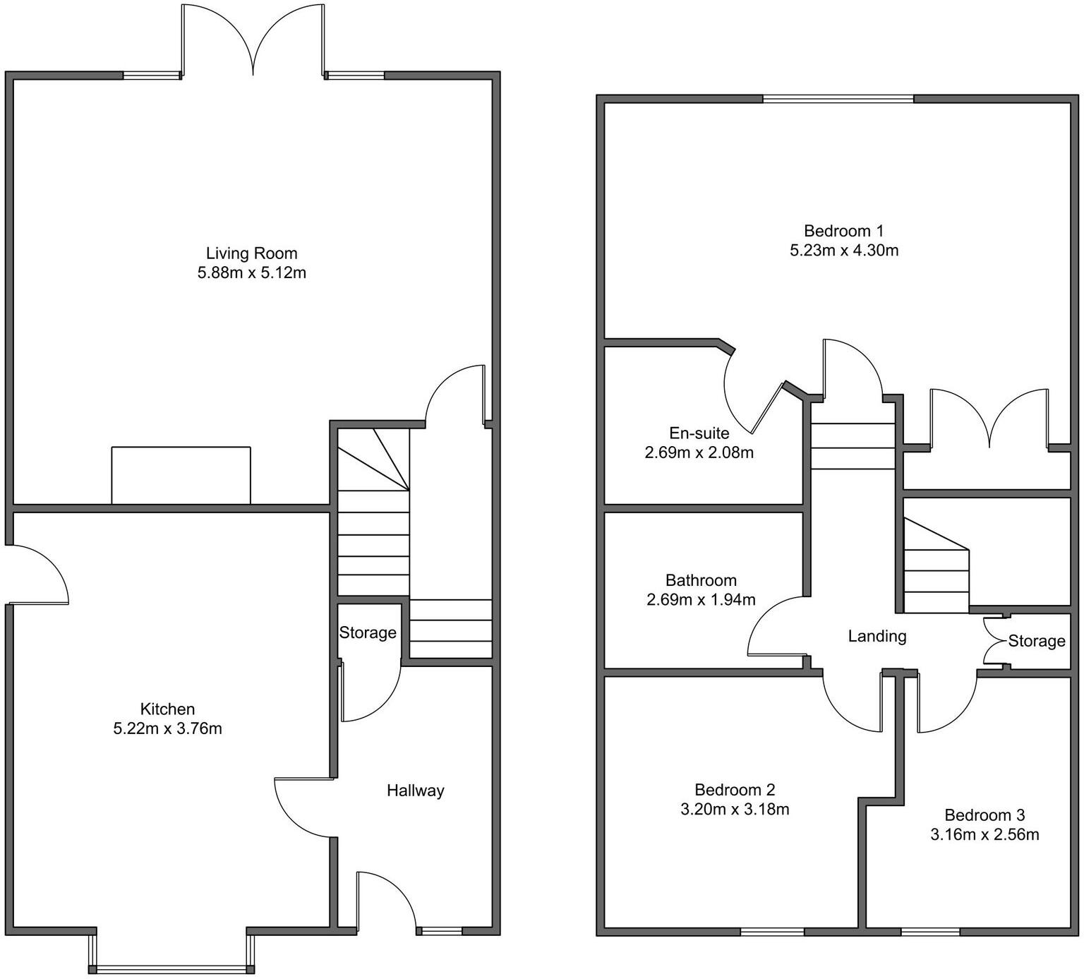
Sought After Village Location of Fillongley | Large Living Room With Feature Coal Fire | Approx. Total Floor Area: 123 Sq. M. | Large Driveway Offering Ample Parking | Master Bedroom with En-suite | Large Kitchen with Stunning Church View
Property Oracle says ..
This is a detached property located on Coventry Road, Fillongley. It features 3 bedrooms and 2 bathrooms. The property appears to be in good condition, with a modern interior. It benefits from off-street parking and a shed in the paved backyard. The property is located near a primary school and has good transport links. The asking price of £400,000 seems reasonable compared to the average property price in the area.
Therefore, we give this property 7 / 10. *Disclaimer: This is our option and does constitute a recommendation or financial advice. Do your own research. *
- Price
- 7
- Condition
- 8
- Location
- 7
- Land
- 6
- Bedrooms
- 3
- Bathrooms
- 2
The heatmap indicates the level of crime in the area. The color of the heatmap indicates the crime severity and recency.
Metrics Year-on-Year
- Average area value
- 683,165.00 £Decreased by 33.92 %
- Average area rental value
- 1,373.00 £/moDecreased by 34.56 %
- Est rental Yield
- 2.41 %Decreased by 1.23 %
- Crime Rate
- 51.00 %Unchanged by 0.00 %
Agent Activity
Bayzos Estate Agents created the listing.
Nearby Schools
| Name | Type | Ofsted | Distance |
|---|---|---|---|
| Bournebrook Cofe Primary School | Voluntary Controlled School | Good | 0.10 KM |
| Arley Primary School | Community School | Good | 3.43 KM |
| Corley Centre | Community Special School | Good | 3.65 KM |
| Arc School Old Arley | Other Independent Special School | Good | 3.69 KM |
| Arc School Ansley | Other Independent Special School | Good | 4.74 KM |
Images
Nearby Streets
| Name | Average Price | Average Sqft | Distance |
|---|---|---|---|
| St Mary's Road | £ 0 | 0 | 0.00 KM |
Nearby Transport
| Name | NLC | TLC | Distance |
|---|---|---|---|
| Tile Hill | 1035 | THL | 9.68 KM |
Nearby Listings
| Address | Price | Type | Score | Distance |
|---|---|---|---|---|
| Coventry Road, Fillongley, CV7 | £ 400,000 | BUY | 7 / 10 | 0.00 KM |
| Coventry Road, Fillongley, CV7 | £ 360,000 | BUY | 7 / 10 | 0.02 KM |
| Coventry Road, Fillongley, Coventry | £ 600,000 | BUY | 7 / 10 | 0.07 KM |
| Bourne Brook Close, Fillongley, CV7 | £ 400,000 | BUY | 7 / 10 | 0.07 KM |
| Bourne Brook Close, Fillongley, Coventry, CV7 | £ 380,000 | BUY | 6 / 10 | 0.07 KM |
Nearby Properties
| Address | Price | Distance |
|---|---|---|
| 1 Bourne Brook Close | £ 243,000 | 0.07 KM |
| 8 Bourne Brook Close | £ 346,000 | 0.07 KM |
| 7 Bourne Brook Close | £ 320,000 | 0.07 KM |
| 5 Ousterne Lane | £ 107,500 | 0.13 KM |
| Mill House | £ 530,000 | 0.13 KM |