Harris & Harris says ..
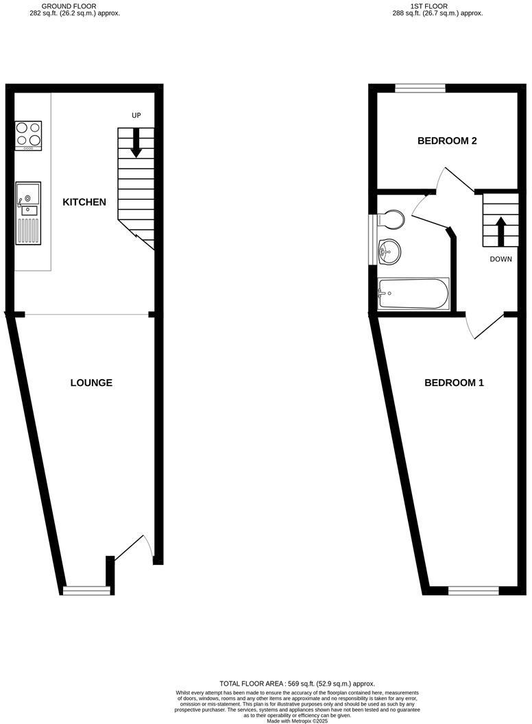
A two bedroom mid terraced cottage located in the town centre of Axminster, close to the local amenities, shops and transport links. The property briefly comprises a open plan lounge, kitchen diner on the ground floor. The first floor enjoys two bedroom and a bathroom.
Property Oracle says ..
Therefore, we give this property 4 / 10. *Disclaimer: This is our option and does constitute a recommendation or financial advice. Do your own research. *
- Price
- 5
- Condition
- 4
- Location
- 7
- Land
- 1
- Bedrooms
- 2
- Bathrooms
- 1
- Sqft (est)
- 569.00
The heatmap indicates the level of crime in the area. The color of the heatmap indicates the crime severity and recency.
Metrics Year-on-Year
- Average area value
- 409,094.00 £Increased by 31.35 %
- Est sale value
- 195,736.00 £Increased by 41.56 %
- Average area rental value
- 1,235.00 £/moIncreased by 34.24 %
- Est letting value
- 569.00 £/mo
- Est rental Yield
- 3.62 %Increased by 2.26 %
- Crime Rate
- 58.00 %Unchanged by 0.00 %
from 311,458.00 £
from 138,267.00 £
from 920.00 £/mo
from 0.00 £/mo
from 3.54 %
from 58.00 %
Agent Activity
Harris & Harris created the listing.
Nearby Schools
| Name | Type | Ofsted | Distance |
|---|---|---|---|
| Axe Valley Academy | Academy Sponsor Led | Requires improvement | 0.41 KM |
| St Mary'S Catholic Primary School, Axminster | Academy Converter | Good | 0.72 KM |
| Axminster Community Primary Academy | Academy Converter | Good | 0.77 KM |
| All Saints Church Of England Primary School | Academy Converter | Good | 2.84 KM |
| Kilmington Primary School | Community School | Outstanding | 3.83 KM |
Images
Nearby Streets
| Name | Average Price | Average Sqft | Distance |
|---|---|---|---|
| Pig Lane | £ 0 | 0 | 0.00 KM |
| Norman Close | £ 0 | 0 | 0.00 KM |
| King Edward Road | £ 337,500 | 0 | 0.00 KM |
| St George's Avenue | £ 210,000 | 0 | 0.00 KM |
Nearby Transport
| Name | NLC | TLC | Distance |
|---|---|---|---|
| Axminster | 5714 | AXM | 0.79 KM |
Nearby Listings
| Address | Price | Type | Score | Distance |
|---|---|---|---|---|
| Market Square, Axminster | £ 475,000 | BUY | 7 / 10 | 0.00 KM |
| Market Square, Axminster | £ 145,000 | BUY | 4 / 10 | 0.00 KM |
| Castle Hill, Axminster | £ 100,000 | BUY | Unknown | 0.01 KM |
| Market Square, Axminster, Devon | £ 149,950 | BUY | 5 / 10 | 0.03 KM |
| Castle Hill, Axminster | £ 105,000 | BUY | 7 / 10 | 0.05 KM |
Nearby Properties
| Address | Price | Distance |
|---|---|---|
| 11 Market Square | £ 99,950 | 0.02 KM |
| Lace Cottage | £ 207,000 | 0.02 KM |
| Tower House | £ 390,000 | 0.02 KM |
| 12 Market Square | £ 146,500 | 0.02 KM |
| Stepsway | £ 128,000 | 0.04 KM |