Picton Lane, Montpellier, Bristol, BS6
By HPG
£ 395,000
Reviews
3 out of 5 stars
HPG says ..
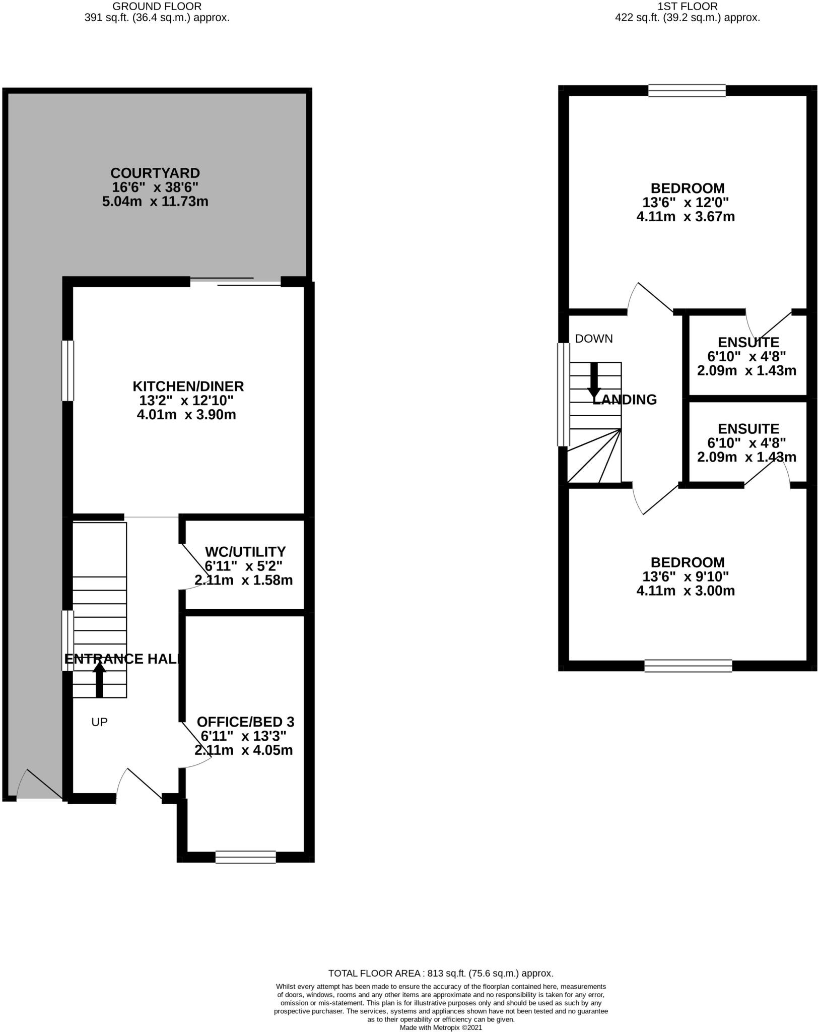
** No chain, Montpellier location, freehold townhouse ** Recently built townhouse located in the trendy Montpellier area of the city of Bristol with its array of local independent shops and cafes right on the doorstep. The property benefits from a 10 year new build guarantee, high end bespoke kit...
Property Oracle says ..
This property is a three-bedroom terraced house located in Montpelier, Bristol. The area benefits from its proximity to local amenities, including shops and restaurants, as well as good transport links to Bristol city centre. The property itself appears to have undergone a recent renovation, with a modern kitchen and bathrooms. While the plot size is small, the property does have a small rear courtyard. The list price of £395,000 is slightly below the average price for the area, but the smaller plot size and slightly below average square footage may reflect this. More information on the property’s condition and the specifics of the renovation would be needed for a more comprehensive valuation.
Therefore, we give this property 6 / 10. *Disclaimer: This is our option and does constitute a recommendation or financial advice. Do your own research. *
- Price
- 7
- Condition
- 9
- Location
- 8
- Land
- 3
- Bedrooms
- 3
- Bathrooms
- 1
- Sqft (est)
- 813.00
The heatmap indicates the level of crime in the area. The color of the heatmap indicates the crime severity and recency.
Metrics Year-on-Year
- Average area value
- 445,205.00 £Decreased by 3.69 %
- Est sale value
- 524,385.00 £Increased by 20.34 %
- Average area rental value
- 1,836.00 £/moIncreased by 4.79 %
- Est letting value
- 1,626.00 £/moUnchanged by 0.00 %
- Est rental Yield
- 4.95 %Increased by 8.79 %
- Crime Rate
- 6.00 %Unchanged by 0.00 %
Agent Activity
HPG created the listing.
Nearby Schools
| Name | Type | Ofsted | Distance |
|---|---|---|---|
| The Dolphin School | Academy Sponsor Led | Good | 0.14 KM |
| Montpelier High School | Academy Sponsor Led | Outstanding | 0.32 KM |
| St Pauls Nursery School & Children'S Centre | Local Authority Nursery School | Outstanding | 0.61 KM |
| St Paul'S Nursery School & Children'S Centre | Children's Centre | 0.63 KM | |
| Bristol Hospital Education Service | Pupil Referral Unit | Outstanding | 0.85 KM |
Images
Nearby Streets
| Name | Average Price | Average Sqft | Distance |
|---|---|---|---|
| Armidale Avenue | £ 260,000 | 0 | 0.00 KM |
| Carmen Beckford Street | £ 0 | 0 | 0.00 KM |
| Stokes Croft | £ 245,000 | 0 | 0.00 KM |
| Arley Cottages | £ 375,000 | 0 | 0.00 KM |
| Brookfield Road | £ 0 | 0 | 0.00 KM |
Nearby Transport
| Name | NLC | TLC | Distance |
|---|---|---|---|
| Montpelier | 3203 | MTP | 0.26 KM |
| Redland | 3247 | RDA | 1.16 KM |
| Bristol Temple Meads | 3231 | BRI | 2.05 KM |
| Stapleton Road | 3250 | SRD | 2.51 KM |
| Clifton Down | 3202 | CFN | 2.53 KM |
Nearby Listings
| Address | Price | Type | Score | Distance |
|---|---|---|---|---|
| Picton Lane, Montpellier, Bristol, BS6 | £ 395,000 | BUY | 6 / 10 | 0.00 KM |
| Armidale Place, Montpelier | £ 250,000 | BUY | 6 / 10 | 0.02 KM |
| Picton Lane, Montpelier | £ 550,000 | BUY | 7 / 10 | 0.02 KM |
| Armidale Place, Montpellier | £ 180,000 | BUY | 6 / 10 | 0.04 KM |
| Armidale Place, Montpellier | £ 270,000 | BUY | 7 / 10 | 0.04 KM |
Nearby Properties
| Address | Price | Distance |
|---|---|---|
| 45 Picton Lane | £ 343,000 | 0.01 KM |
| 46 Picton Lane | £ 375,000 | 0.01 KM |
| 58 Bath Buildings | £ 235,000 | 0.04 KM |
| 518 Armidale Place | £ 272,500 | 0.05 KM |
| 505 Armidale Place | £ 199,995 | 0.05 KM |