Church Lane, Gosforth, Newcastle upon Tyne, Tyne and Wear, NE3 1AR
By Pattinson Estate Agents
£ 135,000
Reviews
3 out of 5 stars
Pattinson Estate Agents says ..
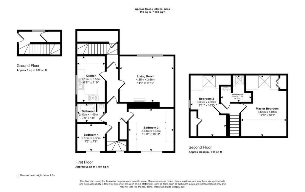
**For Sale by Auction – Fees Apply** Spacious Four-Bedroom Upper Flat | Popular NE3 Location | Private Driveway & Garden Located just a short stroll from the vibrant Gosforth High Street, this generously extended four-bedroom upper flat is set in one of Newcastle's most sought-after are...
Property Oracle says ..
This four-bedroom maisonette is situated in Gosforth, Newcastle upon Tyne. The property benefits from being close to good schools and transport links, making it an attractive option for families. While the interior shows some signs of age, it appears to be in reasonable condition and could be improved with some modernisation. The property includes a small garden. Considering the average price per square foot in the area and the condition of the property, the list price appears to be relatively reasonable, especially when compared to similar properties in the area. However, the lack of information regarding the property’s specific condition and the limited details on nearby comparable properties make a definitive assessment challenging.
Therefore, we give this property 6 / 10. *Disclaimer: This is our option and does constitute a recommendation or financial advice. Do your own research. *
- Price
- 7
- Condition
- 6
- Location
- 8
- Land
- 4
- Bedrooms
- 4
- Bathrooms
- 2
- Sqft (est)
- 290.32
- Lot (est)
- 1,188.00
The heatmap indicates the level of crime in the area. The color of the heatmap indicates the crime severity and recency.
Metrics Year-on-Year
- Average area value
- 1,142,500.00 £Increased by 139.22 %
- Est sale value
- 129,482.72 £Increased by 26.35 %
- Average area rental value
- 1,237.00 £/moDecreased by 7.48 %
- Est letting value
- 0.00 £/mo
- Est rental Yield
- 1.30 %Decreased by 61.31 %
- Crime Rate
- 9.00 %Unchanged by 0.00 %
Agent Activity
Pattinson Estate Agents created the listing.
Nearby Schools
| Name | Type | Ofsted | Distance |
|---|---|---|---|
| Archbishop Runcie Cofe First School | Voluntary Aided School | Good | 0.42 KM |
| South Gosforth First School | Foundation School | Good | 0.65 KM |
| Gosforth Central Middle School | Foundation School | Good | 0.71 KM |
| Gosforth East Middle School | Foundation School | Good | 1.09 KM |
| St Oswald'S Catholic Primary School, Gosforth | Academy Converter | 1.24 KM |
Images
Nearby Streets
| Name | Average Price | Average Sqft | Distance |
|---|---|---|---|
| Cuthbert Walk | £ 0 | 0 | 0.00 KM |
| Columba Walk | £ 260,000 | 0 | 0.00 KM |
| Rectory Grove | £ 0 | 0 | 0.00 KM |
| Percy Terrace | £ 550,000 | 0 | 0.00 KM |
| Rosewood Avenue | £ 400,000 | 0 | 0.00 KM |
Nearby Transport
| Name | NLC | TLC | Distance |
|---|---|---|---|
| Manors | 7603 | MAS | 3.89 KM |
| Newcastle | 7728 | NCL | 4.32 KM |
| Dunston | 7744 | DOT | 7.13 KM |
| Metrocentre | 7725 | MCE | 7.97 KM |
| Heworth | 7766 | HEW | 8.77 KM |
Nearby Listings
| Address | Price | Type | Score | Distance |
|---|---|---|---|---|
| Church Lane, Gosforth, Newcastle upon Tyne, Tyne and Wear, NE3 1AR | £ 135,000 | BUY | 6 / 10 | 0.00 KM |
| Church Lane, Gosforth, Newcastle Upon Tyne, NE3 | £ 365,000 | BUY | Unknown | 0.01 KM |
| Church Lane, Gosforth, NE3 | £ 149,950 | BUY | 7 / 10 | 0.04 KM |
| Church Lane, Gosforth, Newcastle Upon Tyne, Tyne and Wear, NE3 | £ 159,950 | BUY | 6 / 10 | 0.05 KM |
| Church Lane, Gosforth, Newcastle upon Tyne | £ 460,000 | BUY | 7 / 10 | 0.13 KM |
Nearby Properties
| Address | Price | Distance |
|---|---|---|
| 58 Church Lane | £ 128,000 | 0.01 KM |
| 43 Church Lane | £ 110,000 | 0.01 KM |
| 46 Church Lane | £ 125,000 | 0.01 KM |
| 14 Church Lane | £ 55,000 | 0.01 KM |
| 12 Church Lane | £ 307,000 | 0.01 KM |