Lancelot Avenue, Strood, Rochester, ME2
By Greyfox Estate Agents
£ 250,000
Reviews
3 out of 5 stars
Greyfox Estate Agents says ..
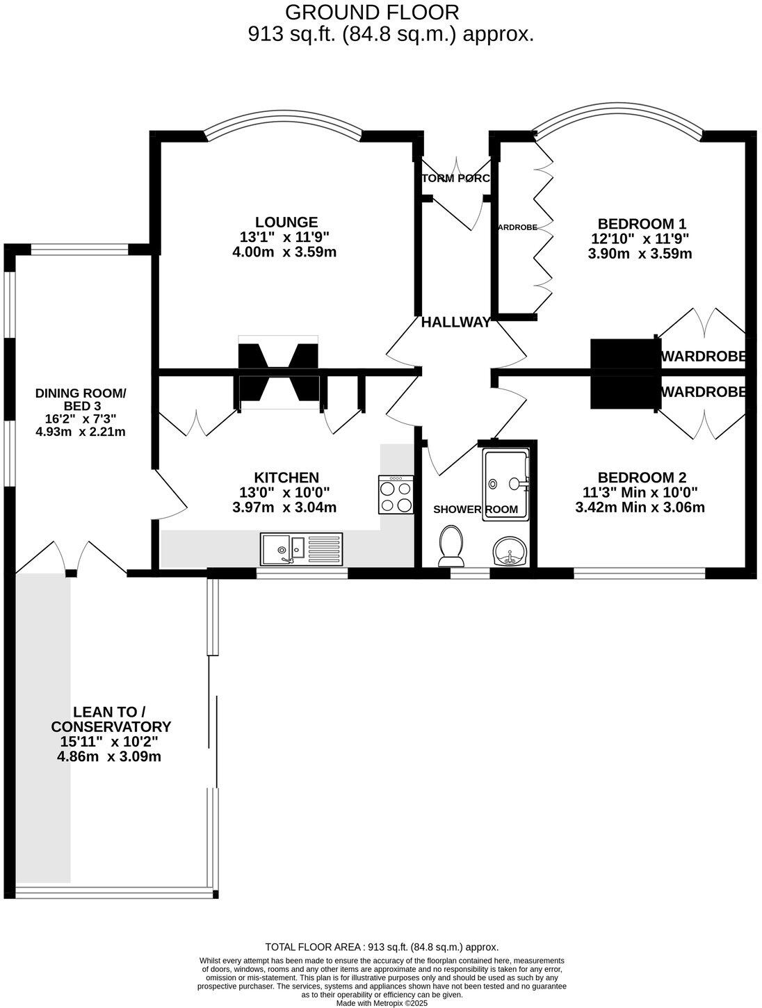
Being Sold via Secure Sale online bidding. Terms & Conditions apply. Starting Bid £250,000A rarity. This detached bungalow offers massive potential for improvement and further development subject to relevant planning permission. Being sold with no onward chain and in a popular...
Property Oracle says ..
This two-bedroom detached bungalow on Lancelot Avenue in Strood presents a significant opportunity for buyers willing to undertake a comprehensive renovation project. While the property requires considerable modernisation, it benefits from a desirable location with access to local amenities and transport links, as well as a generously sized garden. The asking price of £250,000 reflects the condition of the property, offering potential for added value upon completion of the renovation.
Therefore, we give this property 6 / 10. *Disclaimer: This is our option and does constitute a recommendation or financial advice. Do your own research. *
- Price
- 7
- Condition
- 3
- Location
- 7
- Land
- 7
- Bedrooms
- 2
- Bathrooms
- 1
The heatmap indicates the level of crime in the area. The color of the heatmap indicates the crime severity and recency.
Metrics Year-on-Year
- Average area value
- 272,545.00 £Decreased by 13.33 %
- Average area rental value
- 1,483.00 £/moIncreased by 11.09 %
- Est rental Yield
- 6.53 %Increased by 28.29 %
- Crime Rate
- 4.00 %Unchanged by 0.00 %
Agent Activity
Greyfox Estate Agents created the listing.
Nearby Schools
| Name | Type | Ofsted | Distance |
|---|---|---|---|
| Elaine Primary School | Academy Sponsor Led | 0.45 KM | |
| Abbey Court Foundation Special School | Community Special School | Outstanding | 0.69 KM |
| Manorway Independent School | Other Independent Special School | Inadequate | 0.69 KM |
| Cedar Children'S Academy | Academy Sponsor Led | Good | 0.90 KM |
| Strood Academy | Academy Sponsor Led | Good | 0.99 KM |
Images
Nearby Streets
| Name | Average Price | Average Sqft | Distance |
|---|---|---|---|
| A2 | £ 375,000 | 0 | 0.00 KM |
| Crispin Road | £ 0 | 0 | 0.00 KM |
| Russet Close | £ 0 | 0 | 0.00 KM |
| Ash Road | £ 0 | 0 | 0.00 KM |
| Cedar Road; Hawthorn Road | £ 300,000 | 0 | 0.00 KM |
Nearby Transport
| Name | NLC | TLC | Distance |
|---|---|---|---|
| Strood (Kent) | 5191 | SOO | 2.81 KM |
| Cuxton | 5201 | CUX | 2.93 KM |
| Higham | 5202 | HGM | 3.44 KM |
| Rochester | 5203 | RTR | 4.12 KM |
| Chatham | 5199 | CTM | 5.45 KM |
Nearby Listings
| Address | Price | Type | Score | Distance |
|---|---|---|---|---|
| Lancelot Avenue, Strood, Rochester, ME2 | £ 250,000 | BUY | 6 / 10 | 0.00 KM |
| Lancelot Avenue, Strood, Rochester, ME2 | £ 300,000 | BUY | Unknown | 0.00 KM |
| Lancelot Avenue, Rochester, Kent, ME2 | £ 450,000 | BUY | 7 / 10 | 0.03 KM |
| Lancelot Avenue, Strood, Rochester, Kent, ME2 2YX | £ 250,000 | BUY | 6 / 10 | 0.09 KM |
| Elaine Avenue, Strood, | £ 375,000 | BUY | 6 / 10 | 0.12 KM |
Nearby Properties
| Address | Price | Distance |
|---|---|---|
| 136 Lancelot Avenue | £ 205,000 | 0.01 KM |
| 121 Lancelot Avenue | £ 265,000 | 0.01 KM |
| 101 Lancelot Avenue | £ 360,000 | 0.01 KM |
| 106 Elaine Avenue | £ 250,000 | 0.13 KM |
| 123 Elaine Avenue | £ 370,000 | 0.13 KM |