Rectory Place, Barton-in-Fabis, Nottingham
By Cocoon (UK)
£ 625,000
Reviews
3 out of 5 stars
Cocoon (UK) says ..
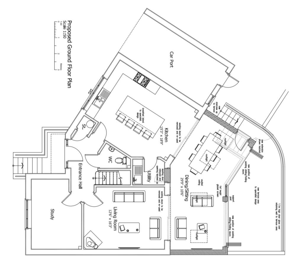
Escape to the country and leave the rat race behind, the charming village of Barton in Fabis is home to this stunning architect designed 4/5 bedroom 3 bathroom detached house, completed in 2020, offers the best of both worlds. Tucked away in the charming rural village of Barton in Fabis and ...
Property Oracle says ..
This property is a modern detached house located in Barton-in-Fabis, Nottingham. It boasts 4 bedrooms and 3 bathrooms, and is situated on a sizeable plot with a well-maintained garden. The interior is modern and well-presented, with a contemporary kitchen and spacious living areas. The property benefits from a convenient location with good access to nearby schools and transportation links. The list price of £625,000 is higher than the average price for the area, however, given the size, condition, and features of the property, it may represent good value for money. More information on the plot size would be beneficial to provide a more accurate analysis.
Therefore, we give this property 7 / 10. *Disclaimer: This is our option and does constitute a recommendation or financial advice. Do your own research. *
- Price
- 7
- Condition
- 9
- Location
- 7
- Land
- 8
- Bedrooms
- 4
- Bathrooms
- 3
- Sqft (est)
- 1,088.75
The heatmap indicates the level of crime in the area. The color of the heatmap indicates the crime severity and recency.
Metrics Year-on-Year
- Average area value
- 307,772.00 £Increased by 19.74 %
- Est sale value
- 569,416.25 £Increased by 90.88 %
- Average area rental value
- 871.00 £/moDecreased by 8.32 %
- Est letting value
- 1,088.75 £/moUnchanged by 0.00 %
- Est rental Yield
- 3.40 %Decreased by 23.42 %
- Crime Rate
- 344.00 %Unchanged by 0.00 %
Agent Activity
Cocoon (UK) created the listing.
Nearby Schools
| Name | Type | Ofsted | Distance |
|---|---|---|---|
| Chilwell School | Foundation School | Good | 2.62 KM |
| Gotham Primary School | Community School | Requires improvement | 3.10 KM |
| The Lanes Primary School | Community School | 3.49 KM | |
| Chetwynd Spencer Academy | Academy Converter | Outstanding | 3.63 KM |
| Grange Primary School | Community School | Good | 3.76 KM |
Images
Nearby Streets
| Name | Average Price | Average Sqft | Distance |
|---|---|---|---|
| Church Lane | £ 0 | 0 | 0.00 KM |
Nearby Transport
| Name | NLC | TLC | Distance |
|---|---|---|---|
| Attenborough | 1624 | ATB | 1.98 KM |
| Beeston | 1625 | BEE | 4.10 KM |
| East Midlands Parkway | 1901 | EMD | 5.02 KM |
| Long Eaton | 1829 | LGE | 6.76 KM |
Nearby Listings
| Address | Price | Type | Score | Distance |
|---|---|---|---|---|
| Rectory Place, Barton-in-Fabis, Nottingham | £ 625,000 | BUY | 7 / 10 | 0.00 KM |
| Rectory Place, Barton-In-Fabis, Nottingham | £ 485,000 | BUY | 7 / 10 | 0.04 KM |
| Old Farm Court, Barton-In-Fabis | £ 550,000 | BUY | 7 / 10 | 0.05 KM |
| Church Lane, Barton-In-Fabis, Nottingham | £ 1,250,000 | BUY | 9 / 10 | 0.13 KM |
| Brown Lane, Barton-In-Fabis, Nottingham | £ 565,000 | BUY | 5 / 10 | 0.14 KM |
Nearby Properties
| Address | Price | Distance |
|---|---|---|
| 27 Rectory Place | £ 560,000 | 0.00 KM |
| 14 Rectory Place | £ 90,000 | 0.00 KM |
| 1 Old Farm Court | £ 95,000 | 0.05 KM |
| 3 Old Farm Court | £ 115,000 | 0.05 KM |
| 6 Brown Lane | £ 254,500 | 0.24 KM |