Houselands Road, Tonbridge
By Waghorn & Company
£ 395,000
Reviews
3 out of 5 stars
Waghorn & Company says ..
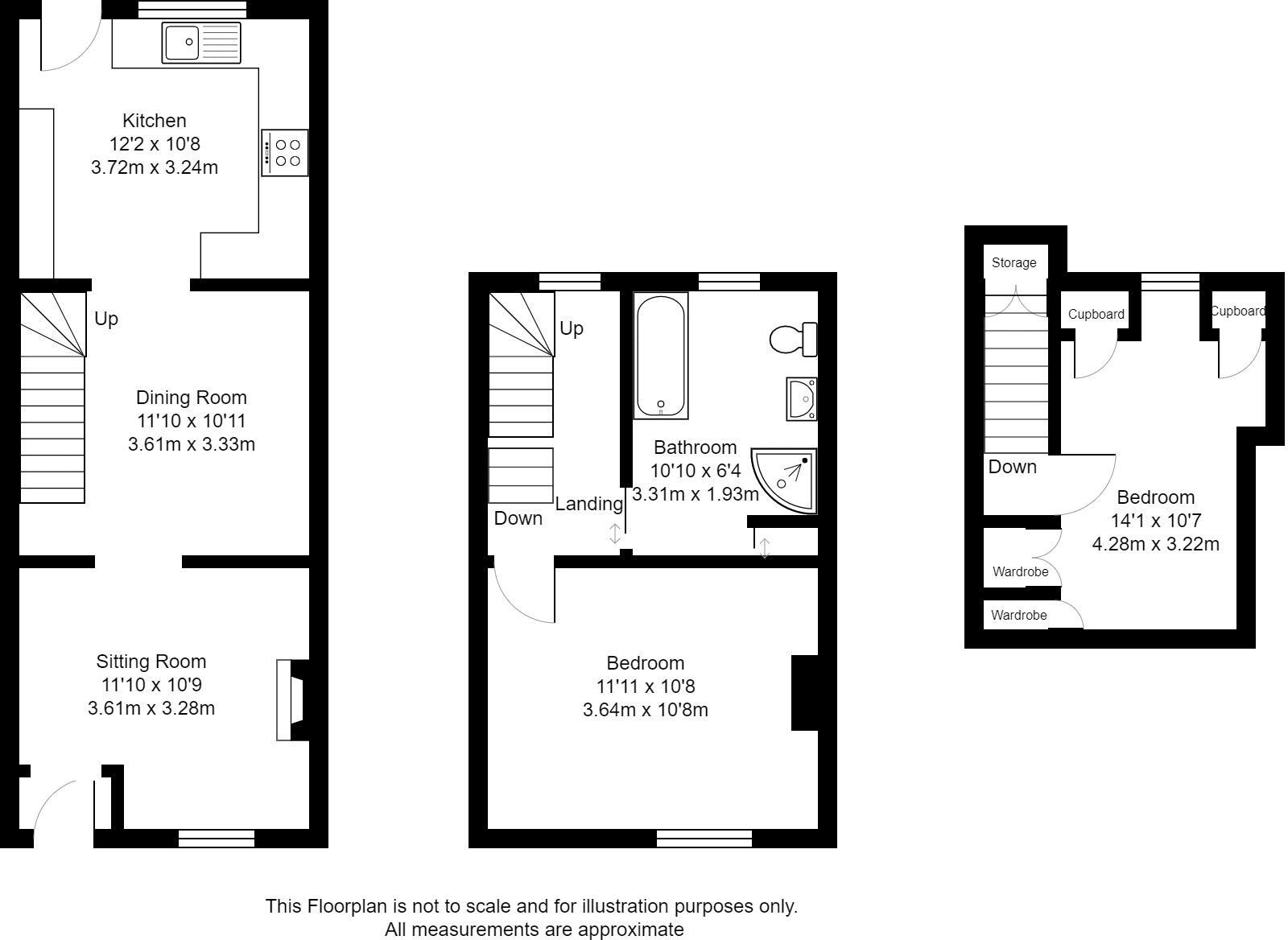
Waghorn & Company are delighted to offer to the market this beautifully presented, 2 bedroom terrace located in the sought after Slade conservation area with PARKING! The property offers extended accommodation to the ground floor with a wealth of period features, a charming Cottage Style gard...
Property Oracle says ..
Therefore, we give this property 7 / 10. *Disclaimer: This is our option and does constitute a recommendation or financial advice. Do your own research. *
- Price
- 6
- Condition
- 8
- Location
- 7
- Land
- 7
- Bedrooms
- 2
- Bathrooms
- 1
- Sqft (est)
- 68.33
The heatmap indicates the level of crime in the area. The color of the heatmap indicates the crime severity and recency.
Metrics Year-on-Year
- Average area value
- 273,747.00 £Decreased by 7.23 %
- Est sale value
- 25,008.78 £Increased by 23.65 %
- Average area rental value
- 1,032.00 £/moDecreased by 0.77 %
- Est letting value
- 68.33 £/moUnchanged by 0.00 %
- Est rental Yield
- 4.52 %Increased by 6.86 %
- Crime Rate
- 3.00 %Unchanged by 0.00 %
from 295,097.00 £
from 20,225.68 £
from 1,040.00 £/mo
from 68.33 £/mo
from 4.23 %
from 3.00 %
Agent Activity
Waghorn & Company created the listing.
Nearby Schools
| Name | Type | Ofsted | Distance |
|---|---|---|---|
| Slade Primary School And Attached Unit For Children With Hearing Impairment | Community School | Outstanding | 0.17 KM |
| Tonbridge School | Other Independent School | 0.46 KM | |
| Hilden Grange School | Other Independent School | 0.64 KM | |
| Hilden Oaks Preparatory School And Nursery | Other Independent School | 0.64 KM | |
| South Tonbridge Children'S Centre | Children's Centre | 0.73 KM |
Images
Nearby Streets
| Name | Average Price | Average Sqft | Distance |
|---|---|---|---|
| The Avenue | £ 0 | 0 | 0.00 KM |
| Stafford Road | £ 0 | 0 | 0.00 KM |
| Castle Street | £ 290,000 | 0 | 0.00 KM |
| High Street | £ 260,500 | 0 | 0.00 KM |
| Lyons Crescent | £ 330,357 | 0 | 0.00 KM |
Nearby Transport
| Name | NLC | TLC | Distance |
|---|---|---|---|
| Tonbridge | 5229 | TON | 0.88 KM |
| Hildenborough | 5236 | HLB | 5.12 KM |
| High Brooms | 5235 | HIB | 5.60 KM |
| Leigh (Kent) | 5294 | LIH | 6.75 KM |
| Tunbridge Wells | 5230 | TBW | 7.75 KM |
Nearby Listings
| Address | Price | Type | Score | Distance |
|---|---|---|---|---|
| Houselands Road, Tonbridge | £ 475,000 | BUY | 6 / 10 | 0.00 KM |
| Houselands Road, Tonbridge | £ 395,000 | BUY | 7 / 10 | 0.00 KM |
| Houselands Road, Tonbridge | £ 350,000 | BUY | 6 / 10 | 0.00 KM |
| Houselands Road, Tonbridge, Kent, TN9 | £ 425,000 | BUY | 6 / 10 | 0.01 KM |
| Hawden Road, Tonbridge, TN9 1JN | £ 350,000 | BUY | 6 / 10 | 0.06 KM |
Nearby Properties
| Address | Price | Distance |
|---|---|---|
| 5 Houselands Road | £ 310,000 | 0.01 KM |
| 20 Houselands Road | £ 247,000 | 0.01 KM |
| 3 Houselands Road | £ 310,000 | 0.01 KM |
| 31 Houselands Road | £ 185,000 | 0.01 KM |
| 26 Houselands Road | £ 345,000 | 0.01 KM |