GI
Norbiton Avenue, Kingston Upon Thames
By Gibson Lane
£ 900,000
Gibson Lane says ..
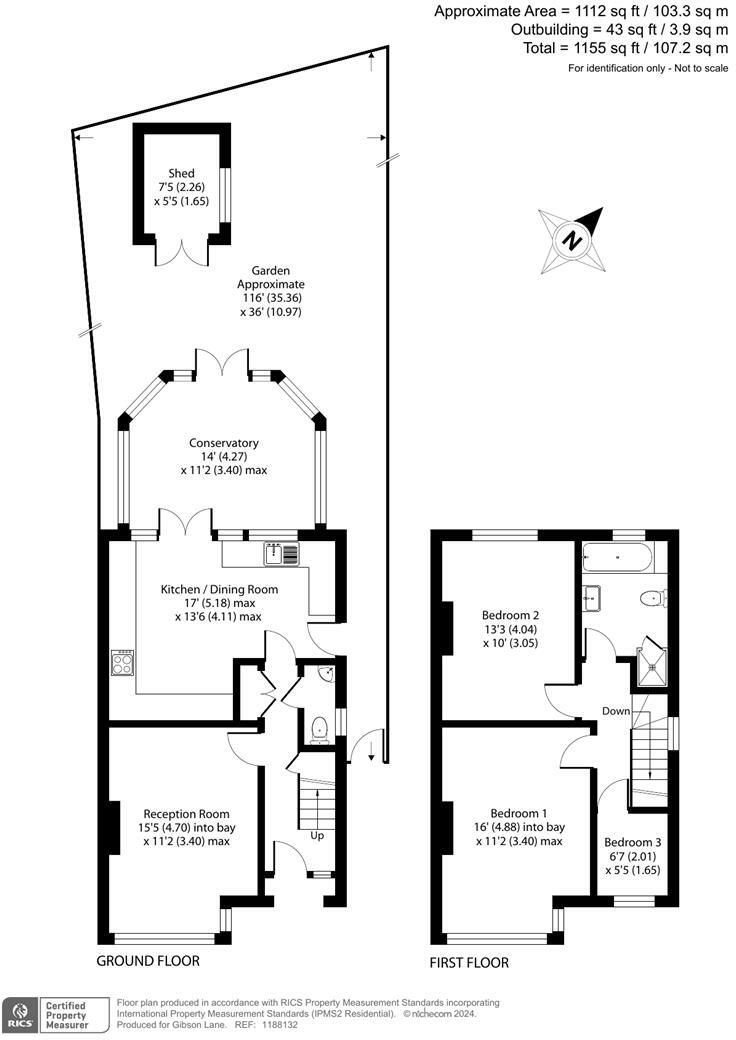
An attractive 1920's, three bedroom detached family home with accommodation in excess of 1100sqft arranged over two floors. The ground floor comprises of a generous entrance hall, large front reception room with feature fireplace and square bay window, downstairs WC, open plan style kitchen/dini...
- Bedrooms
- 3
- Bathrooms
- 1
The heatmap indicates the level of crime in the area. The color of the heatmap indicates the crime severity and recency.
Metrics Year-on-Year
- Average area value
- 511,100.00 £Decreased by 7.14 %
- Average area rental value
- 2,056.00 £/moDecreased by 0.24 %
- Est rental Yield
- 4.83 %Increased by 7.57 %
- Crime Rate
- 2.00 %Unchanged by 0.00 %
from 550,383.00 £
from 2,061.00 £/mo
from 4.49 %
from 2.00 %
Agent Activity
Gibson Lane created the listing.
Nearby Schools
| Name | Type | Ofsted | Distance |
|---|---|---|---|
| St Paul'S Cofe Primary School, Kingston Hill | Voluntary Aided School | Good | 0.73 KM |
| Park Hill School | Other Independent School | 0.75 KM | |
| Alexandra Primary School | Community School | Requires improvement | 0.75 KM |
| Kingston Hill Children'S Centre | Children's Centre Linked Site | 0.77 KM | |
| St Joseph'S Catholic Primary School | Voluntary Aided School | Good | 1.05 KM |
Images
Nearby Streets
| Name | Average Price | Average Sqft | Distance |
|---|---|---|---|
| Neville Road | £ 1,225,000 | 0 | 0.00 KM |
| Sylvestrus Close | £ 0 | 0 | 0.00 KM |
| St Peters Road | £ 0 | 0 | 0.00 KM |
| Backwater Place | £ 0 | 0 | 0.00 KM |
| Gloucester Road | £ 0 | 0 | 0.00 KM |
Nearby Transport
| Name | NLC | TLC | Distance |
|---|---|---|---|
| Norbiton | 5568 | NBT | 0.26 KM |
| Berrylands | 5581 | BRS | 1.42 KM |
| Kingston | 5565 | KNG | 1.72 KM |
| Surbiton | 5571 | SUR | 2.87 KM |
| Hampton Wick | 5589 | HMW | 2.98 KM |
Nearby Listings
| Address | Price | Type | Score | Distance |
|---|---|---|---|---|
| Norbiton Avenue, Kingston Upon Thames | £ 900,000 | BUY | Unknown | 0.00 KM |
| Norbiton Avenue, Kingston Upon Thames | £ 475,000 | BUY | 6 / 10 | 0.06 KM |
| Norbiton Avenue, Kingston Upon Thames, KT1 | £ 1,225,000 | BUY | 7 / 10 | 0.08 KM |
| Norbiton Avenue, Kingston Upon Thames, KT1 | £ 1,075,000 | BUY | Unknown | 0.09 KM |
| Cobham Road, Kingston Upon Thames | £ 465,000 | BUY | 5 / 10 | 0.17 KM |
Nearby Properties
| Address | Price | Distance |
|---|---|---|
| 13 Norbiton Avenue | £ 420,000 | 0.08 KM |
| 23 Norbiton Avenue | £ 494,950 | 0.08 KM |
| 58 Norbiton Avenue | £ 1,220,000 | 0.08 KM |
| 23 Cobham Road | £ 499,950 | 0.09 KM |
| 77 Cobham Road | £ 1,045,000 | 0.09 KM |