IAD says ..
Agent Ref: LM01. Don't miss this beautiful extended 3 bedroom semi-detached home on Cherry Tree Avenue, Walsall. Ideal for families , first-time buyers and investors alike !
Property Oracle says ..
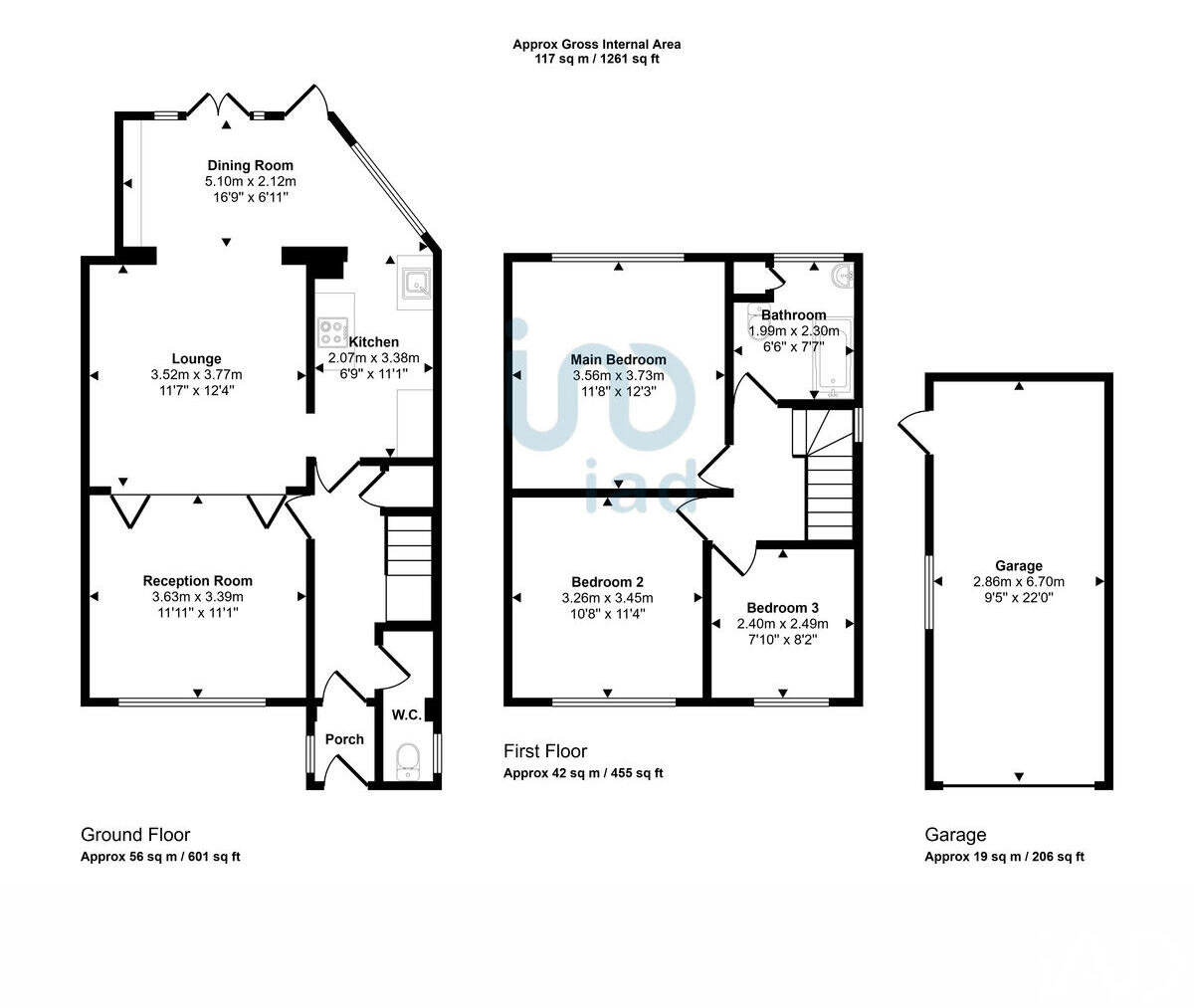
This is a well-presented, modernised semi-detached property located in a convenient residential area. The house benefits from a modern kitchen and bathroom, a good-sized garden, and proximity to local schools and transportation links. The asking price of £315,000 appears reasonable given the property’s condition, size, and location. It would make an ideal family home.
Therefore, we give this property 7 / 10. *Disclaimer: This is our option and does constitute a recommendation or financial advice. Do your own research. *
- Price
- 7
- Condition
- 8
- Location
- 7
- Land
- 7
- Bedrooms
- 3
- Bathrooms
- 2
- Sqft (est)
- 1,259.38
The heatmap indicates the level of crime in the area. The color of the heatmap indicates the crime severity and recency.
Metrics Year-on-Year
- Average area value
- 227,143.00 £Decreased by 21.02 %
- Est sale value
- 313,585.62 £Decreased by 24.55 %
- Average area rental value
- 1,237.00 £/moIncreased by 11.34 %
- Est letting value
- 1,259.38 £/moUnchanged by 0.00 %
- Est rental Yield
- 6.54 %Increased by 40.95 %
- Crime Rate
- 5.00 %Unchanged by 0.00 %
Agent Activity
IAD created the listing.
Nearby Schools
| Name | Type | Ofsted | Distance |
|---|---|---|---|
| Delves Infant School | Community School | Outstanding | 0.44 KM |
| Delves Junior School | Community School | Requires improvement | 0.44 KM |
| Yew Tree Primary School | Community School | Good | 1.09 KM |
| Whitehall Junior Community School | Community School | Requires improvement | 1.24 KM |
| St Mary'S The Mount Catholic Primary School | Voluntary Aided School | Outstanding | 1.63 KM |
Images
Nearby Streets
| Name | Average Price | Average Sqft | Distance |
|---|---|---|---|
| Walnut Road | £ 0 | 0 | 0.00 KM |
| Barrington Close | £ 0 | 0 | 0.00 KM |
| Orchard Road | £ 0 | 0 | 0.00 KM |
| Poplar Avenue | £ 320,000 | 0 | 0.00 KM |
| Lavender Close | £ 425,000 | 0 | 0.00 KM |
Nearby Transport
| Name | NLC | TLC | Distance |
|---|---|---|---|
| Tame Bridge Parkway | 1010 | TAB | 1.55 KM |
| Bescot Stadium | 1003 | BSC | 2.79 KM |
| Walsall | 1216 | WSL | 3.22 KM |
| Hamstead (Birmingham) | 1145 | HSD | 5.36 KM |
| The Hawthorns | 4523 | THW | 6.34 KM |
Nearby Listings
| Address | Price | Type | Score | Distance |
|---|---|---|---|---|
| Cherry Tree Avenue, Walsall, WS5 | £ 315,000 | BUY | 7 / 10 | 0.00 KM |
| Lilac Avenue, Walsall, WS5 4JP | £ 305,000 | BUY | 6 / 10 | 0.13 KM |
| Cherry Tree Avenue, Walsall | £ 320,000 | BUY | 7 / 10 | 0.13 KM |
| Lilac Avenue, Walsall, WS5 4JP | £ 295,000 | BUY | 7 / 10 | 0.14 KM |
| Bell Lane, Walsall, WS5 4PU | £ 275,000 | BUY | Unknown | 0.18 KM |
Nearby Properties
| Address | Price | Distance |
|---|---|---|
| 6 Bell Drive | £ 141,000 | 0.06 KM |
| 101 Cherry Tree Avenue | £ 167,000 | 0.13 KM |
| 75 Cherry Tree Avenue | £ 155,500 | 0.13 KM |
| 93 Cherry Tree Avenue | £ 149,000 | 0.13 KM |
| 79 Cherry Tree Avenue | £ 111,950 | 0.13 KM |