Thirlmere, Kennington, Ashford, Kent, TN24 9BD
By eXp UK
£ 400,000
Reviews
3 out of 5 stars
eXp UK says ..
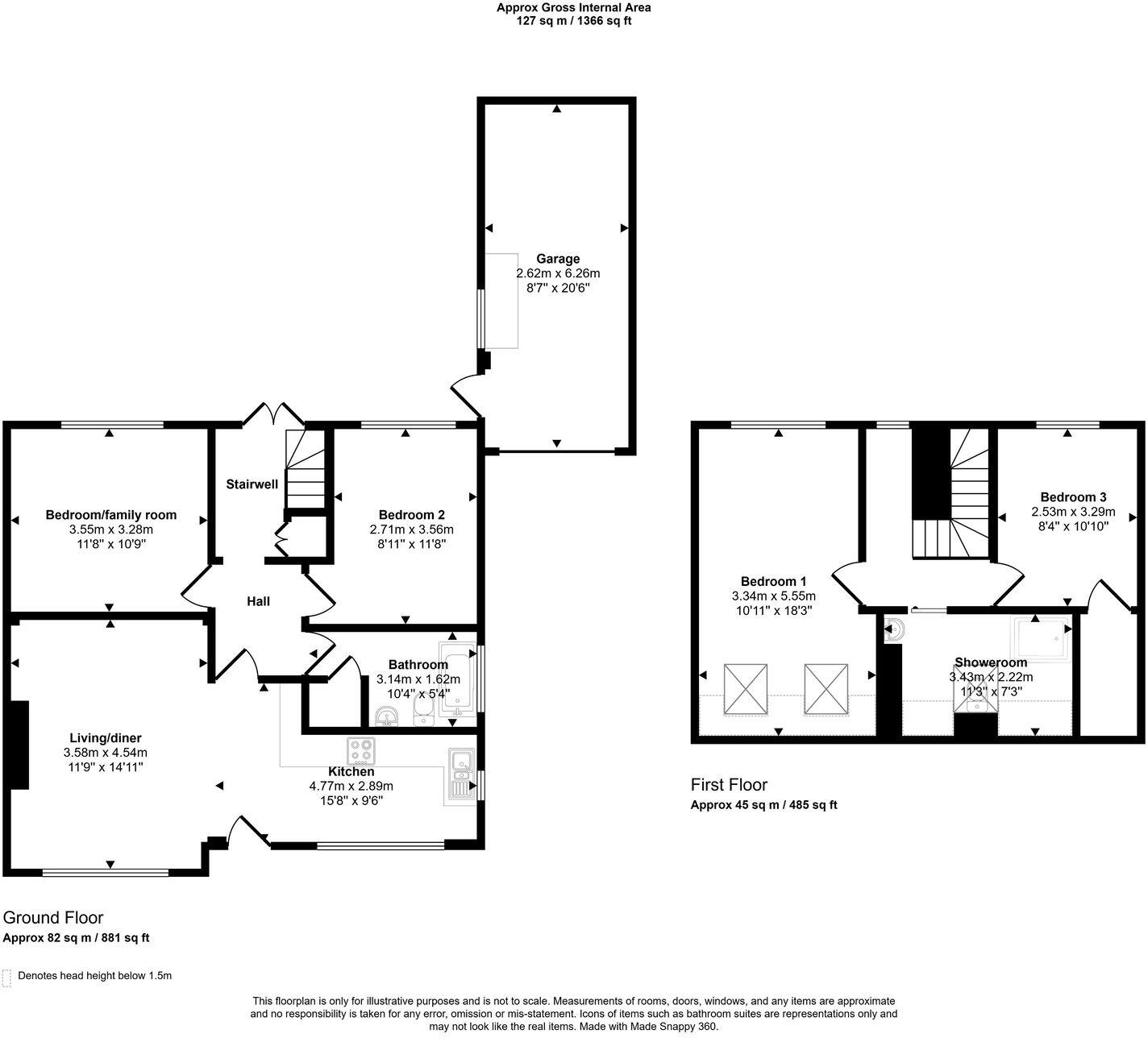
Everything is in its right place in this recently modernized, extremely neat and tidy home. there are four bedrooms, with a modern bathroom and shower room on each floor. for more info or to view please call quoting BD0443.
Property Oracle says ..
This is a well-presented, four-bedroom semi-detached property located in Kennington, Ashford. The property benefits from a modern interior, a garden, and off-street parking. It is located close to local schools and amenities.
Therefore, we give this property 7 / 10. *Disclaimer: This is our option and does constitute a recommendation or financial advice. Do your own research. *
- Price
- 6
- Condition
- 8
- Location
- 7
- Land
- 7
- Bedrooms
- 4
- Bathrooms
- 2
The heatmap indicates the level of crime in the area. The color of the heatmap indicates the crime severity and recency.
Metrics Year-on-Year
- Average area value
- 257,097.00 £Decreased by 8.25 %
- Average area rental value
- 956.00 £/moIncreased by 1.92 %
- Est rental Yield
- 4.46 %Increased by 10.95 %
- Crime Rate
- 4.00 %Unchanged by 0.00 %
Agent Activity
eXp UK created the listing.
Nearby Schools
| Name | Type | Ofsted | Distance |
|---|---|---|---|
| Phoenix Community Primary School | Foundation School | Good | 0.28 KM |
| Sure Steps Children'S Centre | Children's Centre | 0.28 KM | |
| Kennington Church Of England Academy | Academy Sponsor Led | Good | 0.87 KM |
| Towers School And Sixth Form Centre | Academy Converter | Good | 0.88 KM |
| Goat Lees Primary School | Foundation School | Good | 0.96 KM |
Images
Nearby Streets
| Name | Average Price | Average Sqft | Distance |
|---|---|---|---|
| Underwood Close | £ 0 | 0 | 0.00 KM |
| Rookery Close | £ 325,000 | 0 | 0.00 KM |
| Briar Close | £ 0 | 0 | 0.00 KM |
| Walnut Close | £ 300,000 | 0 | 0.00 KM |
| Park Road | £ 525,000 | 0 | 0.00 KM |
Nearby Transport
| Name | NLC | TLC | Distance |
|---|---|---|---|
| Ashford International | 5004 | AFK | 2.64 KM |
| Wye | 5031 | WYE | 5.68 KM |
Nearby Listings
| Address | Price | Type | Score | Distance |
|---|---|---|---|---|
| Thirlmere, Kennington, Ashford, Kent, TN24 9BD | £ 400,000 | BUY | 7 / 10 | 0.00 KM |
| Thirlmere, Kennington, Ashford | £ 325,000 | BUY | 6 / 10 | 0.01 KM |
| 15 Thirlmere, Kennington TN24 | £ 300,000 | BUY | 6 / 10 | 0.04 KM |
| Thirlmere, Kennington TN24 | £ 325,000 | BUY | 6 / 10 | 0.05 KM |
| Grasmere Road, Ashford, Kent, TN24 | £ 260,000 | BUY | 6 / 10 | 0.05 KM |
Nearby Properties
| Address | Price | Distance |
|---|---|---|
| 13 Thirlmere | £ 240,000 | 0.01 KM |
| 15 Thirlmere | £ 171,000 | 0.01 KM |
| 22 Thirlmere | £ 350,000 | 0.01 KM |
| 3 Thirlmere | £ 260,000 | 0.01 KM |
| 21 Thirlmere | £ 255,000 | 0.01 KM |