OR
Woodside Close, Bagshot, Surrey, GU19
By Orchard
£ 240,000
Reviews
3 out of 5 stars
Orchard says ..
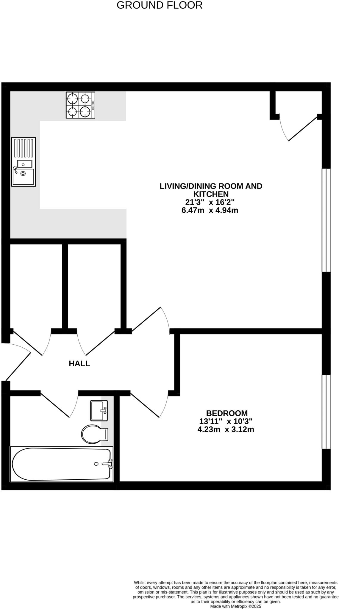
Offered to the market, with no onward chain, is this well presented one ground floor apartment, recently constructed to a high specification with views out to woodlands. The property benefits from one allocated parking space and is offered to the market with no onward chain. The accommodation com...
Property Oracle says ..
Therefore, we give this property 6 / 10. *Disclaimer: This is our option and does constitute a recommendation or financial advice. Do your own research. *
- Price
- 7
- Condition
- 8
- Location
- 7
- Land
- 5
- Bedrooms
- 1
- Bathrooms
- 1
- Sqft (est)
- 486.09
The heatmap indicates the level of crime in the area. The color of the heatmap indicates the crime severity and recency.
Metrics Year-on-Year
- Average area value
- 1,043,333.00 £Increased by 83.77 %
- Est sale value
- 641,638.80 £Increased by 225.12 %
- Average area rental value
- 6,842.00 £/moIncreased by 222.89 %
- Est letting value
- 3,888.72 £/moIncreased by 700.00 %
- Est rental Yield
- 7.87 %Increased by 75.67 %
- Crime Rate
- 3.00 %Unchanged by 0.00 %
from 567,724.00 £
from 197,352.54 £
from 2,119.00 £/mo
from 486.09 £/mo
from 4.48 %
from 3.00 %
Agent Activity
Orchard created the listing.
Nearby Schools
| Name | Type | Ofsted | Distance |
|---|---|---|---|
| Bagshot Infant School & Sure Start Children'S Centre | Children's Centre | 0.18 KM | |
| Bagshot Infant School | Community School | Good | 0.18 KM |
| Connaught Junior School | Academy Converter | Good | 0.53 KM |
| Hammond School | Academy Converter | Good | 1.71 KM |
| Hall Grove School | Other Independent School | 2.14 KM |
Images
Nearby Streets
| Name | Average Price | Average Sqft | Distance |
|---|---|---|---|
| Woodside Close | £ 0 | 0 | 0.00 KM |
| Cedar Court | £ 350,000 | 0 | 0.00 KM |
| Park Street | £ 0 | 0 | 0.00 KM |
| Brook Road | £ 0 | 0 | 0.00 KM |
| Mill Close | £ 0 | 0 | 0.00 KM |
Nearby Transport
| Name | NLC | TLC | Distance |
|---|---|---|---|
| Bagshot | 5681 | BAG | 1.01 KM |
| Ascot (Berks) | 5666 | ACT | 5.86 KM |
| Camberley | 5682 | CAM | 6.06 KM |
| Martins Heron | 5692 | MAO | 6.61 KM |
| Frimley | 5683 | FML | 7.74 KM |
Nearby Listings
| Address | Price | Type | Score | Distance |
|---|---|---|---|---|
| Woodside Close, Bagshot, Surrey, GU19 | £ 240,000 | BUY | 6 / 10 | 0.00 KM |
| Woodside Close, Bagshot, Surrey, GU19 | £ 60,000 | BUY | Unknown | 0.00 KM |
| Woodside Close, Bagshot, Surrey, GU19 | £ 550,000 | BUY | 7 / 10 | 0.04 KM |
| Woodside Close, Bagshot, Surrey, GU19 | £ 550,000 | BUY | 7 / 10 | 0.10 KM |
| Waterers Way, Earlswood Park, Bagshot | £ 265,000 | BUY | 6 / 10 | 0.18 KM |
Nearby Properties
| Address | Price | Distance |
|---|---|---|
| 12 Suffolk Close | £ 260,000 | 0.17 KM |
| 7 Suffolk Close | £ 225,000 | 0.17 KM |
| 4 Suffolk Close | £ 232,000 | 0.17 KM |
| 8 Suffolk Close | £ 362,000 | 0.17 KM |
| 10 Suffolk Close | £ 414,000 | 0.17 KM |