Lathallan Grange, Polmont, FK2 0YZ
By Cala Homes Scotland West
£ 278,000
Reviews
3 out of 5 stars
Cala Homes Scotland West says ..
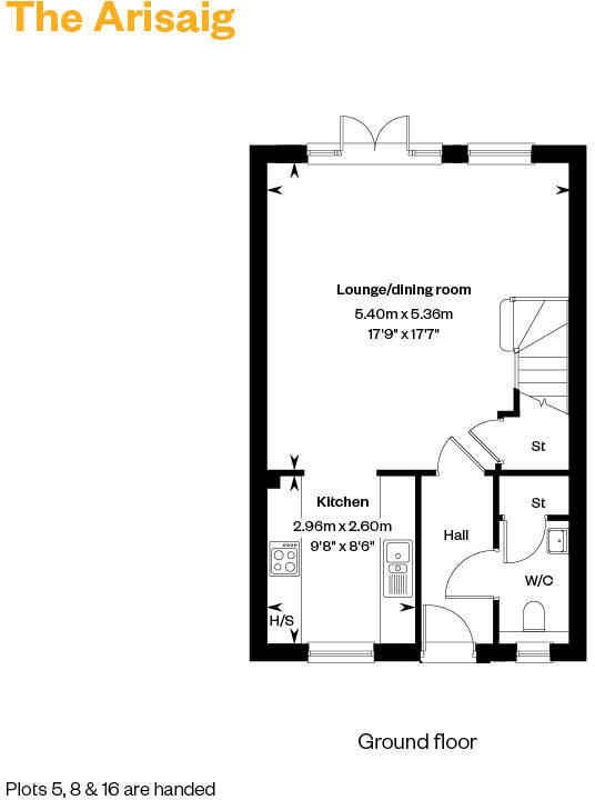
Incentives available. The Arisaig is a contemporary 3 bedroom family home. The ground floor enjoys a spacious open plan living and dining area, complete with French doors to your garden.
Property Oracle says ..
This is a modern terraced property located in Polmont, near Falkirk, Scotland. The property is in excellent condition and appears to be a new build. It has a small garden. The property is located 2.62 KM from Polmont train station and 7.61 KM from Oakwood School. The property is listed for £278,000, which is significantly lower than the average price for a property in the area. However, the square footage of the property is 276.49, which is significantly smaller than the average of 1082.
Therefore, we give this property 7 / 10. *Disclaimer: This is our option and does constitute a recommendation or financial advice. Do your own research. *
- Price
- 7
- Condition
- 9
- Location
- 7
- Land
- 6
- Bedrooms
- 3
- Bathrooms
- 1
- Sqft (est)
- 276.49
The heatmap indicates the level of crime in the area. The color of the heatmap indicates the crime severity and recency.
Metrics Year-on-Year
- Average area value
- 490,000.00 £Decreased by 5.86 %
- Est sale value
- 124,973.48 £Increased by 75.88 %
- Average area rental value
- 1,975.00 £/moIncreased by 83.72 %
- Est letting value
- 276.49 £/mo
- Est rental Yield
- 4.84 %Increased by 95.16 %
- Crime Rate
- 0.00 %
Agent Activity
Cala Homes Scotland West created the listing.
Nearby Schools
| Name | Type | Ofsted | Distance |
|---|---|---|---|
| Oakwood School | Offshore Schools | 7.61 KM |
Images
Nearby Streets
| Name | Average Price | Average Sqft | Distance |
|---|---|---|---|
| Taymouth Road | £ 0 | 0 | 0.00 KM |
| Breadalbane Place | £ 214,995 | 0 | 0.00 KM |
| Innerdouny Drive | £ 375,000 | 0 | 0.00 KM |
| Reddoch Road | £ 275,000 | 0 | 0.00 KM |
| Cleuch Place | £ 249,999 | 0 | 0.00 KM |
Nearby Transport
| Name | NLC | TLC | Distance |
|---|---|---|---|
| Polmont | 9936 | PMT | 2.62 KM |
Nearby Listings
| Address | Price | Type | Score | Distance |
|---|---|---|---|---|
| Lathallan Grange, Polmont, FK2 0YZ | £ 278,000 | BUY | 7 / 10 | 0.00 KM |
| Lathallan Grange, Polmont, FK2 0YZ | £ 310,000 | BUY | 7 / 10 | 0.00 KM |
| Lathallan Grange, Polmont, FK2 0YZ | £ 545,000 | BUY | Unknown | 0.00 KM |
| Lathallan Grange, Polmont, FK2 0YZ | £ 245,000 | BUY | 7 / 10 | 0.00 KM |
| Lathallan Grange, Polmont, FK2 0YZ | £ 245,000 | BUY | Unknown | 0.00 KM |