eXp UK says ..
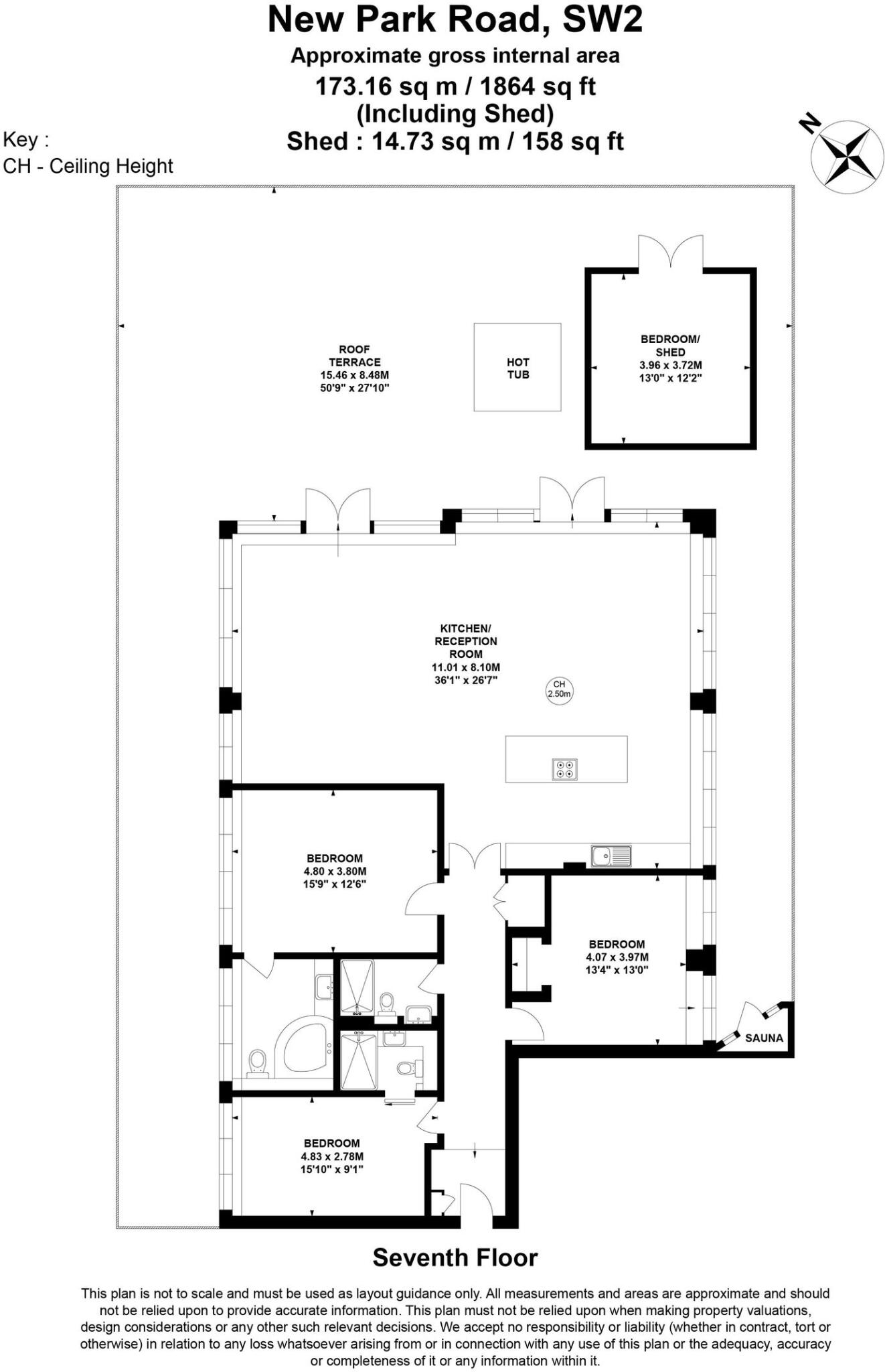
Please Quote OR1409 For All Enquiries An exceptional 1,800 sq ft penthouse on New Park Road, SW2, offering unrivalled luxury and breathtaking views across London. A 40 ft open plan kitchen, dining and living area forms the heart of the home, with floor to ceiling windows flooding the sp...
Property Oracle says ..
This is a spacious and well-presented four-bedroom flat in a sought-after location. The property benefits from a large roof terrace with stunning views of the London skyline. The flat is in good condition and would make an ideal home for a family or professional couple. The property is located close to local amenities and transport links, including Streatham Hill and Brixton stations. There are also several schools nearby, including Richard Atkins Primary School and Holmewood Nursery School. The property is listed for sale at £1,400,000, which is at the higher end of the market for the area. However, the size and condition of the property justify the price.
Therefore, we give this property 7 / 10. *Disclaimer: This is our option and does constitute a recommendation or financial advice. Do your own research. *
- Price
- 6
- Condition
- 8
- Location
- 7
- Land
- 9
- Bedrooms
- 4
- Bathrooms
- 3
The heatmap indicates the level of crime in the area. The color of the heatmap indicates the crime severity and recency.
Metrics Year-on-Year
- Average area value
- 695,454.00 £Increased by 5.83 %
- Average area rental value
- 2,015.00 £/moDecreased by 9.96 %
- Est rental Yield
- 3.48 %Decreased by 14.91 %
- Crime Rate
- 4.00 %Unchanged by 0.00 %
Agent Activity
eXp UK created the listing.
Nearby Schools
| Name | Type | Ofsted | Distance |
|---|---|---|---|
| Richard Atkins Primary School | Community School | Good | 0.23 KM |
| Tree House Children'S Centre At Holmewood Nursery School | Children's Centre | 0.54 KM | |
| Holmewood Nursery School | Local Authority Nursery School | Outstanding | 0.55 KM |
| Christ Church, Streatham Church Of England Primary School | Academy Converter | 0.56 KM | |
| The Orchard School | Voluntary Aided School | Outstanding | 0.69 KM |
Images
Nearby Streets
| Name | Average Price | Average Sqft | Distance |
|---|---|---|---|
| Forster Road | £ 0 | 0 | 0.00 KM |
| Fairview Place | £ 0 | 0 | 0.00 KM |
| Waterworks Road | £ 0 | 0 | 0.00 KM |
| Claremont Close | £ 400,000 | 0 | 0.00 KM |
| Notley Place | £ 0 | 0 | 0.00 KM |
Nearby Transport
| Name | NLC | TLC | Distance |
|---|---|---|---|
| Streatham Hill | 5435 | SRH | 1.18 KM |
| Brixton | 5081 | BRX | 2.03 KM |
| Clapham High Street | 5301 | CLP | 2.07 KM |
| Tulse Hill | 5390 | TUH | 2.39 KM |
| Herne Hill | 5066 | HNH | 2.56 KM |
Nearby Listings
| Address | Price | Type | Score | Distance |
|---|---|---|---|---|
| Courtenay House | £ 1,400,000 | BUY | 7 / 10 | 0.00 KM |
| Penthouse, Courtenay House | £ 1,250,000 | BUY | 8 / 10 | 0.00 KM |
| Courtenay House, Clapham, London, SW2 | £ 93,000 | BUY | 5 / 10 | 0.00 KM |
| New Park Road, Brixton | £ 440,000 | BUY | 6 / 10 | 0.00 KM |
| New Park Road, London | £ 93,000 | BUY | 6 / 10 | 0.01 KM |
Nearby Properties
| Address | Price | Distance |
|---|---|---|
| 55 Doverfield Road | £ 445,000 | 0.07 KM |
| 47 Doverfield Road | £ 395,000 | 0.07 KM |
| 45 Doverfield Road | £ 445,000 | 0.07 KM |
| 51 Doverfield Road | £ 505,100 | 0.07 KM |
| 206 Brixton Hill | £ 369,000 | 0.10 KM |