Langford Russell says ..
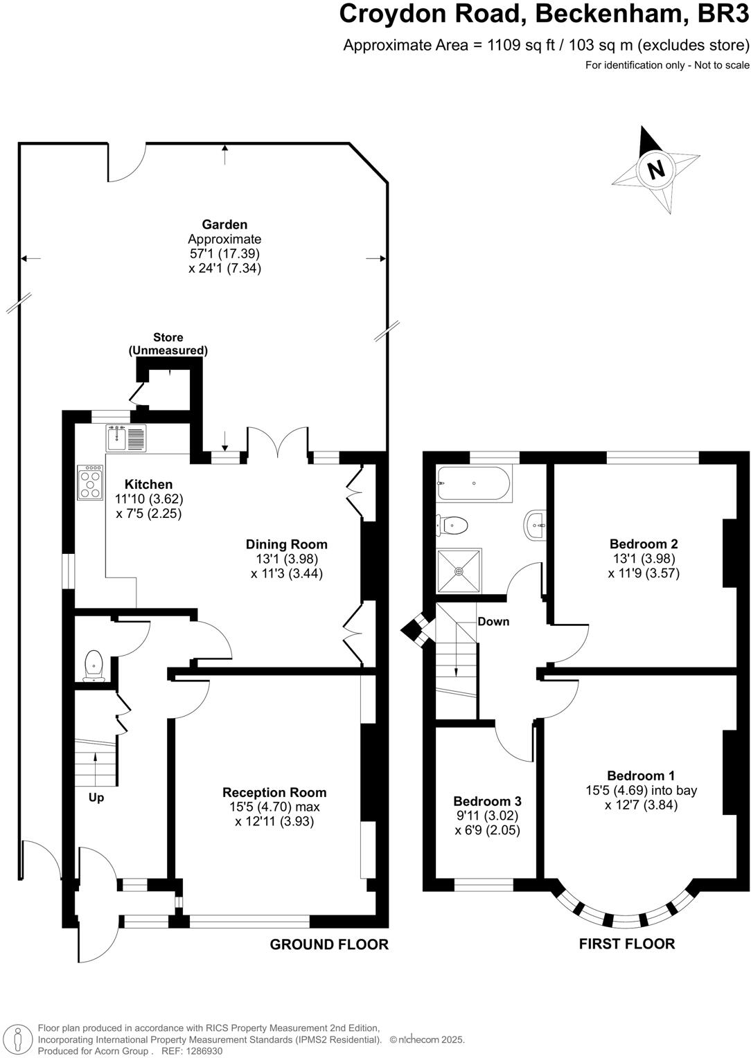
Offered to the market in stunning condition is this three-bedroom end of terrace house. This property would make an ideal home for any growing family. The ground floor consists of a welcoming hallway and w/c, a spacious reception room with large windows and feature fireplace, an open p...
Property Oracle says ..
Therefore, we give this property 7 / 10. *Disclaimer: This is our option and does constitute a recommendation or financial advice. Do your own research. *
- Price
- 7
- Condition
- 8
- Location
- 8
- Land
- 7
- Bedrooms
- 3
- Bathrooms
- 1
- Sqft (est)
- 1,109.00
The heatmap indicates the level of crime in the area. The color of the heatmap indicates the crime severity and recency.
Metrics Year-on-Year
- Average area value
- 750,000.00 £Increased by 5.57 %
- Est sale value
- 615,495.00 £Increased by 5.71 %
- Average area rental value
- 1,775.00 £/moDecreased by 23.52 %
- Est letting value
- 1,109.00 £/moUnchanged by 0.00 %
- Est rental Yield
- 2.84 %Decreased by 27.55 %
- Crime Rate
- 4.00 %Unchanged by 0.00 %
from 710,454.00 £
from 582,225.00 £
from 2,321.00 £/mo
from 1,109.00 £/mo
from 3.92 %
from 4.00 %
Agent Activity
Langford Russell created the listing.
Nearby Schools
| Name | Type | Ofsted | Distance |
|---|---|---|---|
| Marian Vian Primary School | Academy Converter | Good | 0.60 KM |
| Eden Park High School | Free Schools | 0.71 KM | |
| Balgowan Primary School | Academy Converter | Good | 0.73 KM |
| Churchfields Primary School | Academy Converter | 0.80 KM | |
| Monks Orchard Primary School | Academy Converter | 1.10 KM |
Images
Nearby Streets
| Name | Average Price | Average Sqft | Distance |
|---|---|---|---|
| Priory Close | £ 625,000 | 0 | 0.00 KM |
| Ash Tree Close | £ 725,000 | 0 | 0.00 KM |
| Chaffinch Road | £ 700,000 | 0 | 0.00 KM |
| Lavender Way | £ 0 | 0 | 0.00 KM |
| Uplands | £ 950,000 | 0 | 0.00 KM |
Nearby Transport
| Name | NLC | TLC | Distance |
|---|---|---|---|
| Elmers End | 5049 | ELE | 0.73 KM |
| Clock House | 5048 | CLK | 1.06 KM |
| Kent House | 5080 | KTH | 1.45 KM |
| Birkbeck | 5401 | BIK | 1.50 KM |
| Eden Park | 5056 | EDN | 2.11 KM |
Nearby Listings
| Address | Price | Type | Score | Distance |
|---|---|---|---|---|
| Croydon Road, Beckenham | £ 650,000 | BUY | 7 / 10 | 0.00 KM |
| St. James's Avenue, Beckenham | £ 625,000 | BUY | Unknown | 0.03 KM |
| Joseph Samuel Apartments, 160 Croydon Road, Beckenham | £ 349,995 | BUY | 6 / 10 | 0.05 KM |
| Joseph Samual Apartments, 160 Croydon Road, Beckenham, Kent | £ 350,000 | BUY | Unknown | 0.05 KM |
| St James's Avenue, Beckenham, BR3 | £ 600,000 | BUY | 7 / 10 | 0.06 KM |
Nearby Properties
| Address | Price | Distance |
|---|---|---|
| 127a Croydon Road | £ 160,000 | 0.09 KM |
| 127b Croydon Road | £ 145,000 | 0.09 KM |
| 131b Croydon Road | £ 228,000 | 0.09 KM |
| 125a Croydon Road | £ 120,000 | 0.09 KM |
| 131a Croydon Road | £ 245,000 | 0.09 KM |