67(A) Arundel Road, Littlehampton, BN17 7DE
By McHugh & Co
£ 40,000
Reviews
2 out of 5 stars
McHugh & Co says ..
LOT 100D **FOR SALE BY ONLINE AUCTION** on 4th December 2025 Leasehold Flat Vacant Possession
Property Oracle says ..
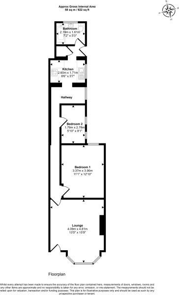
The property is a 2-bedroom flat located in Littlehampton, West Sussex. It is listed for £40,000, which is significantly below the average price for the area. The property is located within close proximity to local transport links and schools. However, the property appears to be in need of renovation. The interior is dated and worn, and there is some apparent water damage. The property has a small garden.
Therefore, we give this property 5 / 10. *Disclaimer: This is our option and does constitute a recommendation or financial advice. Do your own research. *
- Price
- 9
- Condition
- 3
- Location
- 6
- Land
- 4
- Bedrooms
- 2
- Bathrooms
- 0
- Sqft (est)
- 458.97
The heatmap indicates the level of crime in the area. The color of the heatmap indicates the crime severity and recency.
Metrics Year-on-Year
- Average area value
- 348,276.00 £Increased by 7.74 %
- Est sale value
- 162,016.41 £Unchanged by 0.00 %
- Average area rental value
- 1,393.00 £/moDecreased by 3.26 %
- Est letting value
- 458.97 £/moUnchanged by 0.00 %
- Est rental Yield
- 4.80 %Decreased by 10.28 %
- Crime Rate
- 12.00 %Unchanged by 0.00 %
Agent Activity
McHugh & Co created the listing.
Nearby Schools
| Name | Type | Ofsted | Distance |
|---|---|---|---|
| River Beach Primary School | Academy Converter | Good | 0.10 KM |
| Littlehampton Children And Family Centre | Children's Centre | 0.41 KM | |
| White Meadows Primary Academy | Academy Converter | Good | 0.59 KM |
| St Catherine'S Catholic Primary School, Littlehampton | Voluntary Aided School | Requires improvement | 0.67 KM |
| The Littlehampton Academy | Academy Sponsor Led | Requires improvement | 0.94 KM |
Images
Nearby Streets
| Name | Average Price | Average Sqft | Distance |
|---|---|---|---|
| Merton Drive | £ 0 | 0 | 0.00 KM |
| Madehurst Court | £ 0 | 0 | 0.00 KM |
| High Street | £ 237,375 | 0 | 0.00 KM |
| Loudoun Road | £ 0 | 0 | 0.00 KM |
| Talbot Road | £ 305,000 | 0 | 0.00 KM |
Nearby Transport
| Name | NLC | TLC | Distance |
|---|---|---|---|
| Littlehampton | 5260 | LIT | 0.37 KM |
| Arundel | 5251 | ARU | 3.98 KM |
| Ford | 5258 | FOD | 4.28 KM |
| Angmering | 5267 | ANG | 6.01 KM |
| Amberley | 5250 | AMY | 9.37 KM |
Nearby Listings
| Address | Price | Type | Score | Distance |
|---|---|---|---|---|
| Flat A, 67 Arundel Road, Littlehampton, West Sussex, BN17 7DE | £ 50,000 | BUY | 5 / 10 | 0.00 KM |
| 67(A) Arundel Road, Littlehampton, BN17 7DE | £ 40,000 | BUY | 5 / 10 | 0.00 KM |
| 67a Arundel Road, Littlehampton BN17 7DE | £ 45,000 | BUY | 5 / 10 | 0.00 KM |
| Arundel Road, Littlehampton | £ 143,950 | BUY | 6 / 10 | 0.00 KM |
| 67(A) Arundel Road, Littlehampton, BN17 7DE | £ 40,000 | BUY | 5 / 10 | 0.00 KM |
Nearby Properties
| Address | Price | Distance |
|---|---|---|
| 85 Arundel Road | £ 195,000 | 0.03 KM |
| 83 Arundel Road | £ 230,000 | 0.03 KM |
| 89 Arundel Road | £ 390,000 | 0.03 KM |
| 67c Arundel Road | £ 86,500 | 0.03 KM |
| 93a Arundel Road | £ 140,000 | 0.03 KM |