Millfield, Longfield, Kent, DA3
By Key Property Consultants
£ 325,000
Reviews
3 out of 5 stars
Key Property Consultants says ..
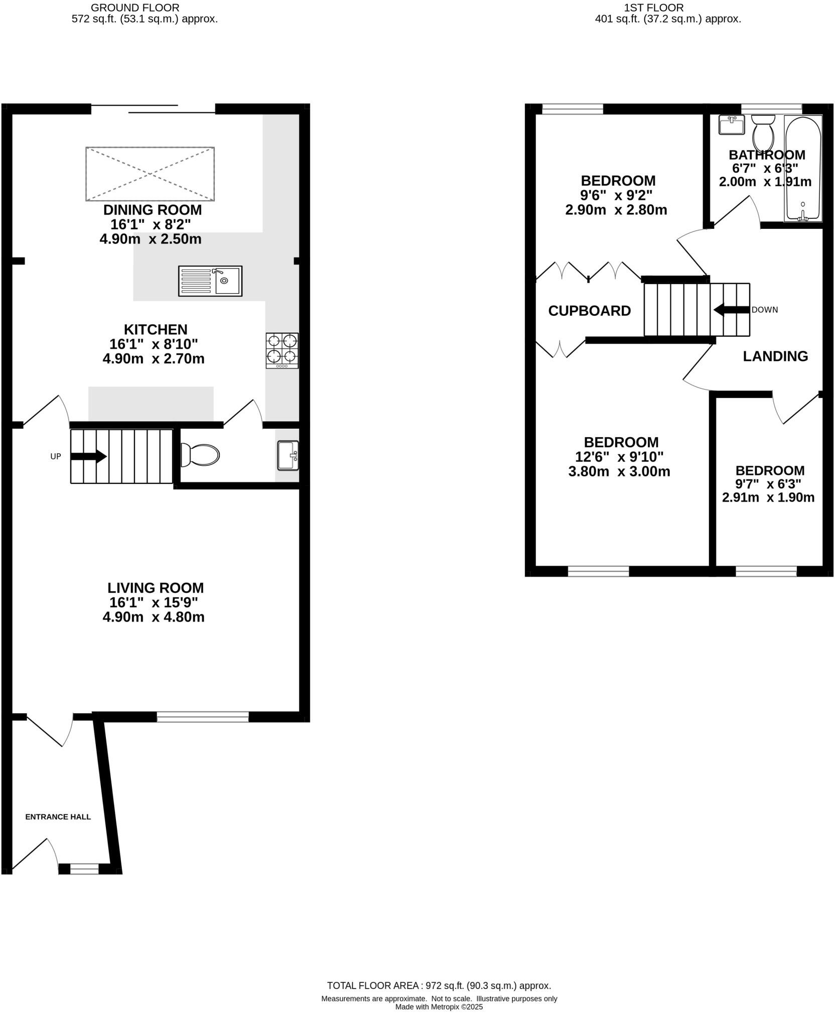
*** GUIDE PRICE £325,000 TO £350,000*** BEAUTIFULLY PRESENTED THREE BEDROOM 'SPAN LTD' MID- TERRACE FAMILY HOUSE. ENTRANCE PORCH, SEPARATE LIVING ROOM, SPACIOUS AND WELL LAID OUT KITCHEN/DINING ROOM WITH ADDITIONAL FEATURE ROOF WINDOW. 3 BEDROOMS AND BATHROOM. GARAGE EN-BLOC AND PARKI...
Property Oracle says ..
The property is a 3-bedroom, 1-bathroom terraced house located in Longfield, Kent. The list price is £325,000, and the property has 807.93 sqft of internal space and a 972 sqft plot. Nearby properties are similarly priced, ranging from £168,000 to £350,000, although sqft data is unavailable for these comparisons. The average house price in the area is significantly higher at £882,222, with an average sqft of 1,531 and an average price per sqft of £576. Based on the images provided, the property appears to be in good condition and has recently undergone some modernisation, including a new kitchen and flooring. The property benefits from a relatively small but well-maintained rear garden. The property’s location is convenient, with nearby primary schools rated as ‘Good’ and ‘Outstanding’ by Ofsted, and several Southeastern train stations within a reasonable distance. The list price of £325,000 appears reasonable considering the property’s condition and location, and the fact that similar properties in the area have sold for comparable prices. However, the significantly higher average house price in the area suggests that this property may be undervalued, particularly given its recent modernisation. The small plot size is a factor to consider, but the well-maintained garden adds value.
Therefore, we give this property 7 / 10. *Disclaimer: This is our option and does constitute a recommendation or financial advice. Do your own research. *
- Price
- 7
- Condition
- 8
- Location
- 7
- Land
- 6
- Bedrooms
- 3
- Bathrooms
- 1
- Sqft (est)
- 807.93
- Lot (est)
- 972.00
The heatmap indicates the level of crime in the area. The color of the heatmap indicates the crime severity and recency.
Metrics Year-on-Year
- Average area value
- 1,145,000.00 £Increased by 51.85 %
- Est sale value
- 644,728.14 £Increased by 52.58 %
- Average area rental value
- 1,717.00 £/moDecreased by 6.07 %
- Est letting value
- 807.93 £/moUnchanged by 0.00 %
- Est rental Yield
- 1.80 %Decreased by 38.14 %
- Crime Rate
- 46.00 %Unchanged by 0.00 %
Agent Activity
Key Property Consultants created the listing.
Nearby Schools
| Name | Type | Ofsted | Distance |
|---|---|---|---|
| New Ash Green Primary School | Community School | Good | 0.49 KM |
| New Ash Green Children'S Centre | Children's Centre | 0.55 KM | |
| Milestone Academy | Academy Special Converter | Outstanding | 0.71 KM |
| Hartley Primary Academy | Academy Converter | Outstanding | 1.74 KM |
| Our Lady Of Hartley Catholic Primary School, Hartley, Longfield | Academy Converter | 2.10 KM |
Images
Nearby Streets
| Name | Average Price | Average Sqft | Distance |
|---|---|---|---|
| The Row | £ 0 | 0 | 0.00 KM |
| Manor Gardens | £ 220,000 | 0 | 0.00 KM |
| Church Road | £ 0 | 0 | 0.00 KM |
Nearby Transport
| Name | NLC | TLC | Distance |
|---|---|---|---|
| Longfield | 5114 | LGF | 3.19 KM |
| Meopham | 5116 | MEP | 6.47 KM |
| Farningham Road | 5105 | FNR | 8.25 KM |
| Borough Green And Wrotham | 5130 | BRG | 8.29 KM |
| Sole Street | 5126 | SOR | 8.63 KM |
Nearby Listings
| Address | Price | Type | Score | Distance |
|---|---|---|---|---|
| Millfield, Longfield, Kent, DA3 | £ 325,000 | BUY | 7 / 10 | 0.00 KM |
| Millfield, New Ash Green, Longfield, DA3 | £ 350,000 | BUY | 7 / 10 | 0.01 KM |
| Millfield, New Ash Green, Longfield, Kent, DA3 | £ 325,000 | BUY | 7 / 10 | 0.01 KM |
| Millfield, New Ash Green, Longfield, Kent, DA3 | £ 325,000 | BUY | Unknown | 0.01 KM |
| Millfield, New Ash Green, Longfield, Kent, DA3 | £ 350,000 | BUY | 6 / 10 | 0.05 KM |
Nearby Properties
| Address | Price | Distance |
|---|---|---|
| 87 Millfield | £ 292,000 | 0.02 KM |
| 54 Millfield | £ 215,000 | 0.02 KM |
| 100 Millfield | £ 168,000 | 0.02 KM |
| 102 Millfield | £ 285,000 | 0.02 KM |
| 99 Millfield | £ 180,000 | 0.02 KM |