Irwin Scott says ..
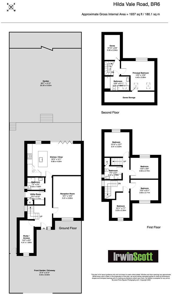
Offering just under 2000 square feet of living space and positioned along a highly desirable road is this five bedroom semi detached house. Located within easy reach of the picturesque village of Locksbottom as well as the catchment area for some of the boroughs most sought after school...
Property Oracle says ..
This semi-detached property on Hilda Vale Road, Orpington, presents a modern living space with five bedrooms and three bathrooms. The house has been extensively renovated, featuring a contemporary kitchen and stylish bathrooms. The large garden and patio area enhance the property’s appeal. Located within proximity to good schools and transportation links, it is well-suited for families. However, the price is relatively high compared to other properties in the area.
Therefore, we give this property 7 / 10. *Disclaimer: This is our option and does constitute a recommendation or financial advice. Do your own research. *
- Price
- 6
- Condition
- 9
- Location
- 7
- Land
- 8
- Bedrooms
- 5
- Bathrooms
- 3
The heatmap indicates the level of crime in the area. The color of the heatmap indicates the crime severity and recency.
Metrics Year-on-Year
- Average area value
- 545,556.00 £Decreased by 23.92 %
- Average area rental value
- 2,071.00 £/moDecreased by 19.45 %
- Est rental Yield
- 4.56 %Increased by 6.05 %
- Crime Rate
- 10.00 %Unchanged by 0.00 %
Agent Activity
Irwin Scott created the listing.
Nearby Schools
| Name | Type | Ofsted | Distance |
|---|---|---|---|
| Darrick Wood Junior School | Academy Converter | Good | 0.40 KM |
| Darrick Wood School | Academy Converter | Good | 0.40 KM |
| Darrick Wood Infant & Nursery School | Academy Converter | 0.40 KM | |
| Newstead Wood School | Academy Converter | Outstanding | 1.49 KM |
| Farnborough Primary School | Academy Converter | 1.57 KM |
Images
Nearby Streets
| Name | Average Price | Average Sqft | Distance |
|---|---|---|---|
| Lantern Close | £ 0 | 0 | 0.00 KM |
| Mandelieu | £ 465,000 | 0 | 0.00 KM |
| Willow Walk | £ 0 | 0 | 0.00 KM |
| Osier Close | £ 0 | 0 | 0.00 KM |
| Ash Tree Close | £ 435,000 | 0 | 0.00 KM |
Nearby Transport
| Name | NLC | TLC | Distance |
|---|---|---|---|
| Petts Wood | 5123 | PET | 3.13 KM |
| Orpington | 5122 | ORP | 3.29 KM |
| Bickley | 5063 | BKL | 4.38 KM |
| Chislehurst | 5099 | CIT | 4.64 KM |
| Chelsfield | 5098 | CLD | 5.40 KM |
Nearby Listings
| Address | Price | Type | Score | Distance |
|---|---|---|---|---|
| Hilda Vale Road, Orpington | £ 980,000 | BUY | 7 / 10 | 0.00 KM |
| Hilda Vale Road, Bromley, BR6 | £ 950,000 | BUY | 7 / 10 | 0.02 KM |
| Hilda Vale Road, Farnborough, BR6 | £ 650,000 | BUY | 7 / 10 | 0.07 KM |
| Wellbrook Road, Orpington | £ 495,000 | BUY | 6 / 10 | 0.09 KM |
| Hilda Vale Road, Orpington, BR6 | £ 999,995 | BUY | 8 / 10 | 0.10 KM |
Nearby Properties
| Address | Price | Distance |
|---|---|---|
| 6 Lantern Close | £ 360,000 | 0.07 KM |
| 5 Lantern Close | £ 522,995 | 0.07 KM |
| 3 Lantern Close | £ 525,000 | 0.07 KM |
| 4 Lantern Close | £ 510,000 | 0.07 KM |
| 39 Hilda Vale Road | £ 537,500 | 0.12 KM |