Development Opportunity, The Mill, 24 North Terrace, Crook
By Vickers & Barrass
£ 200,000
Reviews
2 out of 5 stars
Vickers & Barrass says ..
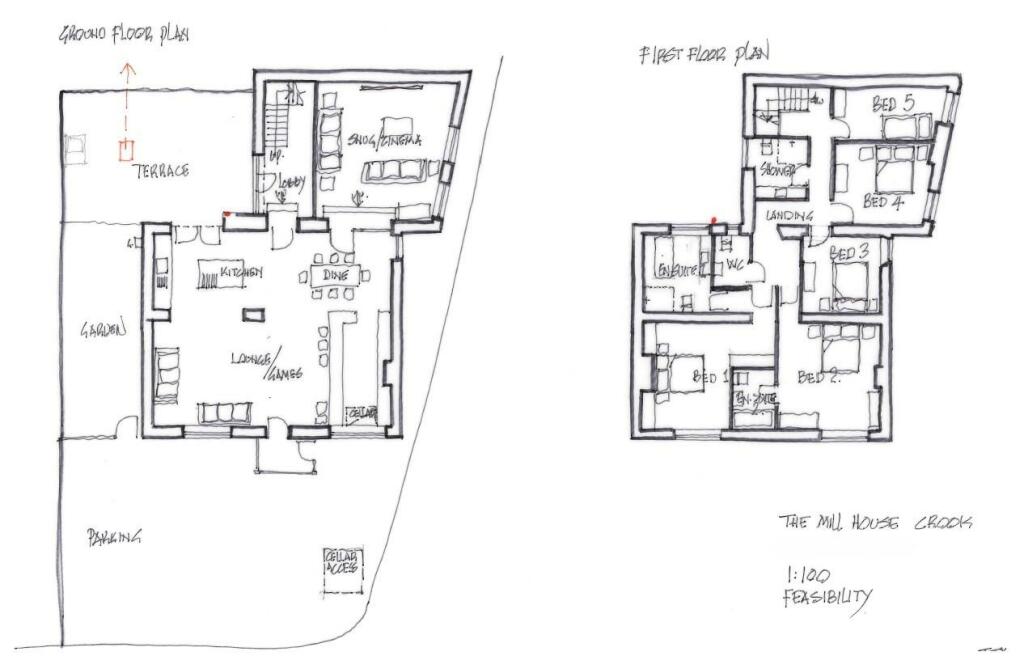
An exciting development opportunity to acquire a former public house with residential first floor accommodation.
Property Oracle says ..
This property in Crook, County Durham presents itself as a substantial development opportunity. The former public house, ‘The Mill,’ offers a five-bedroom layout spread across two floors. The building’s exterior shows a decent level of maintenance, but the internal photographs depict an interior requiring extensive renovation. Flooring needs replacement, and there is visible wear and tear in multiple rooms. The property’s location within Crook provides access to primary schools, but the amenities in Crook might be limited. The train station is a moderate distance away (9.72km). While the listed price is relatively standard for the area, the needed renovation will make the overall investment considerable. The lack of detailed plot size information and detailed information on neighbouring properties makes a full comparison difficult. Overall, this property presents a significant project that requires substantial financial commitment and considerable DIY skills to transform it into a habitable home. Buyers should factor in the costs of renovation, including materials, labor, and potential professional services, before making an offer.
Therefore, we give this property 4 / 10. *Disclaimer: This is our option and does constitute a recommendation or financial advice. Do your own research. *
- Price
- 7
- Condition
- 4
- Location
- 6
- Land
- 2
- Bedrooms
- 5
- Bathrooms
- 0
- Sqft (est)
- 1,481.87
The heatmap indicates the level of crime in the area. The color of the heatmap indicates the crime severity and recency.
Metrics Year-on-Year
- Average area value
- 91,250.00 £Decreased by 43.42 %
- Est sale value
- 161,523.83 £Decreased by 25.34 %
- Average area rental value
- 550.00 £/moDecreased by 6.14 %
- Est letting value
- 0.00 £/mo
- Est rental Yield
- 7.23 %Increased by 65.83 %
- Crime Rate
- 18.00 %Unchanged by 0.00 %
Agent Activity
Vickers & Barrass created the listing.
Nearby Schools
| Name | Type | Ofsted | Distance |
|---|---|---|---|
| St Cuthberts Roman Catholic Voluntary Aided Primary School | Voluntary Aided School | Good | 0.31 KM |
| Crook Primary School | Community School | Good | 0.71 KM |
| Hartside Primary Academy | Academy Converter | 1.14 KM | |
| Peases West Primary School | Community School | Good | 2.05 KM |
| Stanley (Crook) Primary School | Community School | Good | 2.47 KM |
Images
Nearby Streets
| Name | Average Price | Average Sqft | Distance |
|---|---|---|---|
| North Terrace | £ 200,000 | 0 | 0.00 KM |
| Mill Street | £ 0 | 0 | 0.00 KM |
| B6298 | £ 0 | 0 | 0.00 KM |
| Meadow Cottages | £ 0 | 0 | 0.00 KM |
| Wheatfield Gardens | £ 0 | 0 | 0.00 KM |
Nearby Transport
| Name | NLC | TLC | Distance |
|---|---|---|---|
| Bishop Auckland | 7835 | BIA | 9.72 KM |
Nearby Listings
| Address | Price | Type | Score | Distance |
|---|---|---|---|---|
| Development Opportunity, The Mill, 24 North Terrace, Crook | £ 200,000 | BUY | 4 / 10 | 0.00 KM |
| 1 Mill Street, Willington, Crook, County Durham, DL15 0DW | £ 10,000 | BUY | 3 / 10 | 0.06 KM |
| Beckside Mews, Crook | £ 300,000 | BUY | 7 / 10 | 0.06 KM |
| Church Hill, Crook | £ 87,950 | BUY | 6 / 10 | 0.09 KM |
| Church Street, Crook | £ 67,500 | BUY | Unknown | 0.10 KM |
Nearby Properties
| Address | Price | Distance |
|---|---|---|
| 4 Mill Street | £ 25,000 | 0.04 KM |
| 3 West Bridge Street | £ 65,000 | 0.08 KM |
| 2 West Bridge Street | £ 75,000 | 0.08 KM |
| 6 Greenfield Cottages | £ 77,000 | 0.13 KM |
| 3 Greenfield Cottages | £ 35,000 | 0.13 KM |