Carrs Court, Church Street, Wilmslow
By Gascoigne Halman
£ 199,950
Reviews
3 out of 5 stars
Gascoigne Halman says ..
A well-presented first floor retirement apartment, located in the centre of Wilmslow within the high regarded Carrs Court. Excellent on-site amenities including lift access, restaurant, residents' living room and house manager.
Property Oracle says ..
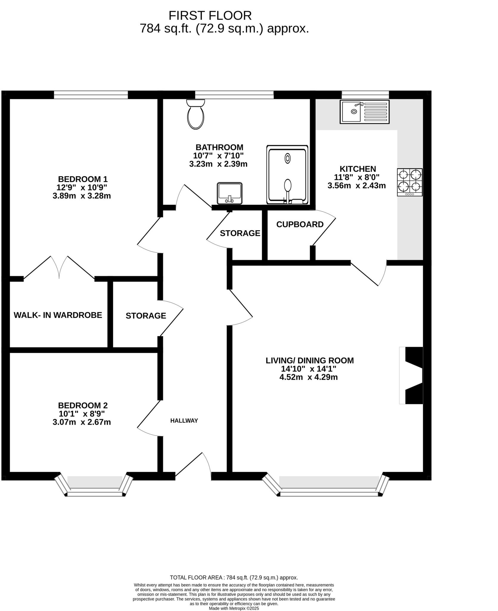
This is a two-bedroom retirement property located in Wilmslow, Cheshire. The property is situated in a complex and appears to be in good condition, with a modern kitchen and bathroom. The location is favorable, with proximity to transportation, schools, and local amenities. The price seems reasonable for the size and location, but potential buyers should be aware of possible service charges and restrictions typical of retirement properties. While the property itself is well-maintained, some aspects could benefit from cosmetic updates to suit contemporary tastes. The limited private land is a factor to consider, though communal gardens may be available.
Therefore, we give this property 6 / 10. *Disclaimer: This is our option and does constitute a recommendation or financial advice. Do your own research. *
- Price
- 7
- Condition
- 7
- Location
- 7
- Land
- 3
- Bedrooms
- 2
- Bathrooms
- 1
- Sqft (est)
- 612.57
The heatmap indicates the level of crime in the area. The color of the heatmap indicates the crime severity and recency.
Metrics Year-on-Year
- Average area value
- 646,257.00 £Increased by 0.56 %
- Est sale value
- 400,008.21 £Increased by 46.09 %
- Average area rental value
- 2,875.00 £/moIncreased by 74.77 %
- Est letting value
- 1,225.14 £/moIncreased by 100.00 %
- Est rental Yield
- 5.34 %Increased by 73.94 %
- Crime Rate
- 11.00 %Unchanged by 0.00 %
Agent Activity
Gascoigne Halman created the listing.
Nearby Schools
| Name | Type | Ofsted | Distance |
|---|---|---|---|
| Wilmslow Preparatory School | Other Independent School | 0.51 KM | |
| Wilmslow High School | Community School | Good | 0.77 KM |
| Lacey Green Primary Academy | Academy Converter | 1.06 KM | |
| St Anne'S Fulshaw C Of E Primary School | Voluntary Controlled School | Good | 1.68 KM |
| Pownall Hall School | Other Independent School | 1.92 KM |
Images
Nearby Streets
| Name | Average Price | Average Sqft | Distance |
|---|---|---|---|
| Station Road | £ 350,000 | 0 | 0.00 KM |
| Grove Street | £ 135,000 | 0 | 0.00 KM |
| Forecourt | £ 0 | 0 | 0.00 KM |
| Bollin Link | £ 0 | 0 | 0.00 KM |
| A34 | £ 0 | 0 | 0.00 KM |
Nearby Transport
| Name | NLC | TLC | Distance |
|---|---|---|---|
| Wilmslow | 2774 | WML | 0.48 KM |
| Styal | 2868 | SYA | 2.43 KM |
| Handforth | 2767 | HTH | 2.66 KM |
| Alderley Edge | 2760 | ALD | 2.91 KM |
| Heald Green | 2860 | HDG | 4.55 KM |
Nearby Listings
| Address | Price | Type | Score | Distance |
|---|---|---|---|---|
| Carrs Court, Church Street, Wilmslow | £ 160,000 | BUY | 6 / 10 | 0.00 KM |
| Carrs Court, Church Street, Wilmslow | £ 199,950 | BUY | 6 / 10 | 0.00 KM |
| Church Street, Wilmslow, SK9 | £ 290,000 | BUY | 6 / 10 | 0.00 KM |
| Carrs Court, Wilmslow, SK9 | £ 165,000 | BUY | Unknown | 0.01 KM |
| Carrs Court, Wilmslow, SK9 | £ 185,000 | BUY | Unknown | 0.01 KM |
Nearby Properties
| Address | Price | Distance |
|---|---|---|
| 3 Mill Street | £ 315,000 | 0.12 KM |
| 4 Mill Street | £ 190,000 | 0.12 KM |
| 30a Manchester Road | £ 305,000 | 0.21 KM |
| 34 Manchester Road | £ 250,000 | 0.21 KM |
| 36 Manchester Road | £ 325,000 | 0.21 KM |